Simplify
作品详情
  • Details of the work 标题横线
    头像或者logo
    图片 高原
    城市:苏州
    公司: 一野设计
    参赛作品: 化简入木
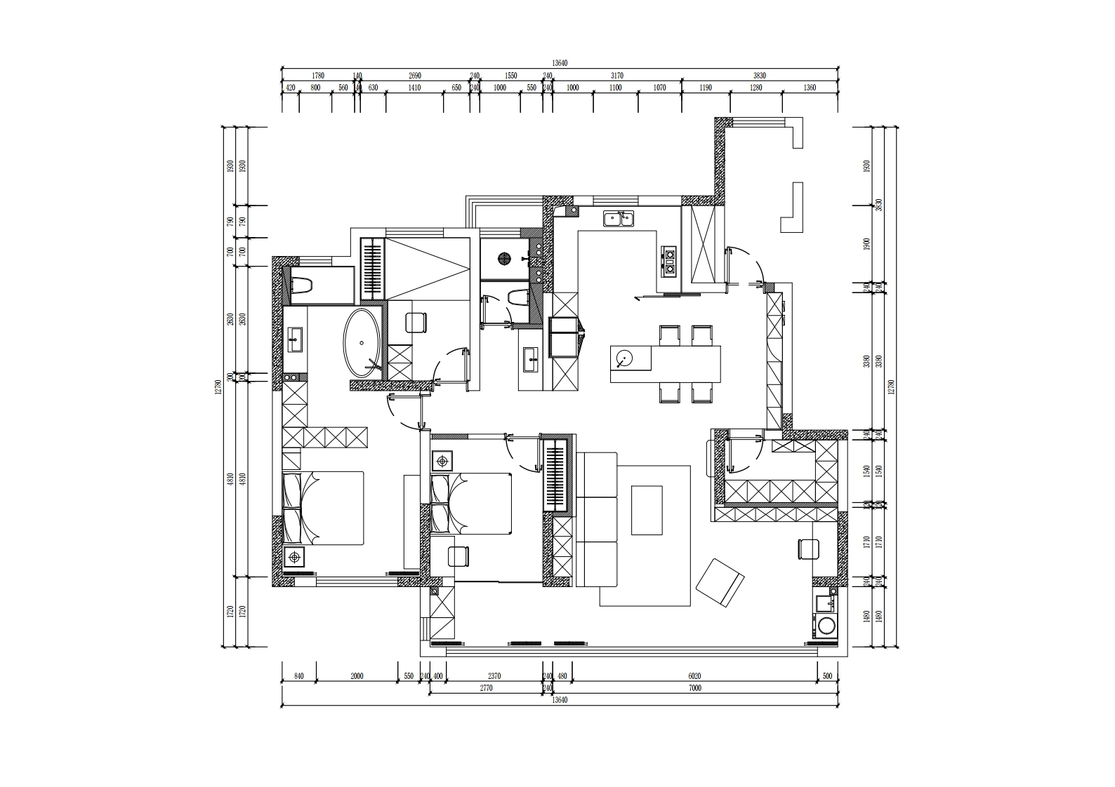
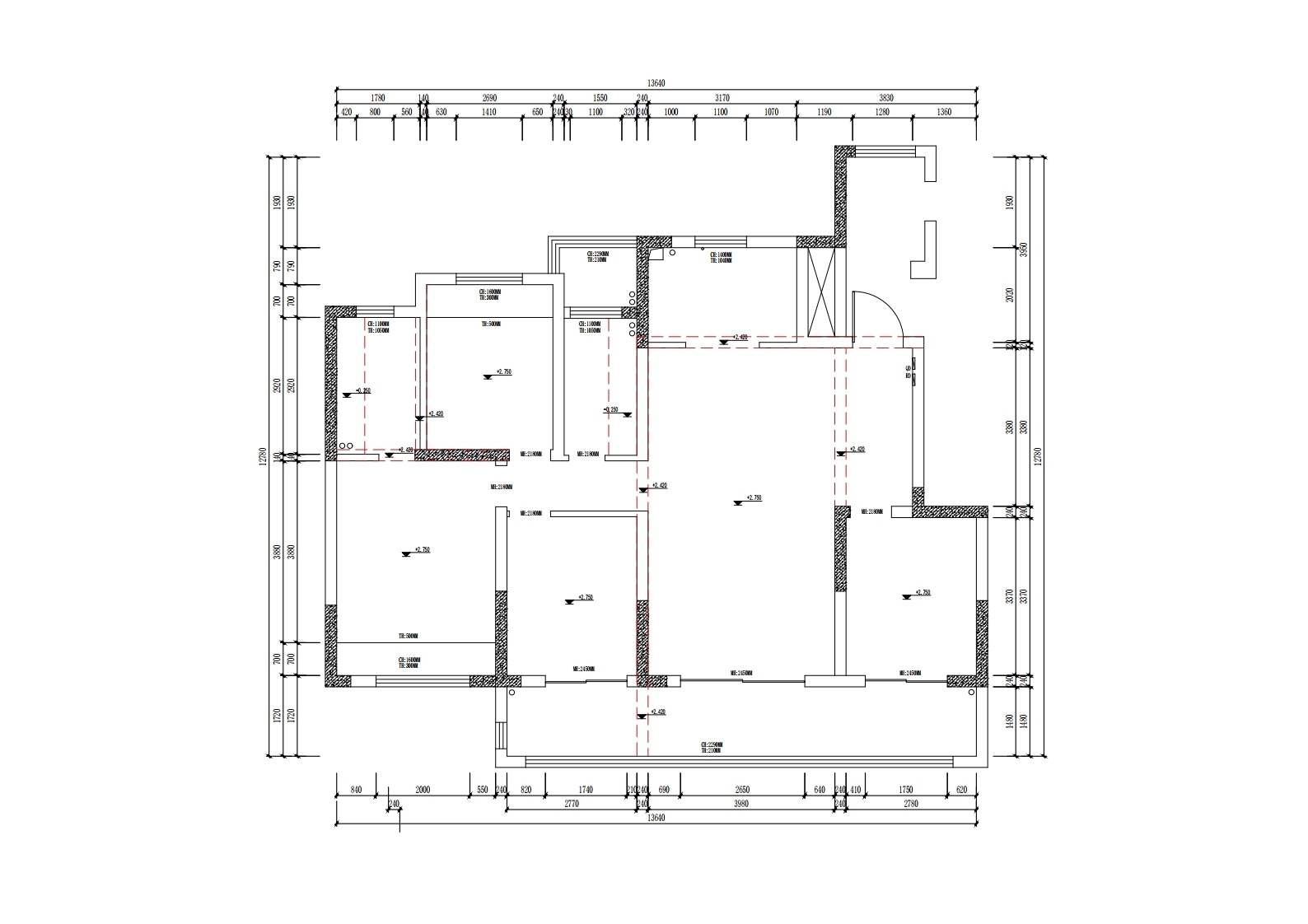
    空间类型:公寓(150㎡以下)
    个人/公司简介:
    一野设计首席设计师
    设计说明 | Design Instruction
  • 在高楼林立的繁华里,寻一处静谧的自留地。 本案通过木质独有的温润自然的气息,构建柔和天然感的生活场域。以极简风格为主轴,简洁的家具与空间线条塑造轻盈质感,大面积的木质介入,柔化了极简带来的疏离感,营造舒适的宜居氛围。空间中的材质、颜色、家具,装饰……无一不在调动居住者对生活的感知,让美的力量在生活中滋养而生。 原木色由入户延展向室内空间,内敛、节制是木材赋予的特质。去繁就简的设计,尽可能地减少视觉层面的干扰,营造出一个轻松自在的归所。 壁龛式玄关让生活有了更多的可能性,在隐藏灯带的辅助下,造就高级的空间美学。弧线的介入中和了空间的气场,在纯粹中营造一份耐人寻味的意味。 运用原木色的中性模糊黑与白的边界,柔和的灯光低调而优雅地介入其中,在极简的空间风格里,凸显有质感的生活“痕迹”。浸润在烟火气里的厨房,有着几分寻常人家的温婉与热闹,待香气散尽,空间再次重归静谧与舒缓。 全景落地窗将四季变幻的美景留给了客厅,室内空间以开放式结构的形式满足于功能与审美的需求,轻盈的结构提供了开阔的视觉体验,在舒适与美学中实现了微妙的平衡。 立体壁炉以弧形呈现在室内,悬挑结构释放空间个性。家具的布置不以繁缛花饰取胜,而是注重流畅简洁的线条美,呈现层次错落有致的视觉感,恰到好处地保留各自应有的独立性。清简的配色、柔软的材质,叙述着空间中漫不经心的闲适与悠然。 在家中创造一个集办公与生活功能于一体的双栖区域,作为自己的精神空间站。 独具匠心的展示柜自然衔接书桌,一体式设计拥有极大的包容性与自由度。介于三色之间的场域在理性与诗意连接起一座桥梁,赋予日常令人欣喜的仪式感。 极简风格背后呈现的不仅是生活方式,还有一种化繁为简的哲学思维。 卧室的设计以质朴、素雅为原点,通过纹理、材料和光线的灵活组合,感受方寸间的起伏对比,彰显空间的持续性与稳定感,透露出时光沉淀下的闲适意蕴。
  • 图片
  • 图片
  • 图片
  • 图片
  • 图片
  • 图片
  • 图片
  • 图片
  • 图片
  • 图片
  • 图片
  • 图片
  • 图片
  • 图片
  • 图片
  • 图片
  • 图片
  • 图片
  • 图片
  • 图片
  • 图片
  • 图片
  • 上一个 下一个
    《金腾奖优秀作品年鉴》 私宅丨地产丨餐饮丨酒店丨办公丨商业丨公共丨产品丨公益丨人气 jintengAWARD(小金_金腾奖组委会) 广州市海珠区琶洲大道68号华新中心21楼
    金腾奖视频号 金腾奖小红书号 监制:闫虹
    统筹:吴佳佳
    运营:朱倩仪 王赫萱 张芷莹 胡岚恩 小金
    新媒体:王贝贝 严洁 侯乐 鹅姐
    经纪:刘译遥 石征 曹凯月
    技术:张桐 黄天佑
    最终解释权归金腾奖主办方所有