Natural interest
作品详情
  • Details of the work 标题横线
    头像或者logo
    图片 刘姝
    城市:苏州
    公司: 一野设计
    参赛作品: 自然的意趣
    空间类型:公寓(150㎡以下)
    个人/公司简介:
    一野设计设计总监
    设计说明 | Design Instruction
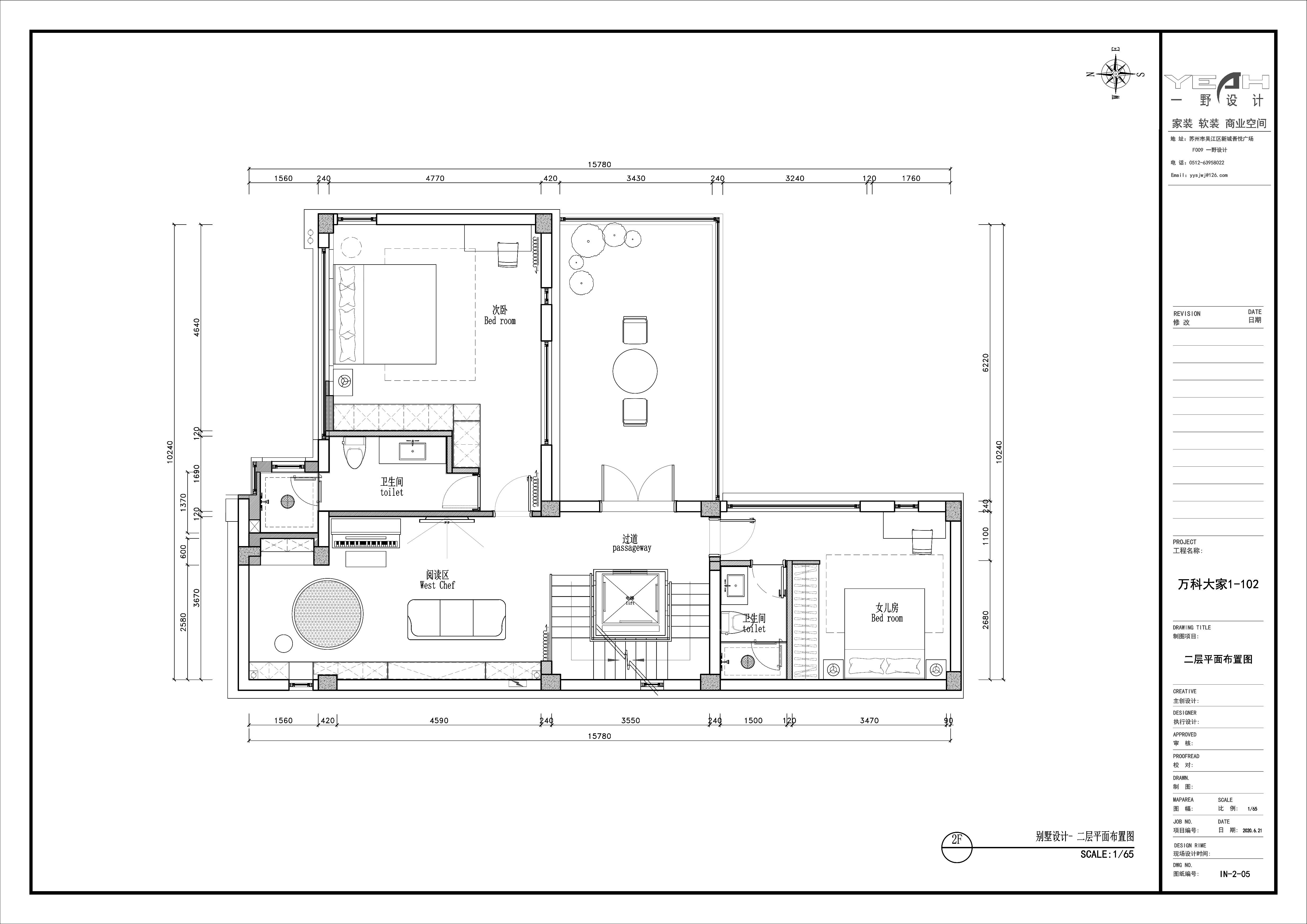
  • 山林的存在,向来是我们与环境连接的一种软界面。所以,相对于隐于山林的先天条件具备,模仿山林或隐喻山林的做法则为更多人所选择并付诸行动。由西北向伸展的阳澄湖半岛定义了阳澄湖南岸的基本轮廓,绿意葱茏的周围环境同广阔的湖水相互映衬,构建出宜居的、亲近自然山林的理想生活之地。 内外通常因墙体而界定,适当的开口或必要的材质替换,使视觉、空气、光、声音自由流动,内和外产生紧密地联系。湖区的自然景色浓缩于庭院之中,高低错落的种植、云光倒影的水池、淙淙的景观流水、攀缘的葡萄藤,随着四时变换,万物生长,使得焕发生机的宁静庭院成为了住宅内部外延的情感核心。 穿过廊道,首层的客餐厅区域由U型庭院所围合,借助虚实的关系彼此串联,三面落地门窗的优势为公区提供充足的光照,同时二者的互动,为家庭的户外活动创造了更多的可能。木作以厚度不一和平面勾缝的体块形式渲染于客厅主背景与餐厅的天花,自然元素的呼应令内外交织于一处,从而建立有机的整体。 功能的合理布局,是平面构成的基础。中西厨、客餐厅分别承担着不同的功能角色,有着明显区分,但又互为补充,开放的形式有利于促进家庭成员之间的交流。相对于木作的局部点缀,白色的基调借由涂料、烤漆板、独特柔纱帘的方式铺陈开来,现代的审美趣味与当下的生活交并,呈现新的融合状态。 基于原始柱体的落位,在垂直楼梯处的通道上置入旋转45°的双层柜体,有着适当的视觉遮挡作用,两侧不同角度的开口,层架的展示又丰富了视觉层次。尺度是空间舒适性的另一种衡量准则,起居、用餐、聚会以及和户外庭院的互动,于纵横之间,交错着路径的叠加、整合,共同构筑家的凝聚力。 随机、非对称的逻辑有利于应对不规则的平面布局,也可让构成的方式更具动态美感。二层阅读区依据一定比例,立面柜体或开放或者封闭,体块的变化与独立沙发形成前后的平衡关系。垂下的吊灯、小圆桌上铺开的书本、随地而卧的趴趴熊、独立阅读区以及一面水平延展的涂料墙一同构建了空间的活泼感和趣味性。 轴线是仪式的象征。主卧通过中心布局的方式,与书房构成联系,床背不到顶的木作和天花局部木作延续了公区的自然元素,又很好的隐喻了自然,让有限的物质面貌,塑造出无限的深邃意境。相对卧室而言,织物的亲近、视觉的协调、空间的舒适不仅由简约的、素雅的格调所包裹,也体现了业主独特的审美取向以及生活状态。 轴线是仪式的象征。主卧通过中心布局的方式,与书房构成联系,床背不到顶的木作和天花局部木作延续了公区的自然元素,又很好的隐喻了自然,让有限的物质面貌,塑造出无限的深邃意境。相对卧室而言,织物的亲近、视觉的协调、空间的舒适不仅由简约的、素雅的格调所包裹,也体现了业主独特的审美取向以及生活状态。
  • 图片
  • 图片
  • 图片
  • 图片
  • 图片
  • 图片
  • 图片
  • 图片
  • 图片
  • 图片
  • 图片
  • 图片
  • 图片
  • 图片
  • 图片
  • 图片
  • 图片
  • 图片
  • 图片
  • 图片
  • 图片
  • 图片
  • 图片
  • 图片
  • 图片
  • 图片
  • 图片
  • 图片
  • 图片
  • 图片
  • 图片
  • 图片
  • 图片
  • 图片
  • 图片
  • 图片
  • 图片
  • 图片
  • 图片
  • 图片
  • 上一个 下一个
    《金腾奖优秀作品年鉴》 私宅丨地产丨餐饮丨酒店丨办公丨商业丨公共丨产品丨公益丨人气 jintengAWARD(小金_金腾奖组委会) 广州市海珠区琶洲大道68号华新中心21楼
    金腾奖视频号 金腾奖小红书号 监制:闫虹
    统筹:吴佳佳
    运营:朱倩仪 王赫萱 张芷莹 胡岚恩 小金
    新媒体:王贝贝 严洁 侯乐 鹅姐
    经纪:刘译遥 石征 曹凯月
    技术:张桐 黄天佑
    最终解释权归金腾奖主办方所有