A simple but delicate home for purists
作品详情
  • Details of the work 标题横线
    头像或者logo
    图片 朱震熙
    城市:苏州
    公司: 一野设计
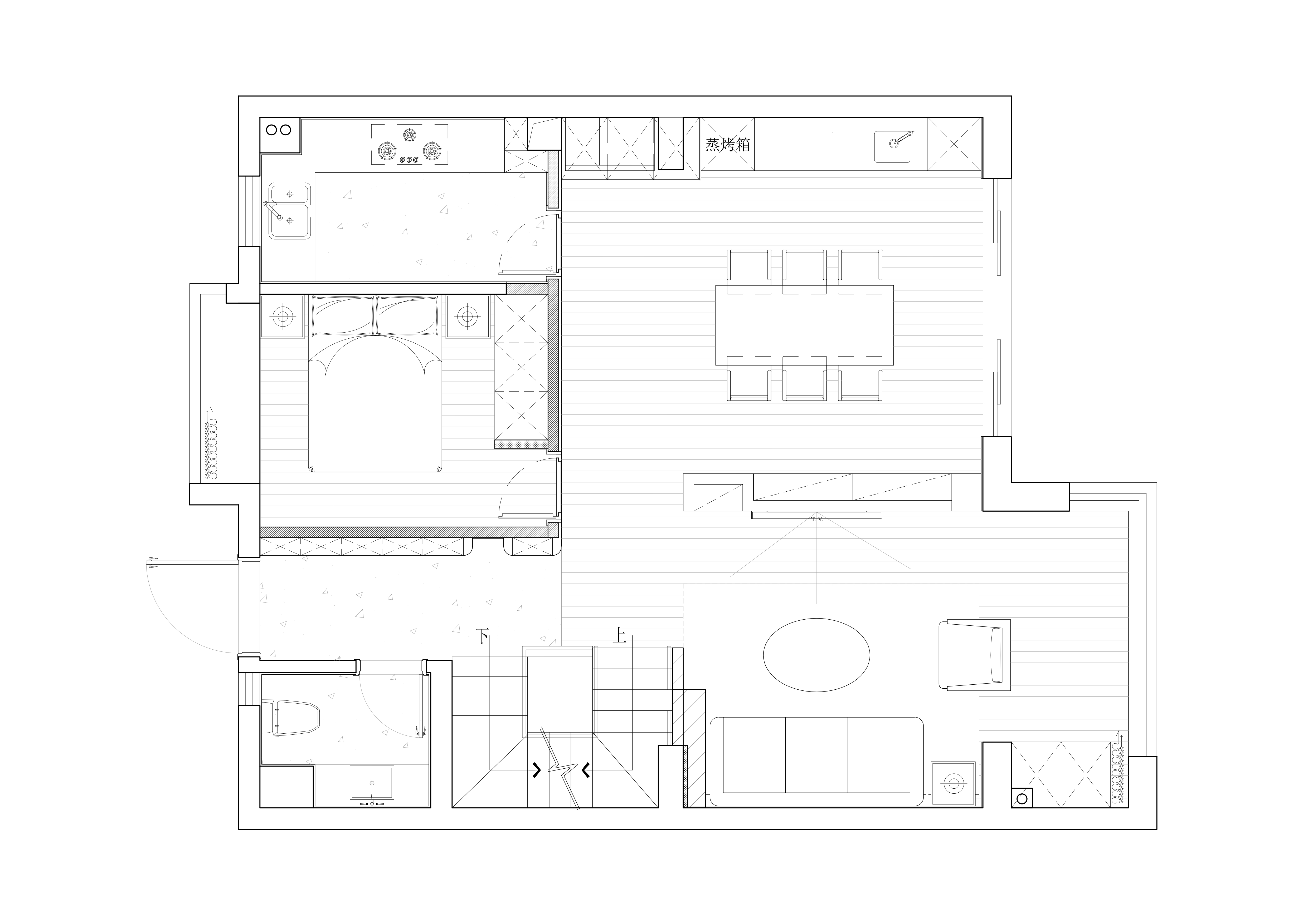
    参赛作品: 纯净主义简而精致的家
    空间类型:公寓(150㎡以下)
    个人/公司简介:
    一野设计首席设计师
    设计说明 | Design Instruction
  • 本案以简约却细腻的笔触,给居住者塑造了一个现代风的家,拥有当下设计的舒适便捷,却没有快节奏的氛围。一切都以居住者的心境为出发点,创造适合的功能,以精巧的细节赋予空间仪式感,让生活简单却精彩。 木饰面的温润细腻与奶油色的温柔相互融合,花砖清新典雅,让人从视觉、触觉感受到回家的仪式感。镜面打破空间的限制,在实用之外,予人宽广的视野。 科技联动人与世界,却也让人在复杂纷繁里迷失。家剥除这些复杂的关系,令人回归到自我和身边人。 小书架代替电视,开辟一方寻找自我的独处空间;沙发相对而立,布艺的材质舒适放松,足够一家人对坐。 宝蓝的色调沉静优雅,用色彩赋予空间活力。沙发的边几别具巧思,由台阶延伸而来,充满想象力的设计不仅实用,还富有让人会心一笑的趣味性。 在家里建造一个自由的空间,容纳最真实的自我,随心所欲地生活,享受家的归属。 用矮墙围合出一片幽静却不封闭的空间,自然光可以倾洒至每一个角落,氛围舒缓而放松;清浅的蓝与细碎的色块点缀出清新明朗的灵动感,空间沉静却不乏活力。 空间真正的生命力并源于浮华的外表,而在于丰富的生活。 长桌与操作台简单质朴,却实用,演绎着空间里的不同场景。是书房,是水吧区,是亲子活动的场域......简约的空间因可塑性而活了起来。 天花板的造型美化空间的结构,拉高层高,配合明朗的色调,提升空间居住体验。自然光由明及暗,形成对比,灯光描画重点,晕染空间的情绪。 天花板的造型美化空间的结构,拉高层高,配合明朗的色调,提升空间居住体验。自然光由明及暗,形成对比,灯光描画重点,晕染空间的情绪。
  • 图片
  • 图片
  • 图片
  • 图片
  • 图片
  • 图片
  • 图片
  • 图片
  • 图片
  • 图片
  • 图片
  • 图片
  • 图片
  • 图片
  • 图片
  • 图片
  • 图片
  • 图片
  • 图片
  • 图片
  • 图片
  • 图片
  • 图片
  • 图片
  • 图片
  • 图片
  • 图片
  • 图片
  • 图片
  • 图片
  • 图片
  • 图片
  • 图片
  • 上一个 下一个
    《金腾奖优秀作品年鉴》 私宅丨地产丨餐饮丨酒店丨办公丨商业丨公共丨产品丨公益丨人气 jintengAWARD(小金_金腾奖组委会) 广州市海珠区琶洲大道68号华新中心21楼
    金腾奖视频号 金腾奖小红书号 监制:闫虹
    统筹:吴佳佳
    运营:朱倩仪 王赫萱 张芷莹 胡岚恩 小金
    新媒体:王贝贝 严洁 侯乐 鹅姐
    经纪:刘译遥 石征 曹凯月
    技术:张桐 黄天佑
    最终解释权归金腾奖主办方所有