F+ Whole House Customization
作品详情
  • Details of the work 标题横线
    头像或者logo
    图片 FF DESIGN 设计引力特约推荐
    城市:上海
    公司:FF DESIGN
    参赛作品: F+全屋定制
    空间类型:办公
    个人/公司简介:
    费弗空间设计(FF DESIGN)成立于2017年,是一家在业内享有声誉的室内设计公司。 设计团队由一批高素质国际化的资深设计师组成,为客户提供专业及优质的硬软装整体设计服务,设计范畴包括建筑设计、高端住宅、样板间及售楼中心、精装交楼标准、酒店及餐饮俱乐部、商业中心、办公空间等。 FF DESIGN 拥有才华横溢的专业人士与管理团队,其资源与技术优势完全可以胜任完整的项目运作,即:市场分析定位、总体规划以及贯穿整个项目施工过程中的施工图设计、现场管理等。 此外,我们与其他建筑设计和工程事务所及品牌专业咨询公司保持有良好的合作关系,实现无缝对接。共同为客户提供优质的设计服务。 设计理念 我们的作品应当是对当下的社会问题作出的一种回应,是在解决过去、现在和未来的连续性问题。 我们认为设计应在普遍性当中寻求与众不同,差异性和多样性,这些是设计进步的源动力。 设计不应只是追求夸张、惊人的形式,应当是对现代人行为方式的研究。 我们跟很多设计师一样,在资源过度消耗的今天追求负设计,负设计是在满足人们需求的前提下将能耗降到最低。我们希望用最合适的设计语言让人跟空间产生对话、交流与情感共鸣。
    设计说明 | Design Instruction
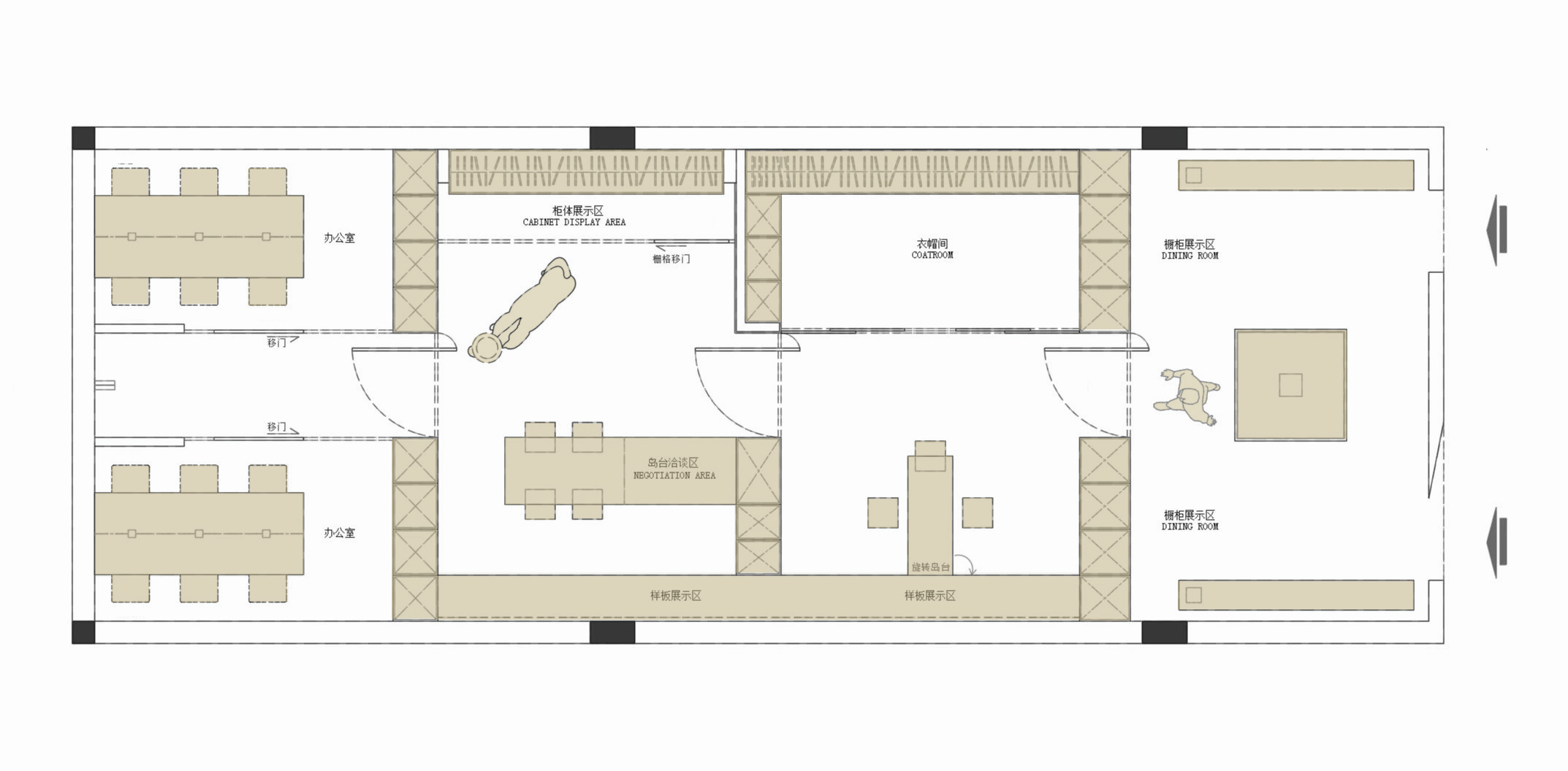
  • 设计灵感与理念: 从设计之初便寻求突破。我们从建筑大师路易斯·康的萨尔克生物研究所汲取灵感,运用克制之美,通过光为媒介,构筑空间的灵魂,从而将品牌的极简气质巧妙地融入空间中。此外,与互联网的蓬勃发展和疫情带来的生活方式变革相结合,本展厅不仅仅是展示产品的场所,更是展现品牌气质与理念的空间。 设计特色: 空间序幕: 空间的首次印象十分关键。设计师打破传统的空间结构,通过前端的片墙构建好奇的空间序幕,重新组织空间路径,使其具备更强的可游性。配合上下两端的洗墙灯,形成别致的光影纹理,为空间增添神秘感。 光与影的对话: 光,在这个展厅中,不仅仅是照明工具,它是塑造氛围的主要元素。从星空点点的顶部到线性地灯的延展,暖色调的灯光与暗色系的空间相互碰撞,打破空间的沉静,赋予其纵深与活力。 灵活的空间布局: 走廊的三处隐形门为空间提供了多变的可能性,根据需求进行开合,实现空间的横向切割,满足不同场景的使用需求。 产品与空间的交融: 在产品展示区,设计团队放弃了常规的场景化设计,转而强调与产品相符的空间气韵,如同黑马装置突入眼帘,让人印象深刻。 充满品牌气质的洽谈区: 站立高度的岛台提供了多人交流的空间,而岛台背后整齐展示的产品样板,方便了客户的实际体验和了解。
  • 图片
  • 图片
  • 图片
  • 图片
  • 图片
  • 图片
  • 图片
  • 图片
  • 图片
  • 图片
  • 图片
  • 图片
  • 图片
  • 图片
  • 图片
  • 图片
  • 图片
  • 图片
  • 图片
  • 图片
  • 图片
  • 图片
  • 图片
  • 图片
  • 图片
  • 图片
  • 图片
  • 图片
  • 图片
  • 图片
  • 图片
  • 图片
  • 图片
  • 图片
  • 图片
  • 图片
  • 图片
  • 图片
  • 图片
  • 图片
  • 图片
  • 图片
  • 图片
  • 图片
  • 图片
  • 图片
  • 图片
  • 上一个 下一个
    《金腾奖优秀作品年鉴》 私宅丨地产丨餐饮丨酒店丨办公丨商业丨公共丨产品丨公益丨人气 jintengAWARD(小金_金腾奖组委会) 广州市海珠区琶洲大道68号华新中心21楼
    金腾奖视频号 金腾奖小红书号 监制:闫虹
    统筹:吴佳佳
    运营:朱倩仪 王赫萱 张芷莹 胡岚恩 小金
    新媒体:王贝贝 严洁 侯乐 鹅姐
    经纪:刘译遥 石征 曹凯月
    技术:张桐 黄天佑
    最终解释权归金腾奖主办方所有