JUANZHI
作品详情
  • Details of the work 标题横线
    头像或者logo
    图片 广州居研设计有限公司 设计引力特约推荐
    城市:广州
    公司:广州居研设计有限公司
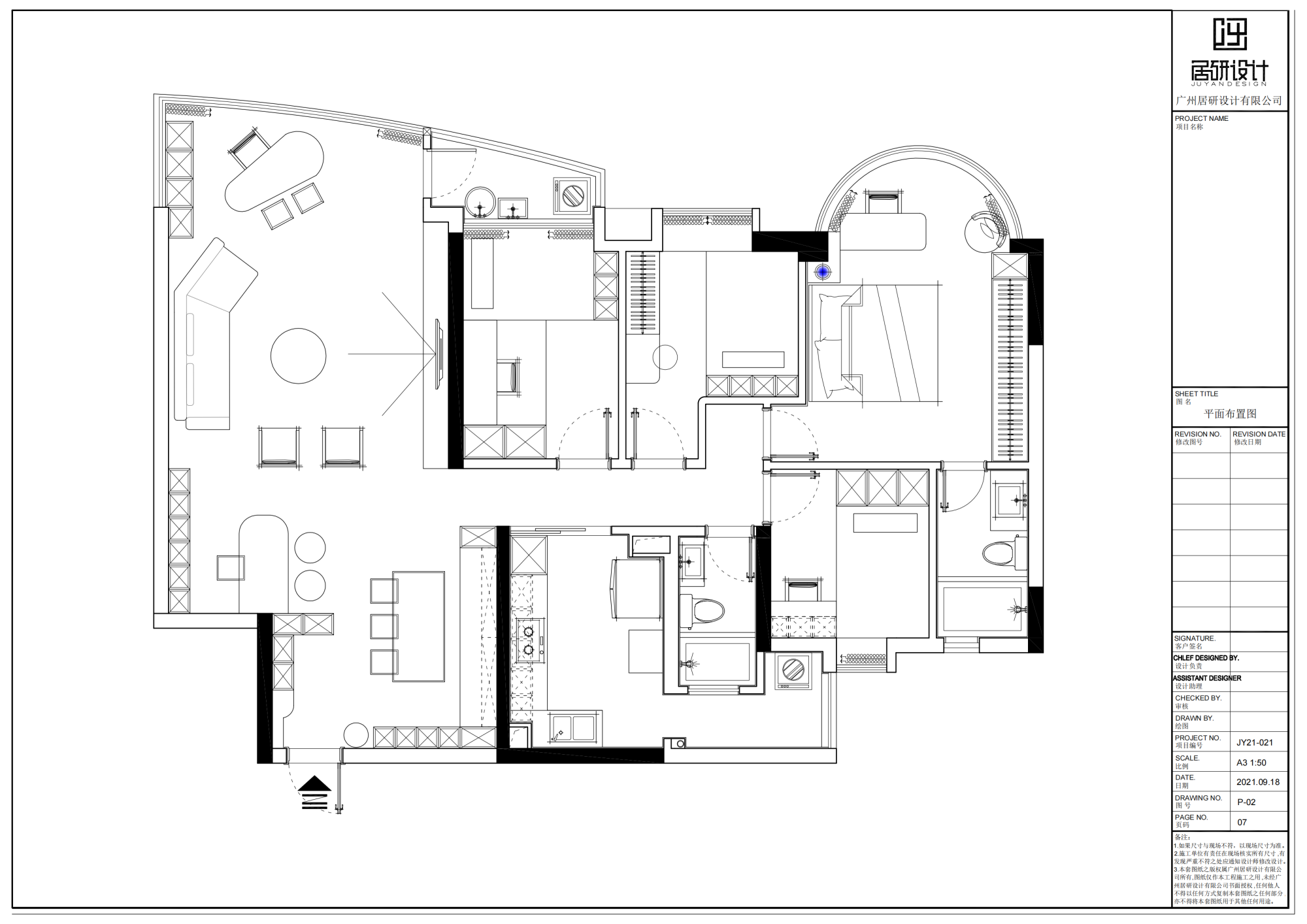
    参赛作品: 卷帙之宅
    空间类型:公寓(150㎡以下)
    个人/公司简介:
    广州居研设计有限公司,由热爱生活的优秀设计师林婷婷女士于2019年创立。公司自成立以来就坚持原创、不断创新,“居怡心之所、研生活之美”,我们专业做设计,更专注于生活,做有态度的设计。一直专注于现代化高端空间和环境设计,致力于将高端的设计理念、完美的后续服务带给每一个客户。
    设计说明 | Design Instruction
  • 本案例是三代同堂,育有一对双胞胎,希望小朋友有各自独立的学习空间,所以需要将原三室改为四居室。非常注重孩子教育,想要有理想的读书空间又有单独的休闲喝茶区域。 玄关,从无到有,通顶收纳柜拥有着“屏风”的作用,隔开了与客厅的直接视觉。深色层板替代穿鞋凳,点缀着以白色为主的玄关空间,上下安装灯带,开灯后有一种悬浮的既视感。 将原来的阳台打通并入客厅,设置饮茶休闲区,空间之间的互动与采光得以优化。无茶几的客厅让亲子互动拥有了更多可能,运动、玩耍、做手工等无惧空间的约束。 无电视的背景墙柜左右两边做以不同的柜门呈现,格栅柜门让整个单调的空间多一丝的趣味性。底下一整排小抽屉,让身高不够的宝贝们养成收纳的好习惯,让成长不再被电视所“占领”。弱化客厅,设立亲子阅读多功能区,增加通顶长2.3米的展示收纳书架。可收纳大量的童话故事书,满足收纳小宝贝们每个阶段成长翻阅的书籍。小宝贝除了学习阅读,免不了涂涂画画。所以在书桌旁制作了可擦拭白板墙,在有限的空间也可以满足好奇宝宝艺术天性的释放。 主卧天花恢复了原姿态的呈现,让本来复杂的空间趋于干净整洁。床尾定制满墙的通顶高柜,让四季衣物井然有序的有挂,有叠。保留弧形落地窗,增加黑色质感的书桌,平时较隐私的办公可在此完成,又能肆意的沐浴阳光。
  • 图片
  • 图片
  • 图片
  • 图片
  • 图片
  • 图片
  • 图片
  • 图片
  • 图片
  • 图片
  • 图片
  • 图片
  • 图片
  • 图片
  • 图片
  • 图片
  • 图片
  • 图片
  • 图片
  • 图片
  • 图片
  • 图片
  • 图片
  • 上一个 下一个
    《金腾奖优秀作品年鉴》 私宅丨地产丨餐饮丨酒店丨办公丨商业丨公共丨产品丨公益丨人气 jintengAWARD(小金_金腾奖组委会) 广州市海珠区琶洲大道68号华新中心21楼
    金腾奖视频号 金腾奖小红书号 监制:闫虹
    统筹:吴佳佳
    运营:朱倩仪 王赫萱 张芷莹 胡岚恩 小金
    新媒体:王贝贝 严洁 侯乐 鹅姐
    经纪:刘译遥 石征 曹凯月
    技术:张桐 黄天佑
    最终解释权归金腾奖主办方所有