KONGMING
作品详情
  • Details of the work 标题横线
    头像或者logo
    图片 广州居研设计有限公司 设计引力特约推荐
    城市:广州
    公司:广州居研设计有限公司
    参赛作品: 空明之境
    空间类型:公寓(150㎡以下)
    个人/公司简介:
    广州居研设计有限公司,由热爱生活的优秀设计师林婷婷女士于2019年创立。公司自成立以来就坚持原创、不断创新,“居怡心之所、研生活之美”,我们专业做设计,更专注于生活,做有态度的设计。一直专注于现代化高端空间和环境设计,致力于将高端的设计理念、完美的后续服务带给每一个客户。
    设计说明 | Design Instruction
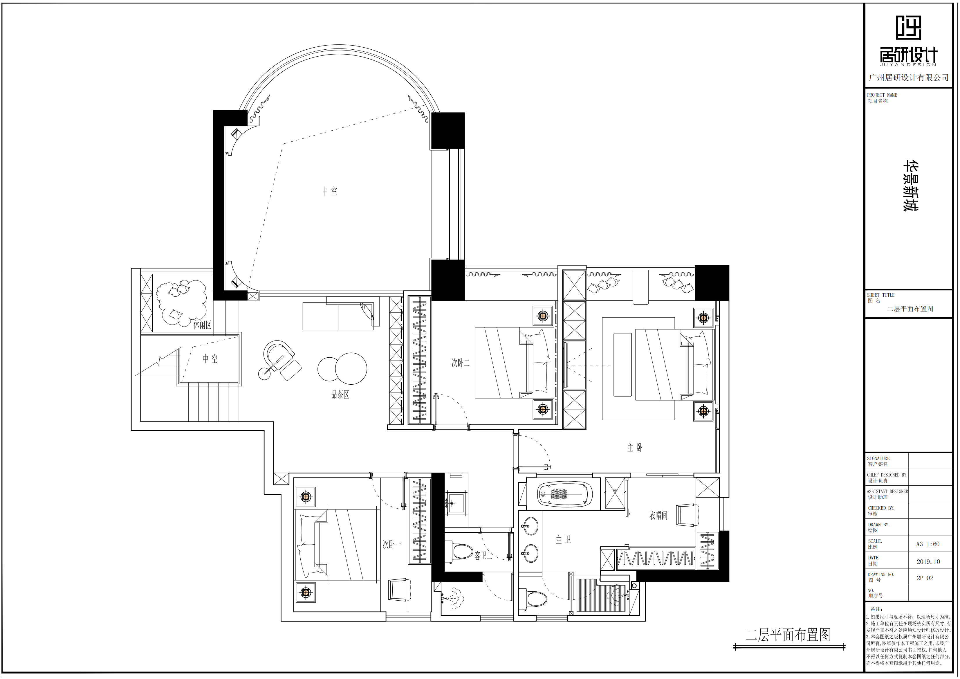
  • 本项目原始结构为毛坯顶楼复式,框架自由有着多种可能性设计,80后夫妻与父母居住,暂时没有要小孩的打算,但屋主要求保留其卧室数量,觉得酒店式的住宅更加的简洁、简单,所以整屋以现代极简轻奢去设计,落地的过程中需要注意的是更多的细节与收口工艺。 厨房、餐厅、客厅紧密相连,动线布局自然流畅,选用圆形餐桌带动了多空间的流畅度。厨房与餐厅用大理石面吧台做过渡,平时兴起雅致自斟自饮或与朋友闲谈的小酌几杯,吧台也能作为西厨台的使用。 5.8米超高落地窗,为上下两层的公共空间带来了充足的采光。明亮的自然光透过玻璃折射,不同材质的家具由光引出不同肌理质感。将原飘窗台砌墙,铺贴水墨纹意大利灰大理石面砖,沙发背景墙采用对称木饰面护墙板弱化了本来方形的棱角,加以灯带及设置开放格增加储物的同时也能为单调的背景增添视觉的丰富感观。选用弧形沙发能很好的贴合微调后的整个空间。 向上挑空的客厅空旷明亮,配以逐渐增大的几何线型吊灯,为整个空间轮廓添加了动态角度的艺术性。二层使用透明玻璃护栏,保证了上下公共空间视野的开阔与采光。 二层空间多为私密的卧室,唯一设立的公共区域是多功能休闲区。无边框的玻璃护栏有着“隐形”边界的作用。主卫参考了酒店式的卫浴风格,地面与墙面同为做旧的大理石,不同的纹理、光泽、饱和度丰富了整个深色空间。次卧床头背景错落布艺硬包,呈现鲜明的棱角,更强的线条感,营造幽暗静谧的空间氛围。沿用无主灯设计,也摒弃所有的装饰,注重简约实用。
  • 图片
  • 图片
  • 图片
  • 图片
  • 图片
  • 图片
  • 图片
  • 图片
  • 图片
  • 图片
  • 图片
  • 图片
  • 图片
  • 图片
  • 图片
  • 图片
  • 图片
  • 图片
  • 图片
  • 图片
  • 图片
  • 图片
  • 图片
  • 图片
  • 图片
  • 图片
  • 图片
  • 图片
  • 图片
  • 图片
  • 上一个 下一个
    《金腾奖优秀作品年鉴》 私宅丨地产丨餐饮丨酒店丨办公丨商业丨公共丨产品丨公益丨人气 jintengAWARD(小金_金腾奖组委会) 广州市海珠区琶洲大道68号华新中心21楼
    金腾奖视频号 金腾奖小红书号 监制:闫虹
    统筹:吴佳佳
    运营:朱倩仪 王赫萱 张芷莹 胡岚恩 小金
    新媒体:王贝贝 严洁 侯乐 鹅姐
    经纪:刘译遥 石征 曹凯月
    技术:张桐 黄天佑
    最终解释权归金腾奖主办方所有