DROP
作品详情
  • Details of the work 标题横线
    头像或者logo
    图片 广州居研设计有限公司 设计引力特约推荐
    城市:广州
    公司:广州居研设计有限公司
    参赛作品: 落差
    空间类型:公寓(150㎡以下)
    个人/公司简介:
    广州居研设计有限公司,由热爱生活的优秀设计师林婷婷女士于2019年创立。公司自成立以来就坚持原创、不断创新,“居怡心之所、研生活之美”,我们专业做设计,更专注于生活,做有态度的设计。一直专注于现代化高端空间和环境设计,致力于将高端的设计理念、完美的后续服务带给每一个客户。
    设计说明 | Design Instruction
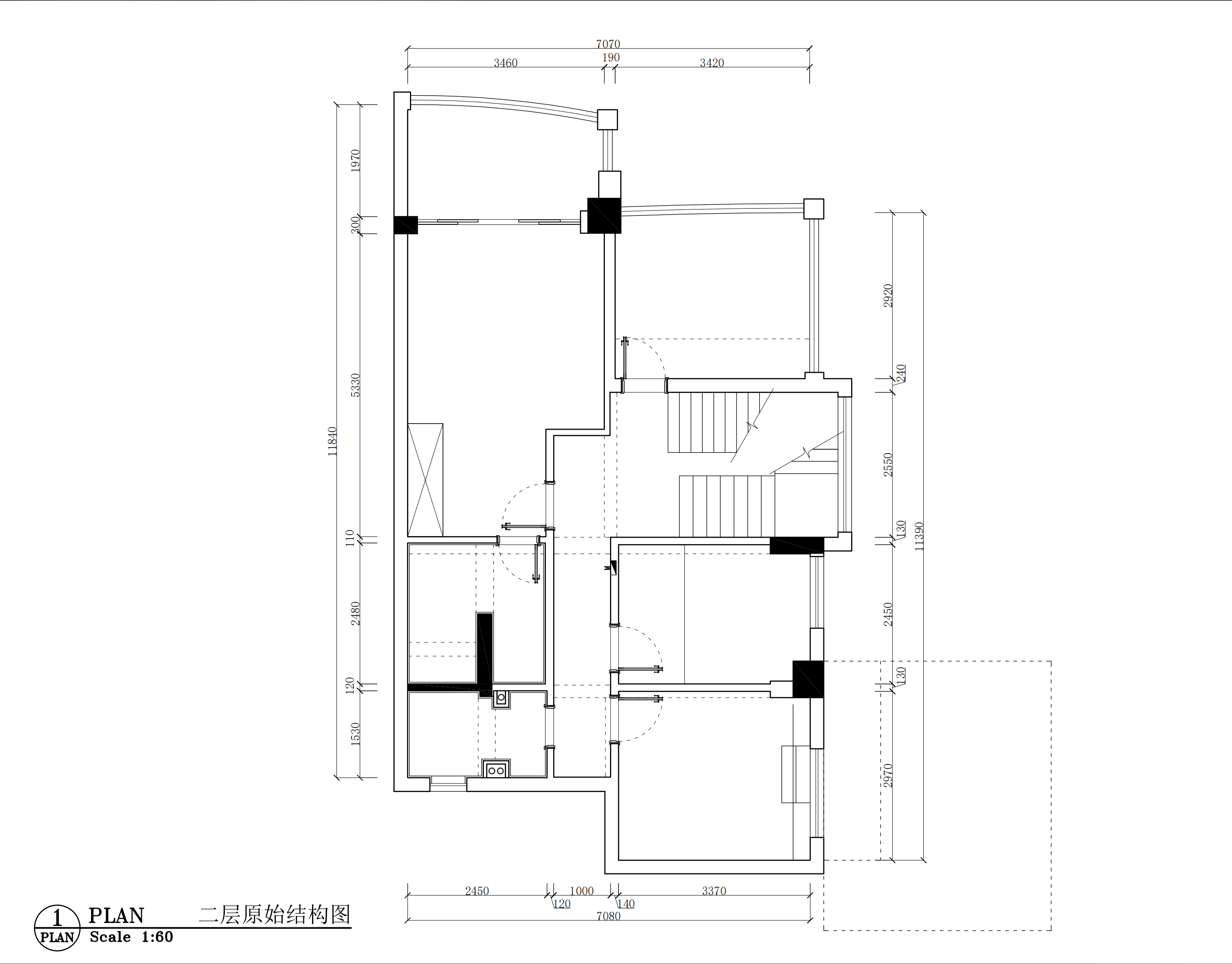
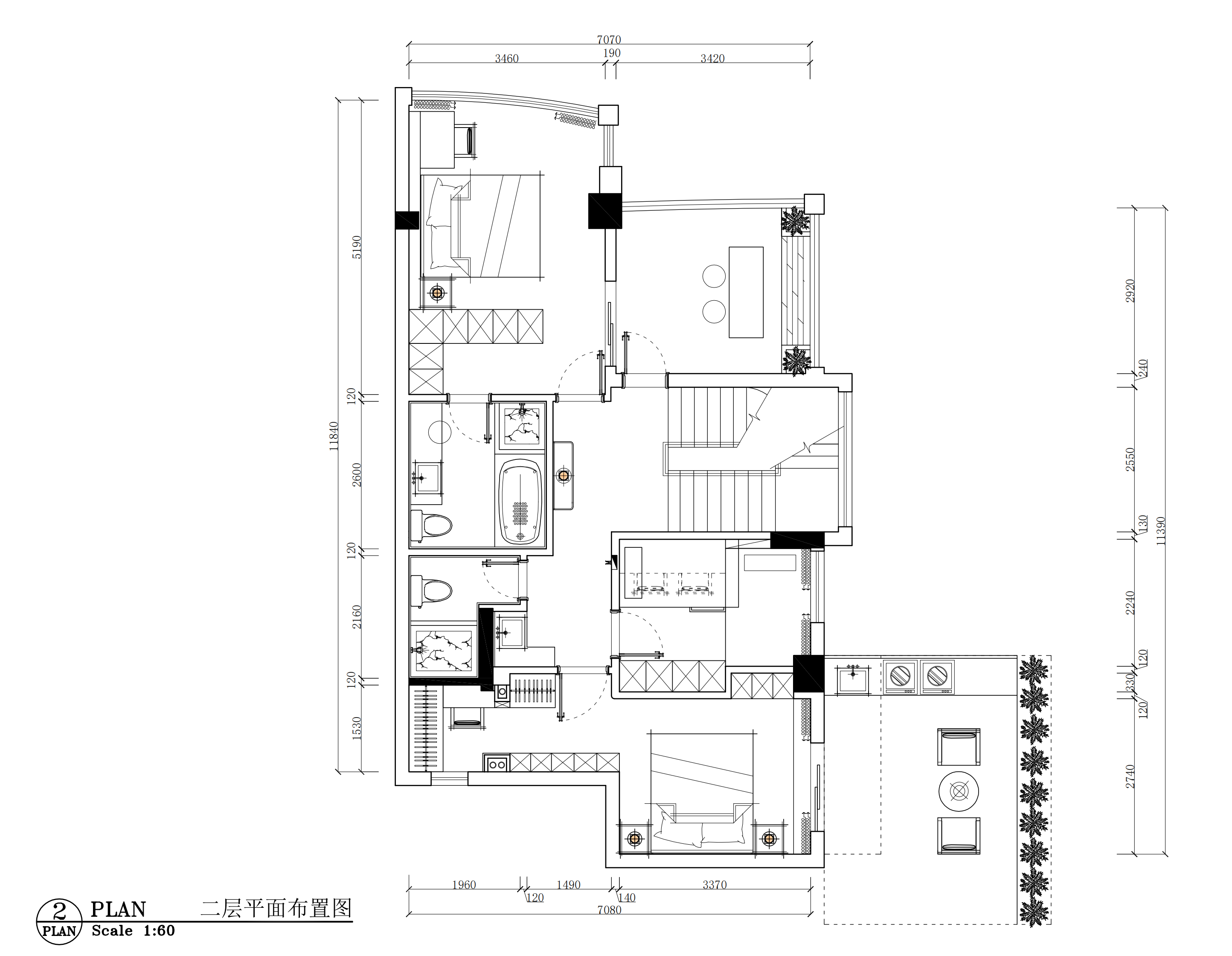
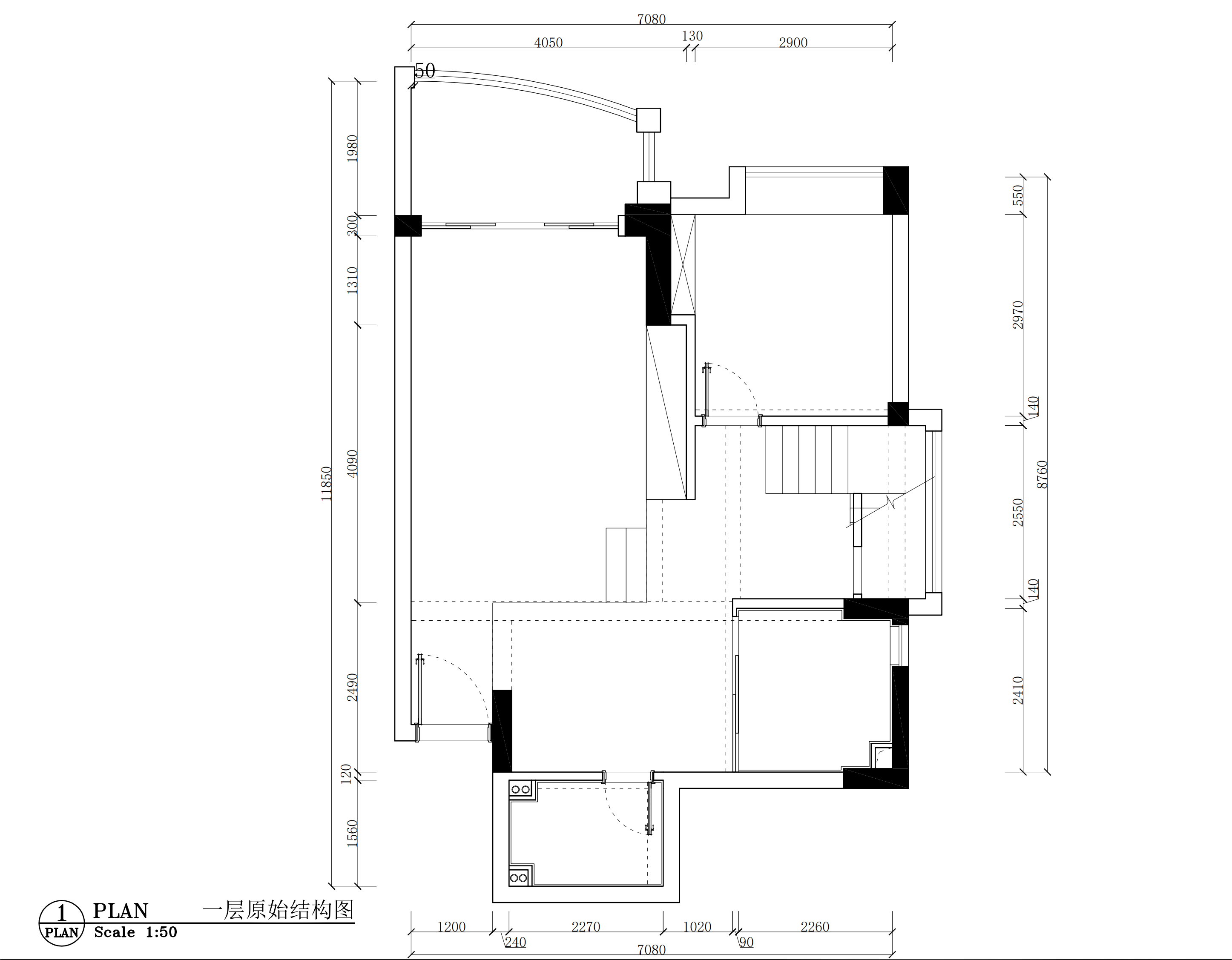
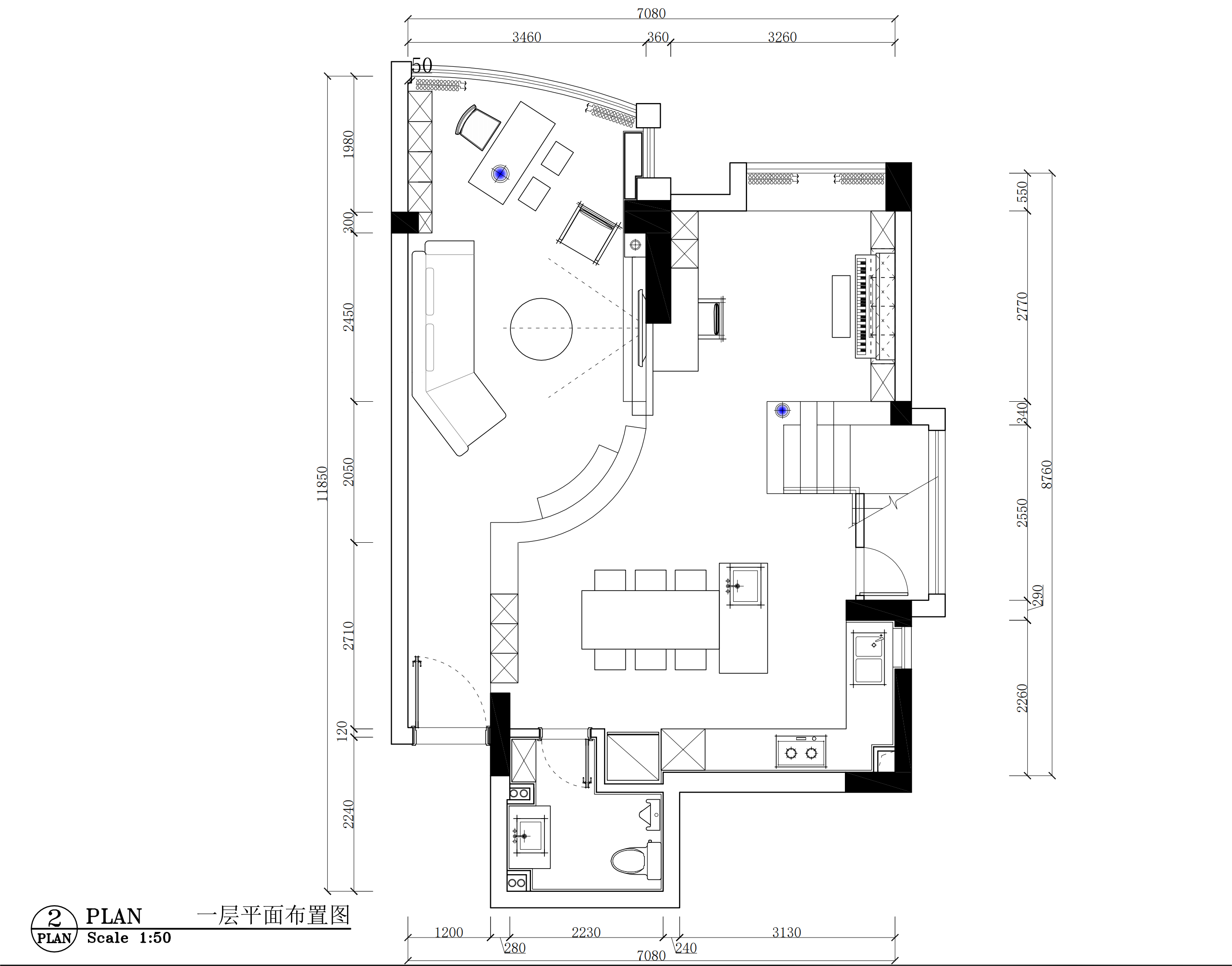
  • 本项目为三代同堂的三层复式旧房改造,原结构公共区域都较为狭小,怎么做到协调的公共空间设计是本案的目的,还需要更好的将阳光引入室内。 一层作为公共空间的划分,打掉了所有能拆的隔断,从而化为一个格局更流畅,互动更便捷的整体空间,封窗让室外的景自然而然的映入眼帘,与阳光有了更亲密的接触。 跃式楼梯改造成弧形的方式,与客厅围和一起,采用木饰面与微水泥相互交错,有视觉层次感,可坐在上面与客厅互动,同时也链接着餐厅与休闲区位置,承上启下的作用。
  • 图片
  • 图片
  • 图片
  • 图片
  • 图片
  • 图片
  • 图片
  • 图片
  • 图片
  • 图片
  • 图片
  • 图片
  • 图片
  • 图片
  • 图片
  • 图片
  • 图片
  • 图片
  • 图片
  • 图片
  • 图片
  • 图片
  • 图片
  • 图片
  • 图片
  • 图片
  • 图片
  • 上一个 下一个
    《金腾奖优秀作品年鉴》 私宅丨地产丨餐饮丨酒店丨办公丨商业丨公共丨产品丨公益丨人气 jintengAWARD(小金_金腾奖组委会) 广州市海珠区琶洲大道68号华新中心21楼
    金腾奖视频号 金腾奖小红书号 监制:闫虹
    统筹:吴佳佳
    运营:朱倩仪 王赫萱 张芷莹 胡岚恩 小金
    新媒体:王贝贝 严洁 侯乐 鹅姐
    经纪:刘译遥 石征 曹凯月
    技术:张桐 黄天佑
    最终解释权归金腾奖主办方所有