Undefinition
作品详情
  • Details of the work 标题横线
    头像或者logo
    图片 广州居研设计有限公司 设计引力特约推荐
    城市:广州
    公司:广州居研设计有限公司
    参赛作品: 无定义
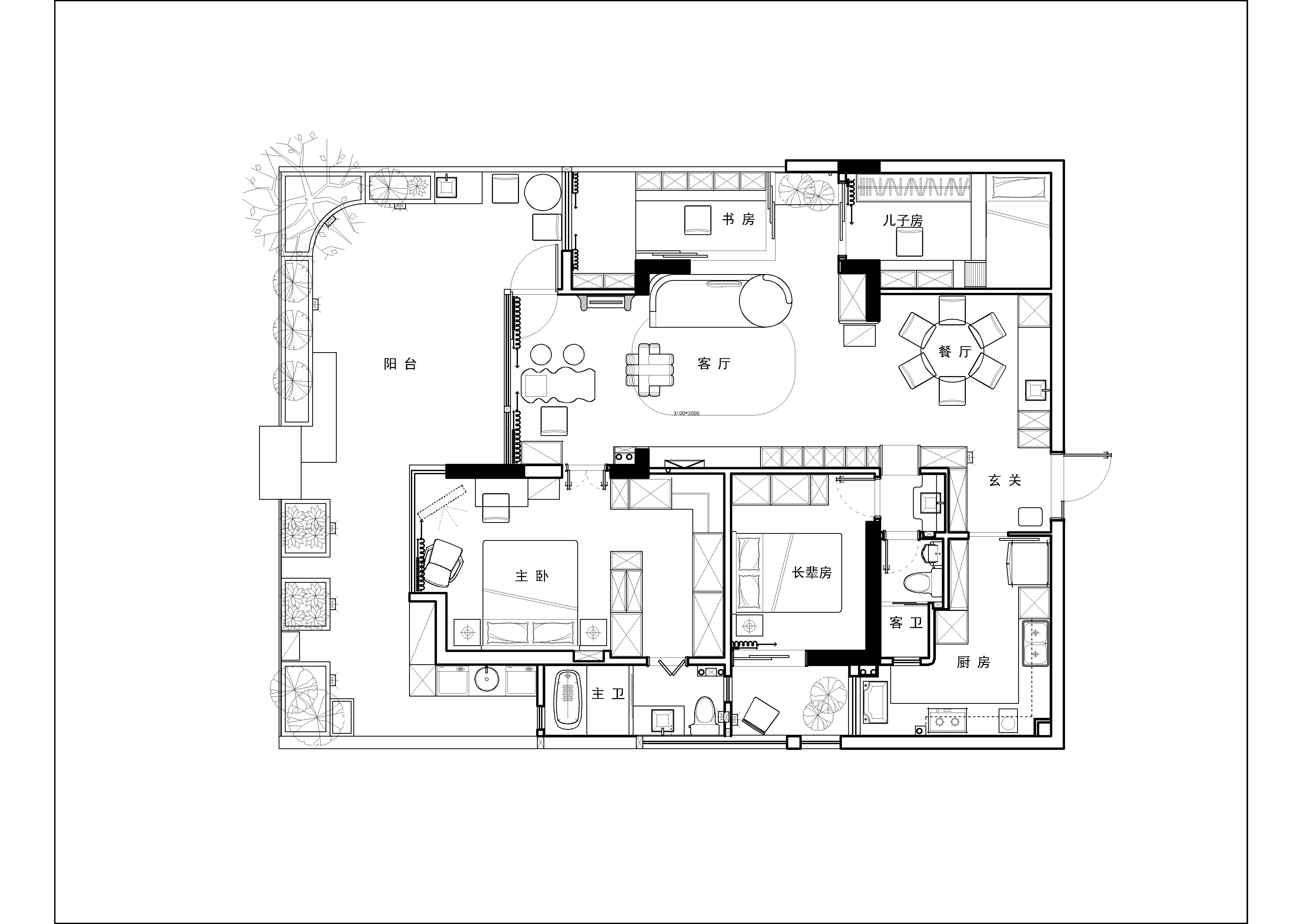
    空间类型:公寓(150㎡以下)
    个人/公司简介:
    广州居研设计有限公司,由热爱生活的优秀设计师林婷婷女士于2019年创立。公司自成立以来就坚持原创、不断创新,“居怡心之所、研生活之美”,我们专业做设计,更专注于生活,做有态度的设计。一直专注于现代化高端空间和环境设计,致力于将高端的设计理念、完美的后续服务带给每一个客户。
    设计说明 | Design Instruction
  • 追求平衡、和谐是本案的主旨,三代同堂家庭,需要构建一个老中青共待一个空间的和谐,侧面也在将中西文化的碰撞与色彩平衡和谐化,追求整个空间不同材质、不同肌理的平衡。 介于现在流行的极简风,本案做了一个相对立的极繁风格。以家庭每个成员的需求为出发点,打造属于每个人想要的舒适小空间。从玄关到客厅再到私人领域的卧室,收纳空间针对各区域做划分,也因水饮习惯的不同,打造了冷水吧台与热饮区。 整个空间对色彩的使用是非常大胆的,软装的色彩碰撞是微妙的,细节的;而建材的选择上也是多样的,除去天然的水泥沙,还有金属钢材,各不同木饰面的木材,与主流的极简风形成强烈的对比,旨在把喜欢的所有东西堆满整个家,让室外的自然风光融入到室内,这是一种对生活的美好向往与期待,是积极热爱生活的态度。 无风格定义的家,各空间都是恰到好处的建构,现代、复古、中式、西式都出现在同一居所,随着时间的流逝,沉淀出属于独特的气息。
  • 图片
  • 图片
  • 图片
  • 图片
  • 图片
  • 图片
  • 图片
  • 图片
  • 图片
  • 图片
  • 图片
  • 图片
  • 图片
  • 图片
  • 图片
  • 图片
  • 图片
  • 图片
  • 图片
  • 图片
  • 图片
  • 图片
  • 图片
  • 图片
  • 图片
  • 图片
  • 图片
  • 上一个 下一个
    《金腾奖优秀作品年鉴》 私宅丨地产丨餐饮丨酒店丨办公丨商业丨公共丨产品丨公益丨人气 jintengAWARD(小金_金腾奖组委会) 广州市海珠区琶洲大道68号华新中心21楼
    金腾奖视频号 金腾奖小红书号 监制:闫虹
    统筹:吴佳佳
    运营:朱倩仪 王赫萱 张芷莹 胡岚恩 小金
    新媒体:王贝贝 严洁 侯乐 鹅姐
    经纪:刘译遥 石征 曹凯月
    技术:张桐 黄天佑
    最终解释权归金腾奖主办方所有