BOX
作品详情
  • Details of the work 标题横线
    头像或者logo
    图片 宏福樘设计 设计引力特约推荐
    城市:成都
    公司:宏福樘设计
    参赛作品: 盒室
    空间类型:公寓(150㎡以下)
    个人/公司简介:
    成都宏福樘装饰有限公司成立于2013年,是一家设计和施工一体的「设计型」家装公司。 我们专注于居住空间美学研究只做原创设计,致力于为客户提供差异化的设计定制及省时省心省力的全案施工托管,以实现真正的设计效果1:1还原。 10年来坚持原创坚守初心以“设计创造·生活之美”为理念,注重原创设计与施工材料工艺配合,坚持自行施工不转包。以价格透明为出发点,将零增项写进合同。以体系化的设计+施工配合管控,累积出品实拍案例300+套。 我们认为生活之美,既是有温度和质感的空间美学,也是充满热情与诗意的内心感受,更是可以感知和触摸的日常美好。是一个温暖、简单、不囿于风格形式、不盲从流行观念、真实而舒适的理想居住体验。 我们相信质感远大于新鲜感,家的设计和服装搭配有一些相通之处。充满新鲜感的花色和款式,过一年半载就不太喜欢了,久而久之发现留在衣柜不过时的,总是那些注重质感和剪裁的衣服。而宏福樘所做的则是,当流行退去时,依然被喜欢的家。 公司集团旗下不仅拥有【宏福樘设计】(成都/贵阳店),还同时运营【诺福澜软装】【屿筑设计事务所】两个独立品牌。以健全的产品服务架构,提供体系化的全案设计、软装设计、装修施工、主材/软装代购室内装修服务。
    设计说明 | Design Instruction
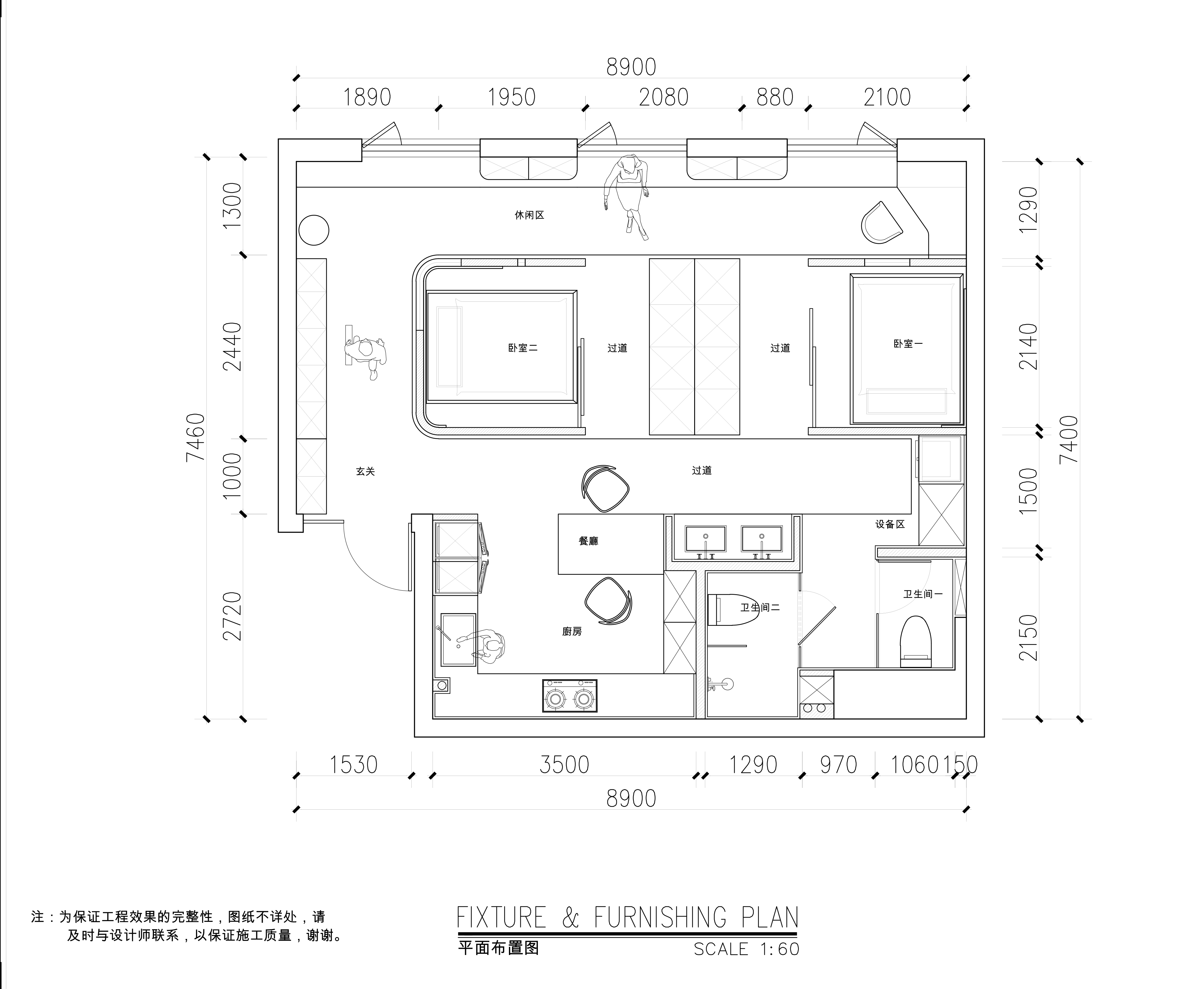
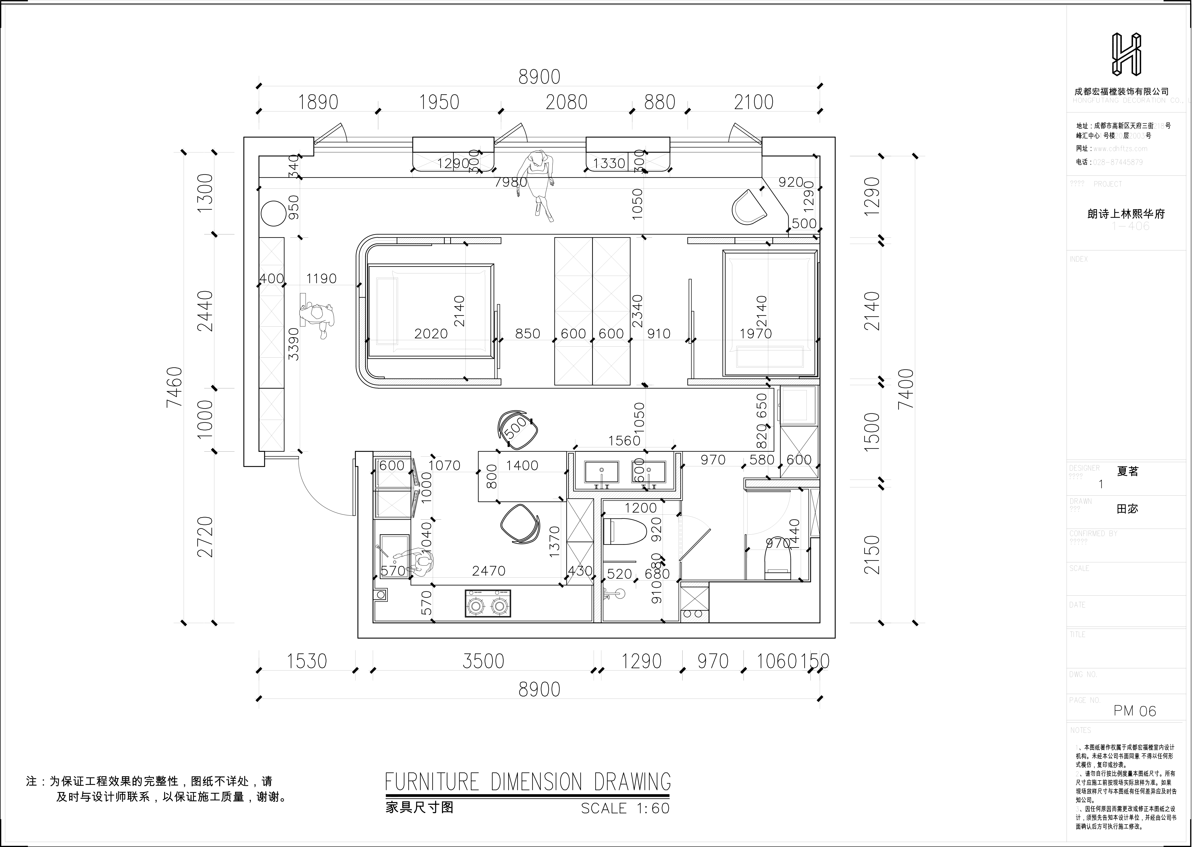
  • 该案是我们为一对恋人打造的居所,从事IT行业的二人希望居所功能区域划分明确又不是新颖与趣味。由此,我们以BOX为设计概念,于方正的大盒子里根据居住需求划分出各个不同的小盒子,包括·休闲会客区、阅读区、餐厨区、睡眠区、以及干湿分离区。 在60㎡有限的空间下,优化多重功能,可以重叠应用、穿梭互动,最后呈现出充满个性,消融沉闷的现代多元空间。 为留白区域中心装入矩形盒子,对应不同的功能需求,空间立即被分割划分。沿弧形墙体、水泥灰地砖为导向转弯。顺延顶部预埋灯带,足够的光亮瓦数替代常规筒灯,避免切碎平面,层次分明,保证每一个视角统一。底部则围绕盒子抬高,围绕金属踢脚线内嵌灯带,提升悬浮效果,制造轻盈视觉。 以墨绿小花砖铺贴,区分出不同的生活动线。入户向右沿走廊而行,为空间的餐厨、卫浴、家政区域。因原结构有一面方向是完全封闭、无自然采光的,所以在功能的排布上进行了更细致的优化。 走廊后部分根据两人生活需求,合理划分为干区洗手台、家政洗衣,以及双卫(单独如厕与淋浴+如厕不同功能)。同样为封闭区,小盒子中的另一过道也刚好将休闲区光线很好的引入进来,在早晨洗漱时,可以拥有足够的自然光照,无需开启光源。 主卧位于盒子后部,书桌与家政区域之间。于一侧墙体中心设计圆形玻璃,强调出视觉趣味性,且在不影响睡眠的情况下,引入适度的自然采光。 改造说明 ➊ 入户直走,至藏书、阅读、观景、办公区 ➋ 入户右转,进入餐厨、卫浴、家政区 ➌ 于1、2动线之间互相穿梭,分别为会客区、储物空间以及睡眠主卧
  • 图片
  • 图片
  • 图片
  • 图片
  • 图片
  • 图片
  • 图片
  • 图片
  • 图片
  • 图片
  • 图片
  • 图片
  • 图片
  • 图片
  • 图片
  • 图片
  • 图片
  • 图片
  • 图片
  • 图片
  • 图片
  • 图片
  • 图片
  • 图片
  • 图片
  • 图片
  • 图片
  • 上一个 下一个
    《金腾奖优秀作品年鉴》 私宅丨地产丨餐饮丨酒店丨办公丨商业丨公共丨产品丨公益丨人气 jintengAWARD(小金_金腾奖组委会) 广州市海珠区琶洲大道68号华新中心21楼
    金腾奖视频号 金腾奖小红书号 监制:闫虹
    统筹:吴佳佳
    运营:朱倩仪 王赫萱 张芷莹 胡岚恩 小金
    新媒体:王贝贝 严洁 侯乐 鹅姐
    经纪:刘译遥 石征 曹凯月
    技术:张桐 黄天佑
    最终解释权归金腾奖主办方所有