YISHAN
作品详情
  • Details of the work 标题横线
    头像或者logo
    图片 宏福樘设计 设计引力特约推荐
    城市:成都
    公司:宏福樘设计
    参赛作品: 以山
    空间类型:公寓(150㎡以下)
    个人/公司简介:
    成都宏福樘装饰有限公司成立于2013年,是一家设计和施工一体的「设计型」家装公司。 我们专注于居住空间美学研究只做原创设计,致力于为客户提供差异化的设计定制及省时省心省力的全案施工托管,以实现真正的设计效果1:1还原。 10年来坚持原创坚守初心以“设计创造·生活之美”为理念,注重原创设计与施工材料工艺配合,坚持自行施工不转包。以价格透明为出发点,将零增项写进合同。以体系化的设计+施工配合管控,累积出品实拍案例300+套。 我们认为生活之美,既是有温度和质感的空间美学,也是充满热情与诗意的内心感受,更是可以感知和触摸的日常美好。是一个温暖、简单、不囿于风格形式、不盲从流行观念、真实而舒适的理想居住体验。 我们相信质感远大于新鲜感,家的设计和服装搭配有一些相通之处。充满新鲜感的花色和款式,过一年半载就不太喜欢了,久而久之发现留在衣柜不过时的,总是那些注重质感和剪裁的衣服。而宏福樘所做的则是,当流行退去时,依然被喜欢的家。 公司集团旗下不仅拥有【宏福樘设计】(成都/贵阳店),还同时运营【诺福澜软装】【屿筑设计事务所】两个独立品牌。以健全的产品服务架构,提供体系化的全案设计、软装设计、装修施工、主材/软装代购室内装修服务。
    设计说明 | Design Instruction
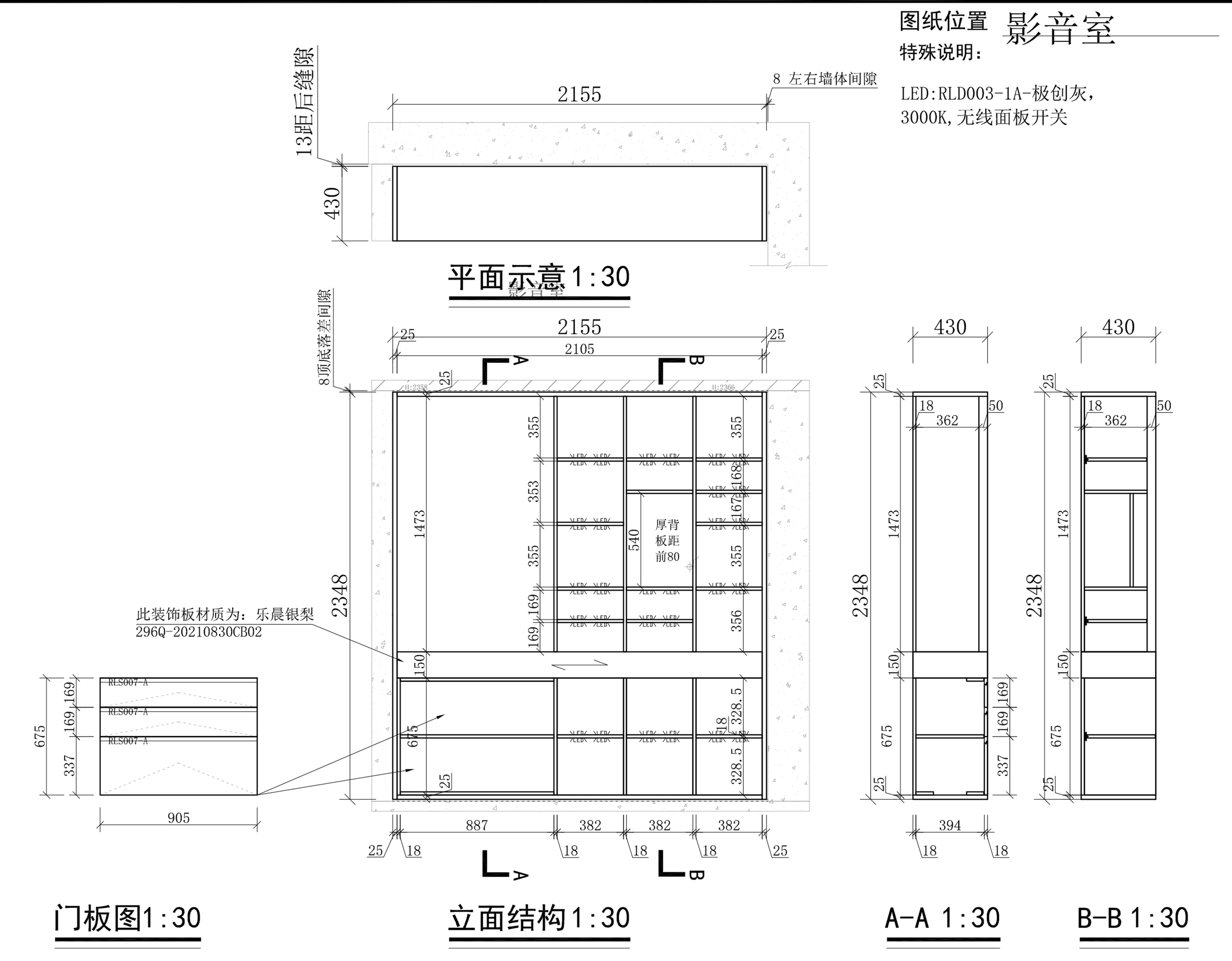
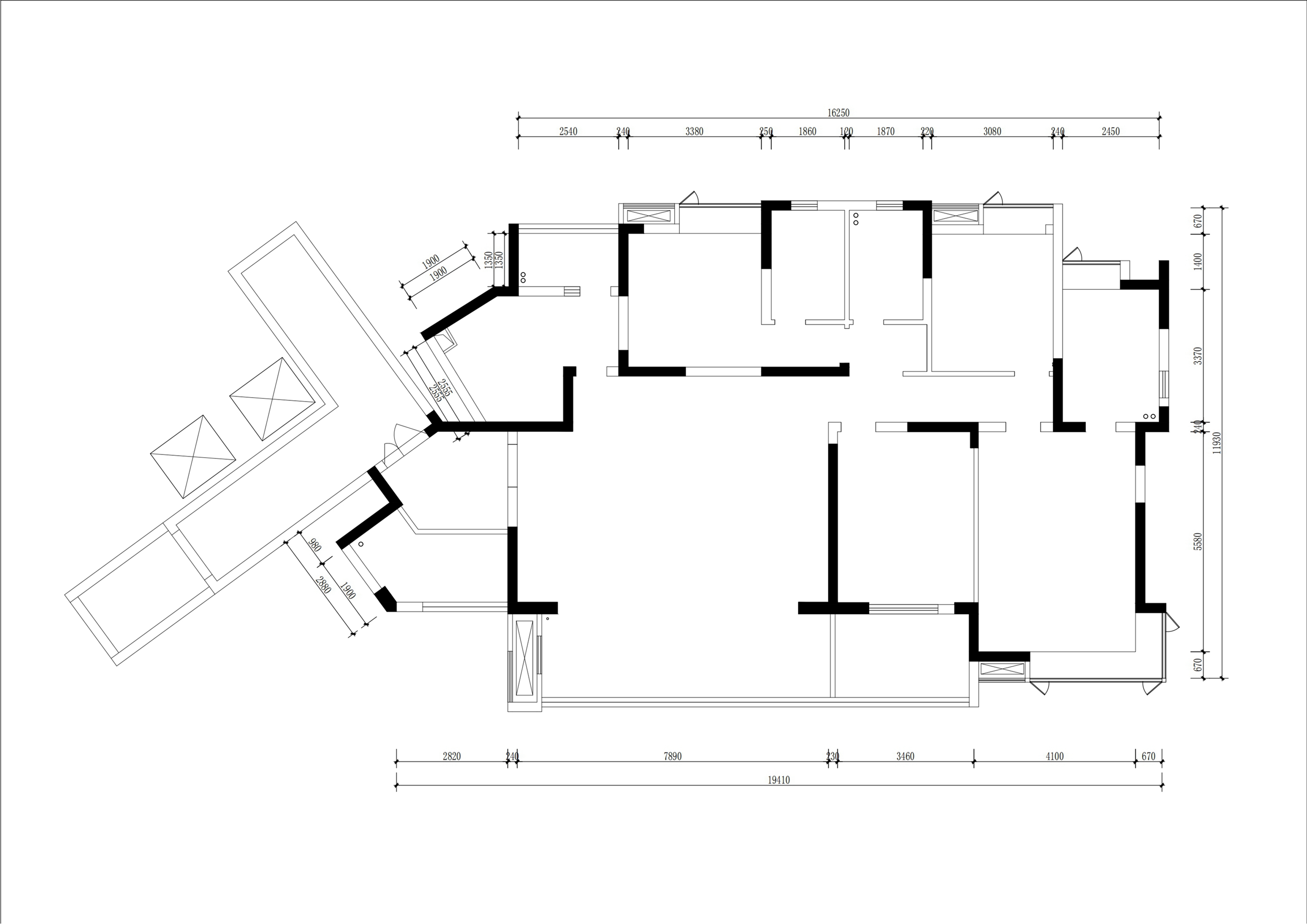
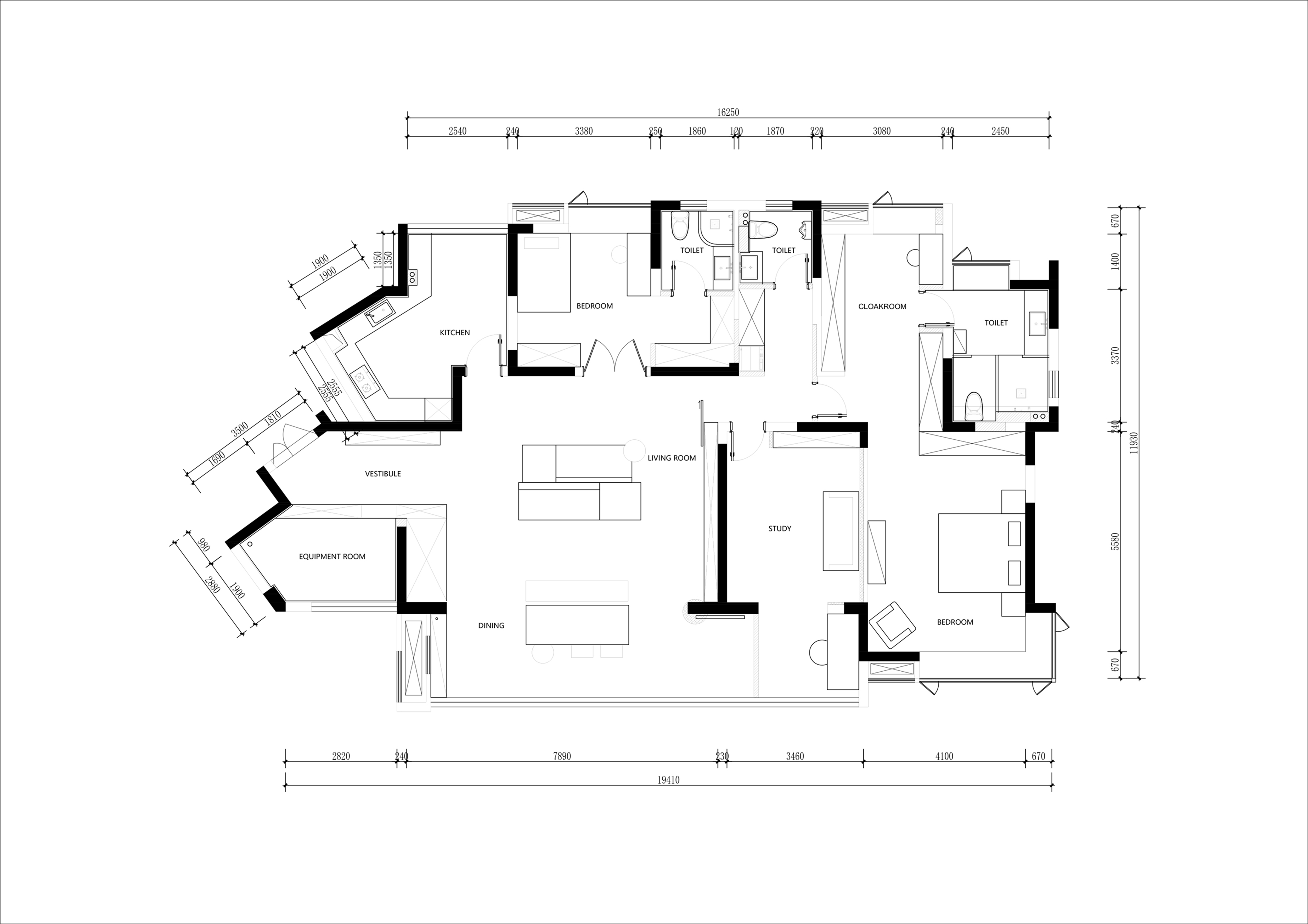
  • 该案是一套224㎡的大平层,就目前而言为男屋主一人居住。从事IT行业的他对事业与生活的规划非常理性,喜欢高效的处理事物、享受科技带来的便利,同时主张Less is more的极简状态、在能力范围内选择最“适合”自己的物品少(量)且精(致),由此衍生出他对新家的期待:围绕自我感受为中心配置全套智能设备更加现代化且兼具建筑美学的极简空间。 由此,我们从以下5个方面做了整体设计规划: 1.配置全套智能设备,全屋灯光可调控色温、明暗;无论是空调地暖新风洗衣机烘干机冰箱电视机甚至窗帘都接入了智能系统,可一键设置符合他个人的生活模式 2.拆除重组空间切分公共与私密区,同时结合当下及未来可能存在的生活状态提前规划动线,在空间做一定留白,既能满足当下一个人居住,同时也能应对未来两三个人状态 3.材质贴合自然以温润的木质、肌理天然的岩板呈现低调内敛的生活状态 4.软装倡导质感、舒适、能满足多人使用的实用主义挑选能力范围内top级单品具有极强的Less is more的消费观念 5.精神层面的愉悦感&生活美学 - 以开启房门为界设计“独立门厅”、由小到大由由约束至放松的缓冲过渡手法正是借鉴了贝聿铭设计日本美秀美术馆隧道时灵感来自“桃花源”的意境和想象。不仅糅合了中国的传统文化,同时将原本不可动的设备“藏”于其中实现“功能形式结合”的单体建筑缩影形态。 原户型问题: ➊ 玄关封闭,采光较差 ➋ 布局相对合理,但房间琐碎,限制了功能格局的发挥空间 ➌ 原主卧面积较小,无法满足屋主集睡眠、独立衣帽间、四分离卫生间的诉求 改造思路: ➊ 拆掉玄关隔墙,重新组合规整为更方正的入户门厅 ➋ 将客厅观景阳台一分为二,扩大影音室的使用面积提升使用舒适度 ➌ 缩小带衣帽间卧室面积,改原衣帽间为卫生间、原卫生间为公区客卫,更改门洞位置做成双开门,暂定为健身房为未来新增成员留白 ➍将洗衣房设置于主卧外,合理利用每一寸空间 ➎将相邻两间房并为一间大套房,同时满足睡眠区、衣帽间、四分离卫生间功能,并且以与电视柜同材质隐形门区隔公区与卧室私密空间 拆除重组空间切分公共与私密区,同时结合当下及未来可能存在的生活状态提前规划动线,在空间做一定留白,既能满足当下一个人居住,同时也能应对未来两三个人状态
  • 图片
  • 图片
  • 图片
  • 图片
  • 图片
  • 图片
  • 图片
  • 图片
  • 图片
  • 图片
  • 图片
  • 图片
  • 图片
  • 图片
  • 图片
  • 图片
  • 图片
  • 图片
  • 图片
  • 图片
  • 图片
  • 图片
  • 图片
  • 图片
  • 图片
  • 图片
  • 图片
  • 图片
  • 图片
  • 图片
  • 上一个 下一个
    《金腾奖优秀作品年鉴》 私宅丨地产丨餐饮丨酒店丨办公丨商业丨公共丨产品丨公益丨人气 jintengAWARD(小金_金腾奖组委会) 广州市海珠区琶洲大道68号华新中心21楼
    金腾奖视频号 金腾奖小红书号 监制:闫虹
    统筹:吴佳佳
    运营:朱倩仪 王赫萱 张芷莹 胡岚恩 小金
    新媒体:王贝贝 严洁 侯乐 鹅姐
    经纪:刘译遥 石征 曹凯月
    技术:张桐 黄天佑
    最终解释权归金腾奖主办方所有