NEW LIFE
作品详情
  • Details of the work 标题横线
    头像或者logo
    图片 王小见 设计引力特约推荐
    城市:成都
    公司: 成都不造设计
    参赛作品: 新生
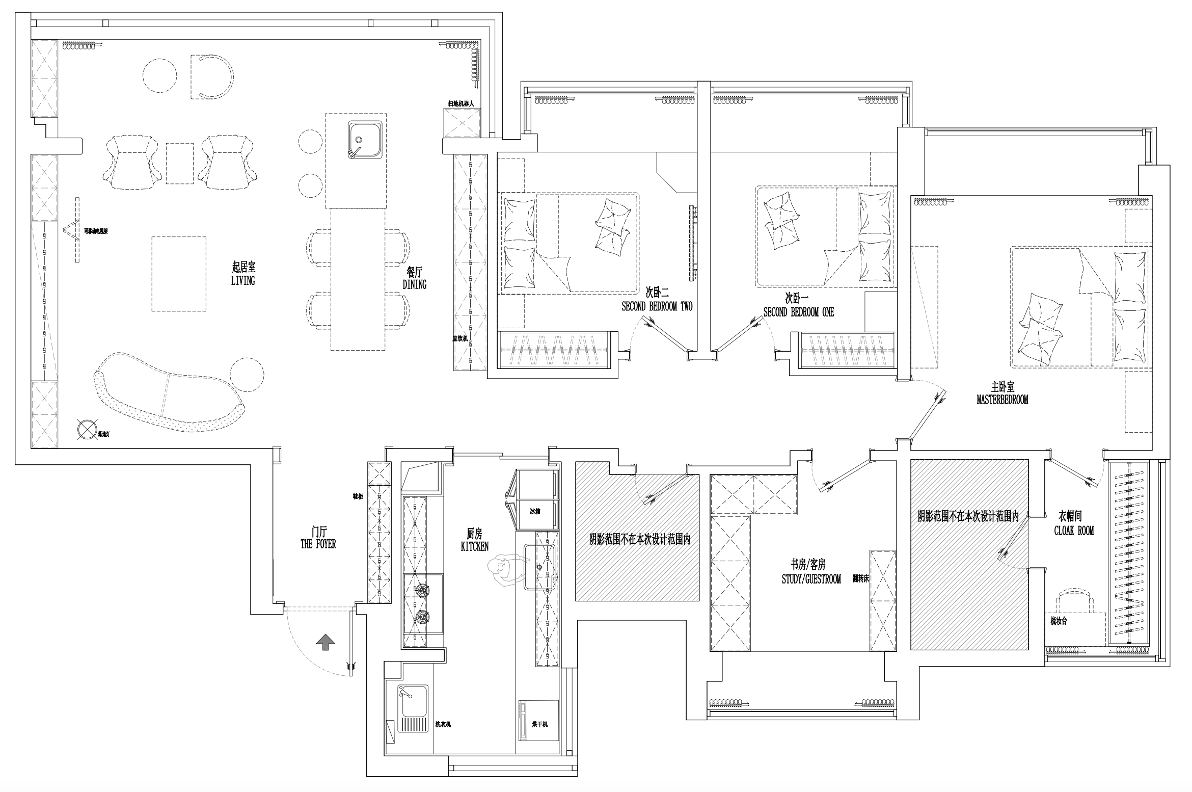
    空间类型:公寓(150㎡以下)
    个人/公司简介:
    王小见设计师,成都不造设计主理人。设计作品简洁优雅与实用性并存,游刃有余地把控空间布局和色彩节奏,擅长把各种风格元素结合,定制化设计,让家真正满足屋主需求且符合屋主审美。
    设计说明 | Design Instruction
  • 位于成都市的精装房,在不改变原始大格局的基础上,通过硬装改造和软装搭配,实现从千篇一律的精装房到简约优雅的现代轻法式的蜕变。 拆除原始精装墙面和顶面粗糙多余的造型,改为更加简洁的花线,增加空间层高,既有现代风格的简约,同时也拥有法式风格线条美感。 软装上依循自由随性的布局,客厅去电视墙化,自由围合出交流互动的空间;天然石材的运用散发出不受限的自然纹理之美;局部的色彩点缀表达了屋主对生活的态度。
  • 图片
  • 图片
  • 图片
  • 图片
  • 图片
  • 图片
  • 图片
  • 图片
  • 图片
  • 图片
  • 图片
  • 图片
  • 图片
  • 图片
  • 图片
  • 图片
  • 图片
  • 图片
  • 图片
  • 上一个 下一个
    《金腾奖优秀作品年鉴》 私宅丨地产丨餐饮丨酒店丨办公丨商业丨公共丨产品丨公益丨人气 jintengAWARD(小金_金腾奖组委会) 广州市海珠区琶洲大道68号华新中心21楼
    金腾奖视频号 金腾奖小红书号 监制:闫虹
    统筹:吴佳佳
    运营:朱倩仪 王赫萱 张芷莹 胡岚恩 小金
    新媒体:王贝贝 严洁 侯乐 鹅姐
    经纪:刘译遥 石征 曹凯月
    技术:张桐 黄天佑
    最终解释权归金腾奖主办方所有