The natural boundaries of art
作品详情
  • Details of the work 标题横线
    头像或者logo
    图片 陈王思 橙设传媒特约推荐
    城市:温州
    公司: 温 州 杦 拾 设 计 有 限 公 司
    参赛作品: 艺术的自然边界
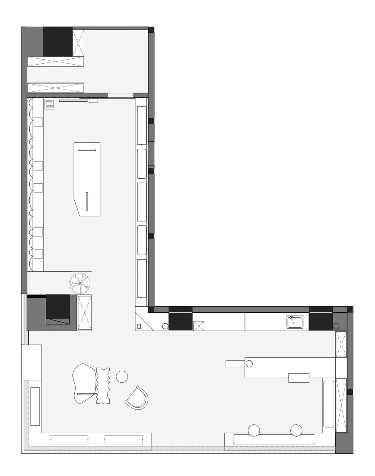
    空间类型:办公
    个人/公司简介:
    陈 王 思 温 州 杦 拾 设 计 有 限 公 司 创 始 人 /设 计 总 监 中 国 美 术 学 院 建 筑 学 院 环 境 艺 术 系 2021 G+AWARDS 城 市 TOP10 2021 设 计 头 条 年 鉴 榜 TOP100 2021 金 外 滩 优 秀 商 业 空 间 2020 中 国 设 计 星 36 强 2020 金 外 滩 优 秀 餐 饮 空 间 2019 意 大 利 A’ Design Award 银 奖 Silver 2019 筑 巢 奖 金 奖 提 名 2019 40UNDER40 设 计 杰 出 青 年 2018 APIDA 香 港 亚 太 室 内 设 计 大 奖 Winner 2018 Golden Pin Design Award 台 湾 金 点 设 计 奖 2018/2019 SIDA 新 加 坡 室 内 设 计 奖 铜 奖 Bronze 2018 TIDA 台 北 设 计 奖 公 共 空 间 设 计 类 评 审 团 推 荐 奖 2018 CIID 第 21 届 中 国 室 内 设 计 大 奖 赛 新 秀 奖 2018 金 堂 奖 年 度 优 秀 办 公 空 间 第 九 届 国 际 空 间 设 计 大 奖 艾 特 奖 杭 州 赛 区 办 公 空 间 设 计 金 奖
    设计说明 | Design Instruction
  • 打破,再重组。以解构的思考方式重新定义空间,以山脉河流为意向表达,不将视野拘泥于产品本身,打破传统边界,弱化边缘,形成自由流动的空间体验。 从品牌调性中,延伸出对欧洲与艺术旅行的憧憬和共鸣,将旅途中的山与水融于空间的意象表达,陈列不再是空间的全部,而是更倾向于打造一个适于分享与休憩的空间。 金属层叠的序列性陈列架围合出空间形态,演变而来形成落座,半透隐约的亚克力板托起金属层叠的落座区。提取艺术雕塑的几何线性,探究空间形态上的自然构成,艺术的是体积物质,也是空间形态。 线条铿锵有力,如山脉波折,带来无限拉伸的张力,空间不做打断,各处之间相互流通延伸,仿佛风起云涌,将丰沛的力场藏于平静的外观之下,光与线条相互配合,彼此架构而生,富有生机与活力。 踏入后方陈列区的入口,打造洞穴般的框架体验,与门头山脉连绵的空间形态形成呼应,鲜亮的色彩作为点缀,在微水泥带来的素色背景下,更显张扬。 陈列与空间的关系,是相互成就的。围合形式的陈列架起到划分空间的作用,中间的装置艺术展示看似是空间的“主”,而实际上仍是在为陈列服务,空间的主次关系,在不断的互换中,寻求一个最终的平衡点,形成和谐的统一。 空间的后方区域,用作为更私密纯粹的陈列,通过营造的天井光将空间变得通透澄亮,洒落在中间半透明的亚克力岛台上,形成轻盈柔和的雾面。
  • 图片
  • 图片
  • 图片
  • 图片
  • 图片
  • 图片
  • 图片
  • 图片
  • 图片
  • 图片
  • 图片
  • 图片
  • 图片
  • 图片
  • 图片
  • 图片
  • 图片
  • 图片
  • 图片
  • 图片
  • 图片
  • 图片
  • 图片
  • 图片
  • 图片
  • 图片
  • 图片
  • 图片
  • 图片
  • 图片
  • 图片
  • 图片
  • 图片
  • 图片
  • 图片
  • 图片
  • 图片
  • 图片
  • 图片
  • 图片
  • 图片
  • 图片
  • 图片
  • 图片
  • 图片
  • 图片
  • 图片
  • 图片
  • 图片
  • 图片
  • 图片
  • 图片
  • 图片
  • 图片
  • 图片
  • 图片
  • 图片
  • 图片
  • 上一个 下一个
    《金腾奖优秀作品年鉴》 私宅丨地产丨餐饮丨酒店丨办公丨商业丨公共丨产品丨公益丨人气 jintengAWARD(小金_金腾奖组委会) 广州市海珠区琶洲大道68号华新中心21楼
    金腾奖视频号 金腾奖小红书号 监制:闫虹
    统筹:吴佳佳
    运营:朱倩仪 王赫萱 张芷莹 胡岚恩 小金
    新媒体:王贝贝 严洁 侯乐 鹅姐
    经纪:刘译遥 石征 曹凯月
    技术:张桐 黄天佑
    最终解释权归金腾奖主办方所有