soft breeze
作品详情
  • Details of the work 标题横线
    头像或者logo
    图片 上海玖柞设计 设计引力特约推荐
    城市:上海
    公司:上海玖柞设计
    参赛作品: 和风
    空间类型:公寓(150㎡以下)
    个人/公司简介:
    上海玖柞制作设计工作室于2019年创立,是一家擅长多种简约风格的设计机构,团队设计师从业经验均为8年以上。作品多元,跨足家具产品设计、室内设计、品牌规划设计等不同领域,力求生活状态与设计艺术的完美结合。 获奖荣誉 上海电视台家装节目《最家计划》2期嘉宾设计师 东方卫视家装节目《梦想·改造家》签约设计师 荣登全球十大家居类杂志 《家居廊2019.1月》 荣登全球十大家居类杂志 《家居廊2020.6月》 2022国际一国际色彩空间设计奖一优秀奖 2022上海一40UNDER40一中国「上海」设计杰出青年 2022上海一第十二届国际空间设计大奖一艾特奖 2022中国一金案奖—全国优胜奖 2022上海一设计周年度一省际榜一新锐设计奖 2022上海一设计周年度一全国榜一设计有思想设计大奖 2022上海一金住奖一中国「上海」十大居住空间设计师 2022中国一Ariston Design Award 国际室内设计大赛一中国赛区180强 2022中国一PChouse Award私宅设计大奖一年度TOP100设计师 2021国际一色彩空间设计奖一优秀奖 2021亚洲一软装风尚大奖一优胜奖 2021中国一好好住营造家一年度最佳小户型设计奖 2021中国—第二十四届中国设计大奖赛—优秀奖 2021中国—家装百强设计品牌—百强设计机构 2020国际一WAD世界青年设计师大会-杰出设计师 2020国际—艾鼎国际设计—杰出设计师 2020上海—40UNDER40—中国「上海」设计杰出青年 2020上海—蝴蝶奖—创意生活设计奖(平层公寓) 2020中国—红棉中国设计奖 2019中国—第十二届大金内装设计大赛—生活艺术奖铜奖
    设计说明 | Design Instruction
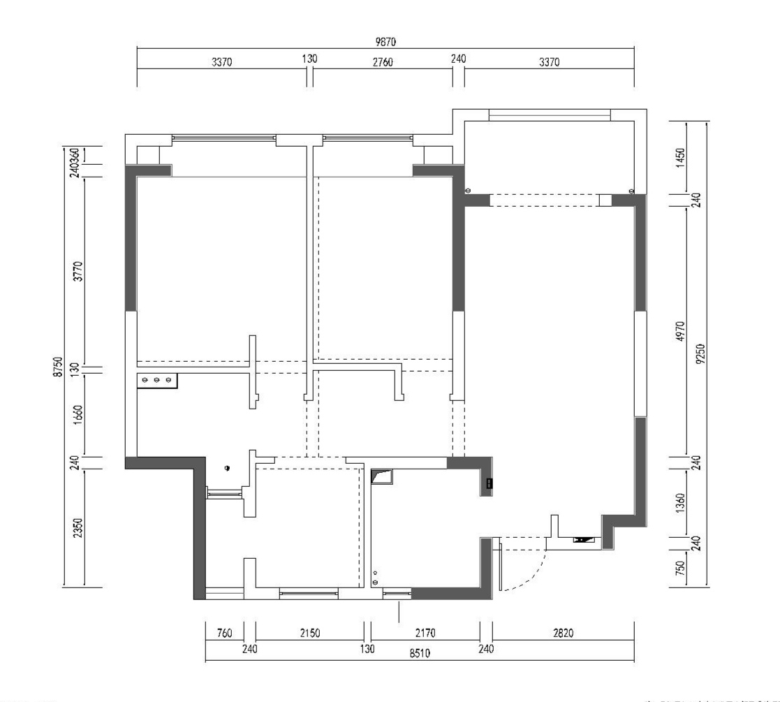
  • 《和风》空间巧扩容,用光和木探索自然景象中的诗意美学 闲看庭前花开花落,漫随天外云卷云舒。忙时各自奔波,闲时相伴而坐,聊聊生活的琐事,玩玩旅游的纪念品,谈的是人生,过的是生活。过简单的生活,享舒适的人生。 推门进来,你会发现原来右手边的墙体被拆掉做成了一个鞋柜,中间做了开放格的设计,一入家门尽显方便;现代侘寂风的装修风格,给人以恬淡安静的感觉,也可以让家显得闲静优雅,展现出轻盈而素美的空间,让年轻的小两口能真切感受到充满生机的家。 常言道,无收纳不成家。为满足功能性需求,解收纳之忧,助夫妻二人享受“诗与远方”。在原设计的基础上,利用过道的空间做了厨房和客餐厅的回形动线设计,把墙体拿掉后同时也利用过道做了背靠背的储物柜,上面层板的空间可以存放咖啡机和旅游带回来的纪念品,背面可以囤放厨房干货。同时与过道旁边的冰箱柜拉成一条水平线,使室内视角更加流畅舒适。去掉北房间墙体,利用过道的空间扩大了衣帽间的储物。书房、卫生间都设计了大量的收纳柜,满足现在和未来的储物需求。电视柜背景墙做了转角玻璃,使得书房和客餐厅之间有了互动性;电视柜木纹的材质把电视机柜走廊和餐边柜做了一体化的贯通设计,虚虚实实的设计手法构建出整个空间的联动性。极大程度上满足了一家人有来有往的互动交流,也实现了超大收纳空间的需求,以后新增家庭成员也无需为收纳空间不足而烦恼。 改造前户型缺陷: 1.进门归家后缺乏必要的收纳空间,置物不便。 2.厨房空间逼仄压抑,不能满足屋主的烹饪需求。 3.空间整体划分上稍显凌乱,功能性不明显。 4.卫生间干湿一体,空间利用不合理。 改造后设计亮点: 1. 进门右手处墙体拆除,增设鞋柜,并做了局部开放格,满足归家置物需求。 2. 厨房隔墙局部拆除,依托承重墙和过道空间,构筑回形动线,串联起客餐厅和厨房。 3.原始北房间墙体拆除,利用形成的过道,增加衣帽间空间。 4. 书房转角墙面以玻璃代替砖墙,增加书房与公区的互动性。 5. 卫生间干湿分离,利用原卫生间管道设计台盆柜,旁边空间一半设计镜柜,一半做纸巾收纳区。
  • 图片
  • 图片
  • 图片
  • 图片
  • 图片
  • 图片
  • 图片
  • 图片
  • 图片
  • 图片
  • 图片
  • 图片
  • 图片
  • 图片
  • 图片
  • 图片
  • 图片
  • 图片
  • 图片
  • 图片
  • 图片
  • 图片
  • 图片
  • 图片
  • 图片
  • 上一个 下一个
    《金腾奖优秀作品年鉴》 私宅丨地产丨餐饮丨酒店丨办公丨商业丨公共丨产品丨公益丨人气 jintengAWARD(小金_金腾奖组委会) 广州市海珠区琶洲大道68号华新中心21楼
    金腾奖视频号 金腾奖小红书号 监制:闫虹
    统筹:吴佳佳
    运营:朱倩仪 王赫萱 张芷莹 胡岚恩 小金
    新媒体:王贝贝 严洁 侯乐 鹅姐
    经纪:刘译遥 石征 曹凯月
    技术:张桐 黄天佑
    最终解释权归金腾奖主办方所有