Under one roof
作品详情
  • Details of the work 标题横线
    头像或者logo
    图片 史鹏巍天马设计 设计引力特约推荐
    城市:上海
    公司:史鹏巍天马设计
    参赛作品: 三代同堂的聚与避
    空间类型:公寓(150㎡以下)
    个人/公司简介:
    史鹏巍天马设计,一家小而美的私宅设计工作室,“快乐装修”的倡导者和实践者。 我们提供包括设计、施工、材料、软装、安装、空气治理、预算控制、第三方管理等拎包入住的整体解决方案,承诺相伴到底。 从每一个家庭的具体需求出发、善待每一个家庭的生活方式、实现每一个家庭的生活愿景,这些坚持都在更好地让我们守住“坚持有温度的设计”这一初心。 为实现设计效果落地、全面把控施工品质,我们建立自有施工部门,并制定标准化服务规范、管理全套施工流程,杜绝发包/分包,坚持签订闭口合同,为业主提供省心的高品质专属施工服务。 我们坚持,做有温度的设计,做有温度的施工,让家更有温度,让业主体会快乐装修。 快乐,是我们的核心竞争力。
    设计说明 | Design Instruction
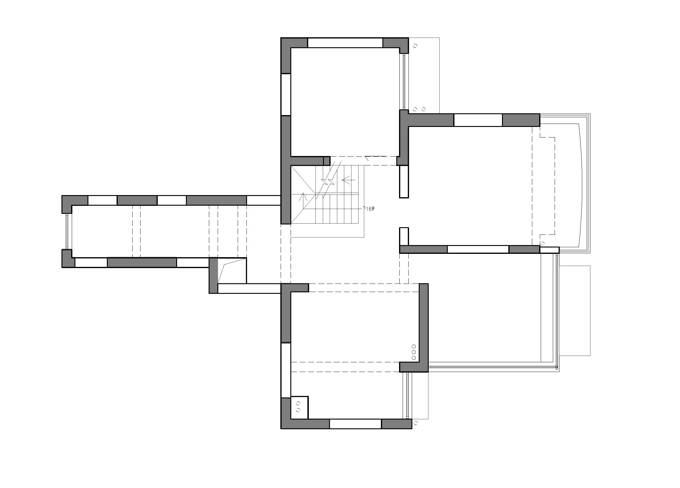
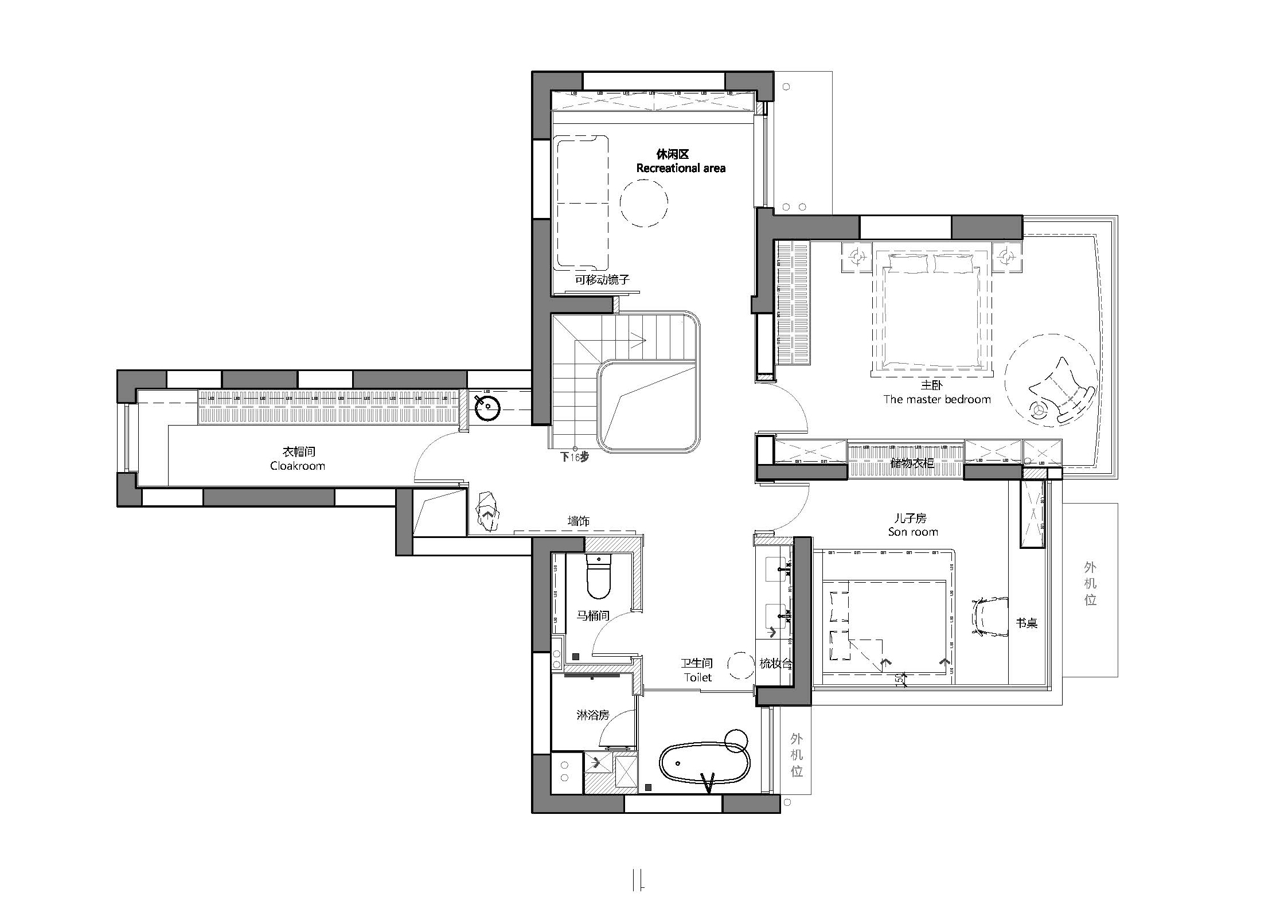
  • 我们相信,空间会影响家庭的关系。一家五口人的生活里,总有欢乐相聚的时候,家庭休闲活动空间必不可少。但三代人生活在一起,希望分开睡的奶奶和爷爷,正在青春期的儿子,需要在家办公的夫妻……难免会有摩擦。所以,除了相聚,家里有自己独立的空间,也十分重要。在这个206m²的案子里,要让三代人都在享受相聚之后安然独处,要让有不同爱好的六个人都能自得其乐,总是需要考虑得再多些。私宅设计,不光是设计空间结构,更多的是设计家人间的生活方式和相互关系。
  • 图片
  • 图片
  • 图片
  • 图片
  • 图片
  • 图片
  • 图片
  • 图片
  • 图片
  • 图片
  • 图片
  • 图片
  • 图片
  • 图片
  • 图片
  • 上一个 下一个
    《金腾奖优秀作品年鉴》 私宅丨地产丨餐饮丨酒店丨办公丨商业丨公共丨产品丨公益丨人气 jintengAWARD(小金_金腾奖组委会) 广州市海珠区琶洲大道68号华新中心21楼
    金腾奖视频号 金腾奖小红书号 监制:闫虹
    统筹:吴佳佳
    运营:朱倩仪 王赫萱 张芷莹 胡岚恩 小金
    新媒体:王贝贝 严洁 侯乐 鹅姐
    经纪:刘译遥 石征 曹凯月
    技术:张桐 黄天佑
    最终解释权归金腾奖主办方所有