Order
作品详情
  • Details of the work 标题横线
    头像或者logo
    图片 刘宇
    城市:长沙
    公司: 长沙有间装饰设计有限公司
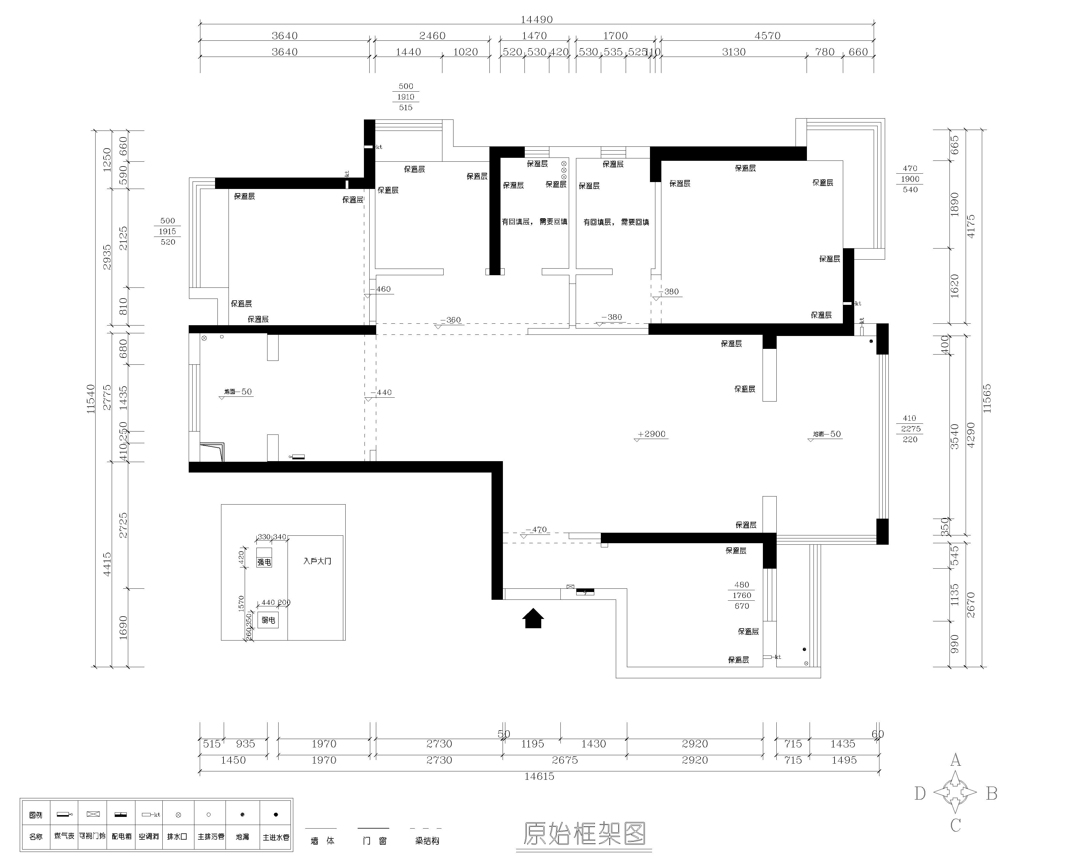
    参赛作品: 序
    空间类型:公寓(150㎡以下)
    个人/公司简介:
    个人简介:2008年-2010年株洲点石家装任设计师一职 2010年-2011年株洲大宅家之尊任首席设计师 2011-2013年株洲天勤装饰设计公司任首席设计师 2014年成立有间设计至今。2021年加入HIID设计协会会员 勇于迎接新的挑战...有较强的适应能力和团结合作的精神。对人对事认真诚恳,有较强的手绘能力,扎实的理论基础和实践经验。
    设计说明 | Design Instruction
  • 相由心生·境由心转·空间亦是如此。 最好的生活,是物质富足、精神丰盈、灵魂自由。 丰子恺曾说过一句话 “人生可以看作三层楼 一层是物质生活 层是精神生活 三层是灵魂生活 人生三层楼,三重境界、由低到高、逐步靠近心灵 人生如此、空间亦是如此 “相由心生·境由心转” 所你所想、念你所念。 本案整体空间流露出雅致的质感和摩登现代的审美体验,灰咖色的主调让屋内更显沉稳,以木饰面+石材为主,不需要浮夸的设计,简单地突显材料本身的质感就非常高级了。 留白能够营造平和感,能够创造视觉焦点。避免使用多种颜色混搭以及避免使用强烈对比的颜色,复杂华丽的颜色,反对繁琐的花纹色彩的搭配。在色彩上追求平和、舒缓、内敛之感。 选择白色及灰色作为墙壁和地砖的主要色调,并透过落地窗引入充足的自然光线和视野。这种宽敞、自然的空间布局使得整个房间看起来更加明亮、通透。 采用三联动玻璃门规划了半开放式厨房,在兼具美观的基础上解决了中厨油烟问题,客餐厅阳光采用通铺大砖无门槛石,地面的延展性被无限放大,自然光线透过落地窗完美过渡空间的明暗度,客餐厅整体空间视觉更显大。 金色潘多拉为空间增添了一抹色彩,展现出极简主义下的写意美感。删繁就简,远离一切浮华和不实用,从生活的本质出发,以极简的设计演绎出最本质的轻奢美学 空间延伸、便是你心灵的延续……
  • 图片
  • 图片
  • 图片
  • 图片
  • 图片
  • 图片
  • 图片
  • 图片
  • 图片
  • 图片
  • 图片
  • 上一个 下一个
    《金腾奖优秀作品年鉴》 私宅丨地产丨餐饮丨酒店丨办公丨商业丨公共丨产品丨公益丨人气 jintengAWARD(小金_金腾奖组委会) 广州市海珠区琶洲大道68号华新中心21楼
    金腾奖视频号 金腾奖小红书号 监制:闫虹
    统筹:吴佳佳
    运营:朱倩仪 王赫萱 张芷莹 胡岚恩 小金
    新媒体:王贝贝 严洁 侯乐 鹅姐
    经纪:刘译遥 石征 曹凯月
    技术:张桐 黄天佑
    最终解释权归金腾奖主办方所有