Shaoxing clothing fabric exhibition hall
作品详情
  • Details of the work 标题横线
    头像或者logo
    图片 林希敢 橙设传媒特约推荐
    城市:绍兴
    公司: L D Y D E S I G N | 赤 成 国 际
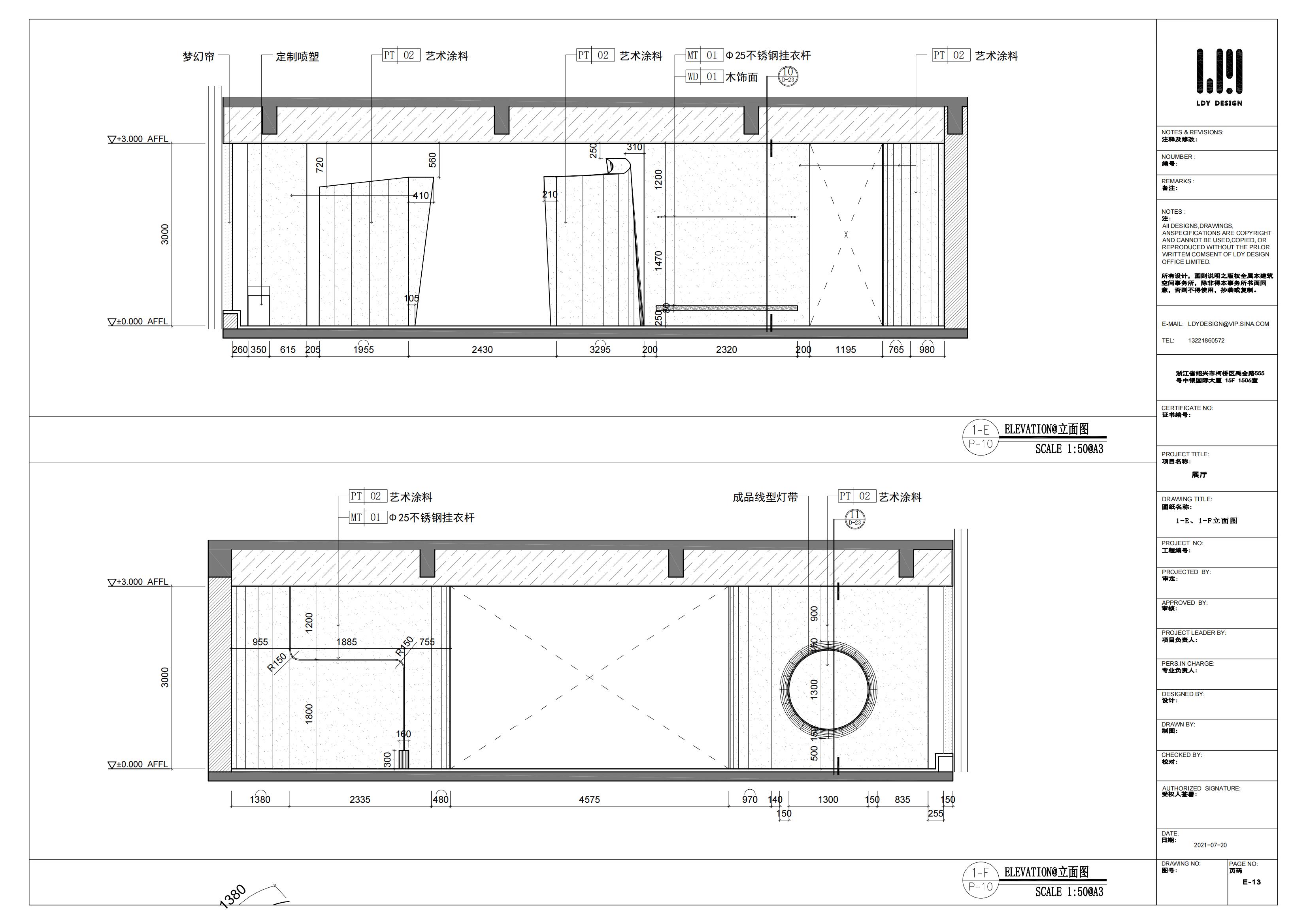
    参赛作品: 绍兴服装面料展厅
    空间类型:办公
    个人/公司简介:
    L D Y D E S I G N | 赤 成 国 际 创 始 人 / 设 计 总 监 荣 誉 奖 项 A P R A W A R D S 2 0 2 0 国 际 室 内 设 计 大 奖 法 国 双 面 神 国 际 创 新 设 计 大 奖 澳 门 金 蓮 花 盃 国 际 设 计 办 公 空 间 银 奖 / 铜 奖 亚 太 空 间 设 计 大 赛 十 大 办 公 空 间 设 计 师 艾 鼎 奖 国 际 设 计 大 奖 华 鼎 奖 十 大 原 创 办 公 空 间 设 计 大 奖 艾 特 奖 国 际 设 计 大 奖 国 际 大 学 空 间 设 计 大 赛 特 邀 专 业 设 计 导 师 D e s i g n F o c u s 空 间 设 计 年 度 十 大 杰 出 设 计 师 2 0 1 5 年 度 杰 出 设 计 师 称 号 ( 中 装 协 ) 绍 兴 市 室 内 设 计 师 协 会 副 会 长 作 品 入 选 《 中 国 国 际 室 内 设 计 年 鉴 》
    设计说明 | Design Instruction
  • 本案是一家服装面料展厅,我们试图用空间的语言呈现面料造型多变之感,可轻薄似纱,也可挺括利落,既有柔软的线条感,又能赋予空间张力的变化。而如何处理空间、展陈与人物的关系,是本次设计的重点。 有计划地将进入的走道做小,在抵达中心区域之前,压低视觉中心,提示新区域的存在,形成与内里宽阔流畅的反差,产生强烈的力量感。 弧形的线条为张力的空间带来趣味感,而缺失的洞口,形成空间与空间之间的渗透延伸,同时营造窥探的乐趣。 在通过逼仄的入口之后,转而视野豁然开朗,以围合形式构建空间的主要场域——仪式区。人入其中,进而成为主角,而合围的立面体块是最好的观众,彼时已分不清主次,人与空间,成为互相欣赏的载体。 线条与几何形状在空间中交织影响,带来空间自由流动的变化。我们将空间中与结构结合的非承重隔墙打开,将简单纯粹的几何形体穿插与结构框架之中,用解构的手法重筑空间魅力。 将空间大量留空,为未来的使用留下更多未知的变化。大面积吸纳来自户外的光线,光穿过不同的几何形态,留下不同形状的影。空间大面积采用哑光的微水泥材质、矿物质材料的艺术漆,以及泛光源的软膜……形成柔和温润的空间质感。 空间最末处,是本案的第四进空间,与仪式区形成呼应,半围合的形态与中心半圆形的结构,带来空间前后的感知。 以建筑的手法做室内空间的设计,大胆地使用不同的几何形态搭建空间基底,在色彩的使用上则非常克制,主诉材质的肌理质感与线条的利落流畅,寻求光影变化,与空气的自然流通之感。 空间是情绪的传达介质,我们希望通过此间案例,让身处其中的人,感受到自由、舒适与无束缚,这同时也是服装面料所希望带给人的感觉。将空间、人与物三者形成感官上的连通,便能实现品牌及其产品的传播价值。
  • 图片
  • 图片
  • 图片
  • 图片
  • 图片
  • 图片
  • 图片
  • 图片
  • 图片
  • 图片
  • 图片
  • 图片
  • 图片
  • 图片
  • 图片
  • 图片
  • 图片
  • 图片
  • 图片
  • 图片
  • 图片
  • 图片
  • 图片
  • 图片
  • 图片
  • 图片
  • 图片
  • 图片
  • 图片
  • 图片
  • 图片
  • 图片
  • 图片
  • 图片
  • 图片
  • 图片
  • 图片
  • 图片
  • 图片
  • 图片
  • 图片
  • 上一个 下一个
    《金腾奖优秀作品年鉴》 私宅丨地产丨餐饮丨酒店丨办公丨商业丨公共丨产品丨公益丨人气 jintengAWARD(小金_金腾奖组委会) 广州市海珠区琶洲大道68号华新中心21楼
    金腾奖视频号 金腾奖小红书号 监制:闫虹
    统筹:吴佳佳
    运营:朱倩仪 王赫萱 张芷莹 胡岚恩 小金
    新媒体:王贝贝 严洁 侯乐 鹅姐
    经纪:刘译遥 石征 曹凯月
    技术:张桐 黄天佑
    最终解释权归金腾奖主办方所有