花青蓝PH11
作品详情
  • Details of the work 标题横线
    头像或者logo
    图片 吴媛媛 云上设计师俱乐部特约推荐
    城市:南京
    公司: 拙木空间设计
    参赛作品: 花青蓝PH11
    空间类型:办公
    个人/公司简介:
    擅长以女性视角挖掘空间层次,通过富有表情的设计手法演绎空间的纯粹性, 相信好的设计能够兼顾理性与情感的共鸣。   曾获奖项 2017金堂奖-优秀休闲娱乐空间 2018 艾特奖-南京赛区餐厅空间设计铜奖 2019 晶麒麟-陈设中国空间陈设美学优秀奖 2019 40UNDER40中国(南京)设计杰出青年 南京拙木空间设计是一家小型设计事务所,我们试图以人物活动为出发去思考空间的边界。不断探索人的感性张角和空间的生动性
    设计说明 | Design Instruction
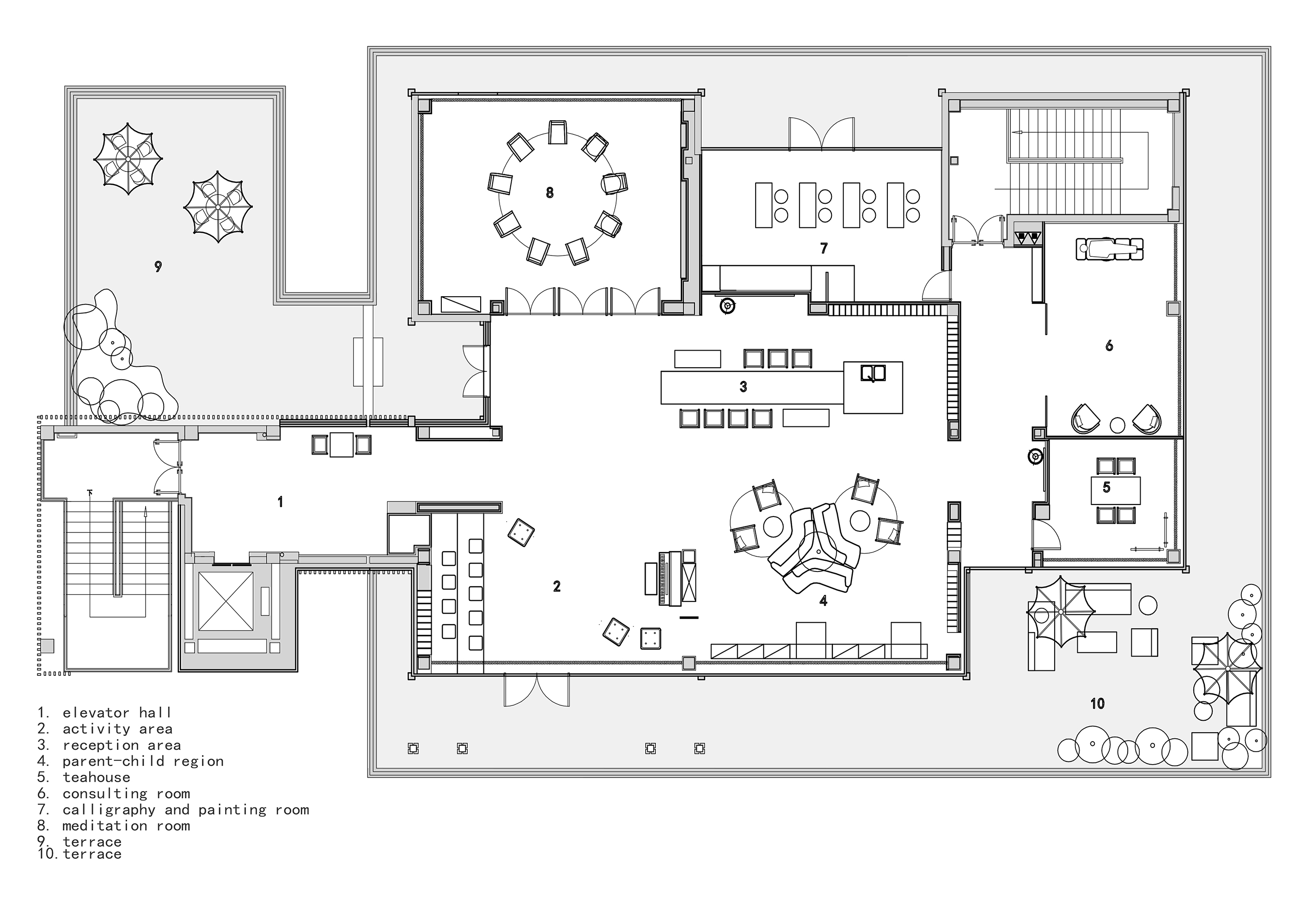
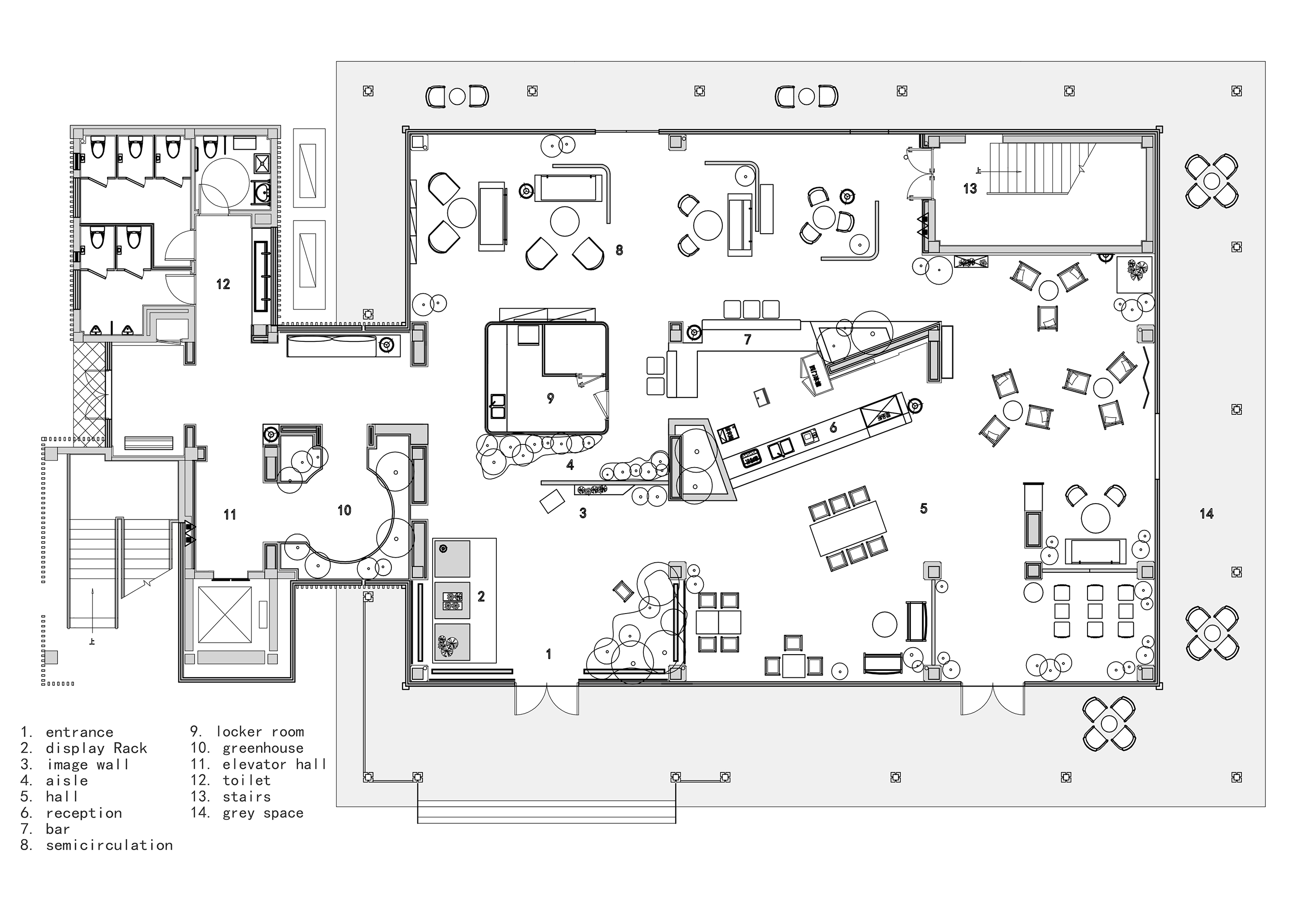
  • 花青蓝:生活的平衡者/南京拙木空间设计 花青蓝是一家创建于社区,集合了咖啡零售以及社群活动的复合型咖啡馆。品牌基因强调对生活平衡的理解,以亲和性和多样性的空间语汇为用户打造独具归属意义的精神之所。 入口处设立一面景窗,视线在此停留。同时窗的开启为视线尽头的南侧洽谈区制造模糊意向,引导顾客入内探个究竟。以场景堆叠的方式传递放松的社区“客厅”氛围,因为对品牌来说,生活方式的倡导是其对社区的情感注入。除了持续践行社区友好互动,我们也希望花青蓝能带给更多人有关有趣、诗性、文艺的生活体验。 咖啡操作区居于一层最中心的区域,以近七米的直线斜切出中心区域的不规则空间。这是咖啡社交属性的自由之线,即便是超大体量的餐桌在这条斜线上都透露着随性的气质。临窗以不同围合方式的座椅组合满足多样社交需求。 定制屏风以不同形式划分区域,过滤视线形成叙事。 南侧为相对私密的多人区域,我们以“L”型木质半透屏风在不同角度做了区隔,以半开放半私密的形式强化社交体验感和场所关联性。 公共区域以红砖肌理为背景,置入绿植,营造出极具生命力的能量场。 二楼公共区域从南到北依次划分为社群活动、休憩交流和亲子阅读。以中心的环形放射布局组织动线,将不同的功能并置其中,彼此既独立又在局部相连。配色成为空间在张力及氛围上的表达。 除此以外,二楼还集合了影音、瑜伽、冥想等多功能的独立空间。是多样社区生活的灵活补充。
  • 图片
  • 图片
  • 图片
  • 图片
  • 图片
  • 图片
  • 图片
  • 图片
  • 图片
  • 图片
  • 图片
  • 图片
  • 图片
  • 图片
  • 图片
  • 图片
  • 图片
  • 图片
  • 图片
  • 图片
  • 图片
  • 图片
  • 图片
  • 图片
  • 图片
  • 图片
  • 图片
  • 图片
  • 图片
  • 图片
  • 图片
  • 图片
  • 图片
  • 图片
  • 图片
  • 图片
  • 上一个 下一个
    《金腾奖优秀作品年鉴》 私宅丨地产丨餐饮丨酒店丨办公丨商业丨公共丨产品丨公益丨人气 jintengAWARD(小金_金腾奖组委会) 广州市海珠区琶洲大道68号华新中心21楼
    金腾奖视频号 金腾奖小红书号 监制:闫虹
    统筹:吴佳佳
    运营:朱倩仪 王赫萱 张芷莹 胡岚恩 小金
    新媒体:王贝贝 严洁 侯乐 鹅姐
    经纪:刘译遥 石征 曹凯月
    技术:张桐 黄天佑
    最终解释权归金腾奖主办方所有