Latitude 26°  Space promenade
作品详情
  • Details of the work 标题横线
    头像或者logo
    图片 吴媛媛 云上设计师俱乐部特约推荐
    城市:南京
    公司: 拙木空间设计
    参赛作品: Latitude 26°空间散步
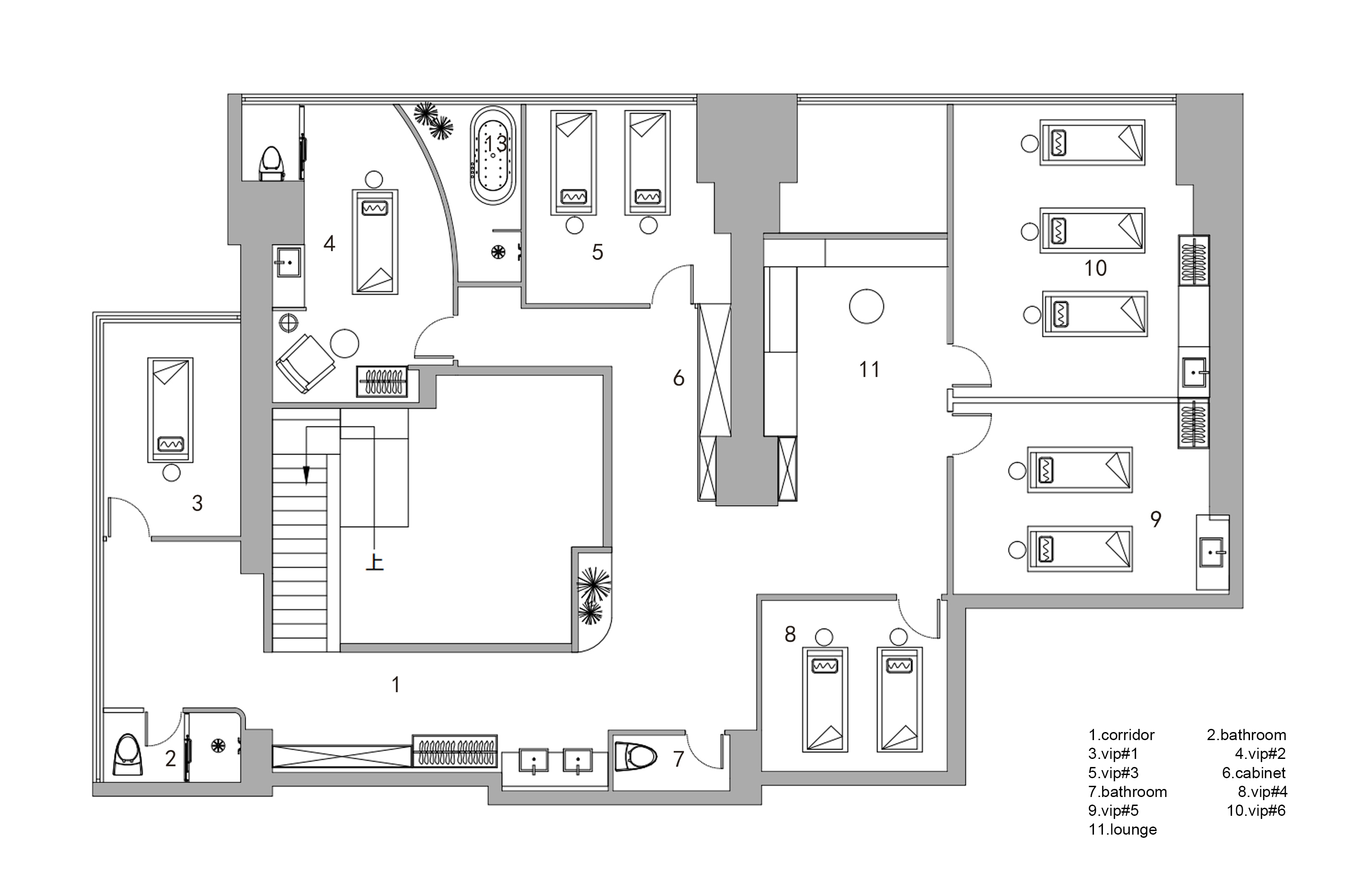
    空间类型:办公
    个人/公司简介:
    擅长以女性视角挖掘空间层次,通过富有表情的设计手法演绎空间的纯粹性, 相信好的设计能够兼顾理性与情感的共鸣。   曾获奖项 2017金堂奖-优秀休闲娱乐空间 2018 艾特奖-南京赛区餐厅空间设计铜奖 2019 晶麒麟-陈设中国空间陈设美学优秀奖 2019 40UNDER40中国(南京)设计杰出青年 南京拙木空间设计是一家小型设计事务所,我们试图以人物活动为出发去思考空间的边界。不断探索人的感性张角和空间的生动性
    设计说明 | Design Instruction
  • Latitude 26°空间散步/南京拙木空间设计 Latitude 26°是一家以前沿科技与功能性护肤相结合的美容机构。秉承“智”、“创”、“医”、“科”的品牌理念,多元化的满足当代女性的护肤新需求。在这里,设计的底层逻辑在于如何以多样性的情境安排引导品牌与需求者的更多互动。 散步: 在萨伏伊别墅中,柯布西耶以坡道作为竖向交通,引导参观者分层迭进的切换体验视角。“建筑散步”正是由这位现代主义建筑先驱首次提出的空间设计概念。 我们由此出发,将整个空间中的交通枢纽落在了以楼梯为连接中心的空间群。他们包含了一楼的楼梯体块、休息区以及二楼完整的走道和公共空间。 空间散步追求的是空间的流动性。提供移动观察的可能性,空间序列随着观察者在建筑中的移动层层递进、徐徐展开,空间易趣也由此产生。 力量: 开放的空间可以为场所注入更多的精神力量,我们将框架体系和支撑体系糅合于要素表达中,形成空间的自由性和开放性。而以楼梯为连接中心的挑空体块又将向四周扩张的空间能量向内收回,使空间具有整体性。 角部的支撑立柱以木质包裹,并顺势围合成折线屏风,将梳妆区安置于后,半隐半隔。 边界: 除了楼梯处的大体量挑高空间的设置,我们在北面的公共区也保留了一处小尺度的采光井。一楼敞开式会客和二楼休息区的共享此处的自然采光。阳光自上方挥洒而下,阴影游走,静谧而有穿透力。 光造就了世界,但也说光或许并不重要,而在于它使房间之间有了关系而重要。静默凝视,光的包裹使房间的边界变得模糊。 庭园: 于扶手转折处围合一处微缩庭园,置入石组和苔藓。并借由此自然意趣,将野性之美室内化。因为我们深知自然界中蕴含着能够影响人类生命的能量。
  • 图片
  • 图片
  • 图片
  • 图片
  • 图片
  • 图片
  • 图片
  • 图片
  • 图片
  • 图片
  • 图片
  • 图片
  • 图片
  • 图片
  • 图片
  • 图片
  • 图片
  • 图片
  • 图片
  • 图片
  • 图片
  • 图片
  • 图片
  • 图片
  • 图片
  • 图片
  • 图片
  • 图片
  • 图片
  • 图片
  • 图片
  • 图片
  • 图片
  • 图片
  • 图片
  • 图片
  • 图片
  • 上一个 下一个
    《金腾奖优秀作品年鉴》 私宅丨地产丨餐饮丨酒店丨办公丨商业丨公共丨产品丨公益丨人气 jintengAWARD(小金_金腾奖组委会) 广州市海珠区琶洲大道68号华新中心21楼
    金腾奖视频号 金腾奖小红书号 监制:闫虹
    统筹:吴佳佳
    运营:朱倩仪 王赫萱 张芷莹 胡岚恩 小金
    新媒体:王贝贝 严洁 侯乐 鹅姐
    经纪:刘译遥 石征 曹凯月
    技术:张桐 黄天佑
    最终解释权归金腾奖主办方所有