Return to the original intention
作品详情
  • Details of the work 标题横线
    头像或者logo
    图片 唐敏智
    城市:西安
    公司: 纳悦空间设计
    参赛作品: 归心
    空间类型:公寓(150㎡以下)
    个人/公司简介:
    对于探索和改善人与空间环境的关系充满热情,专注于每一次空间可能性的探索。秉承少即是多的现代主义理念,在设计之路上一直坚持思考、实践、和创新,并致力于为客户打造独一无二的作品。
    设计说明 | Design Instruction
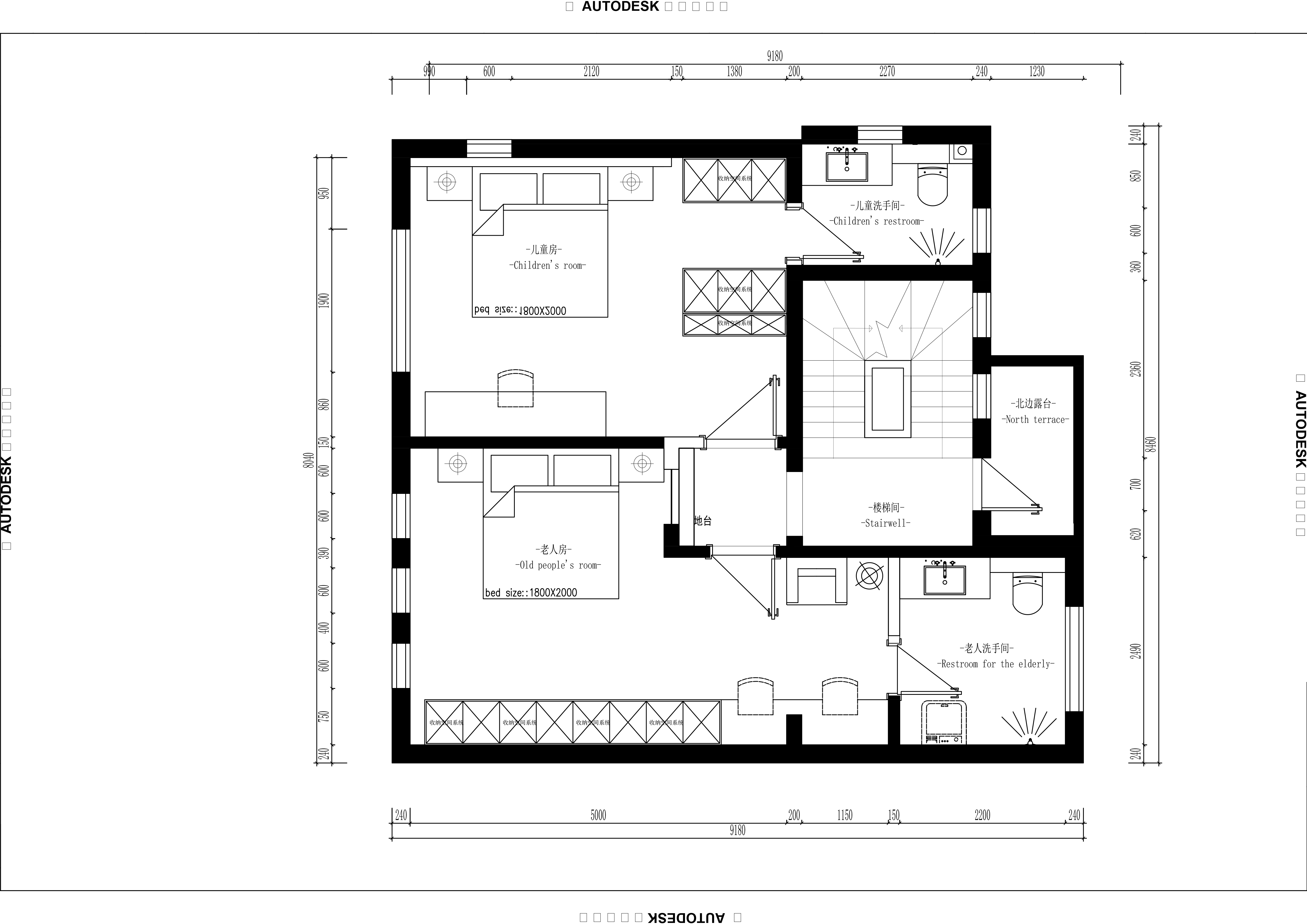
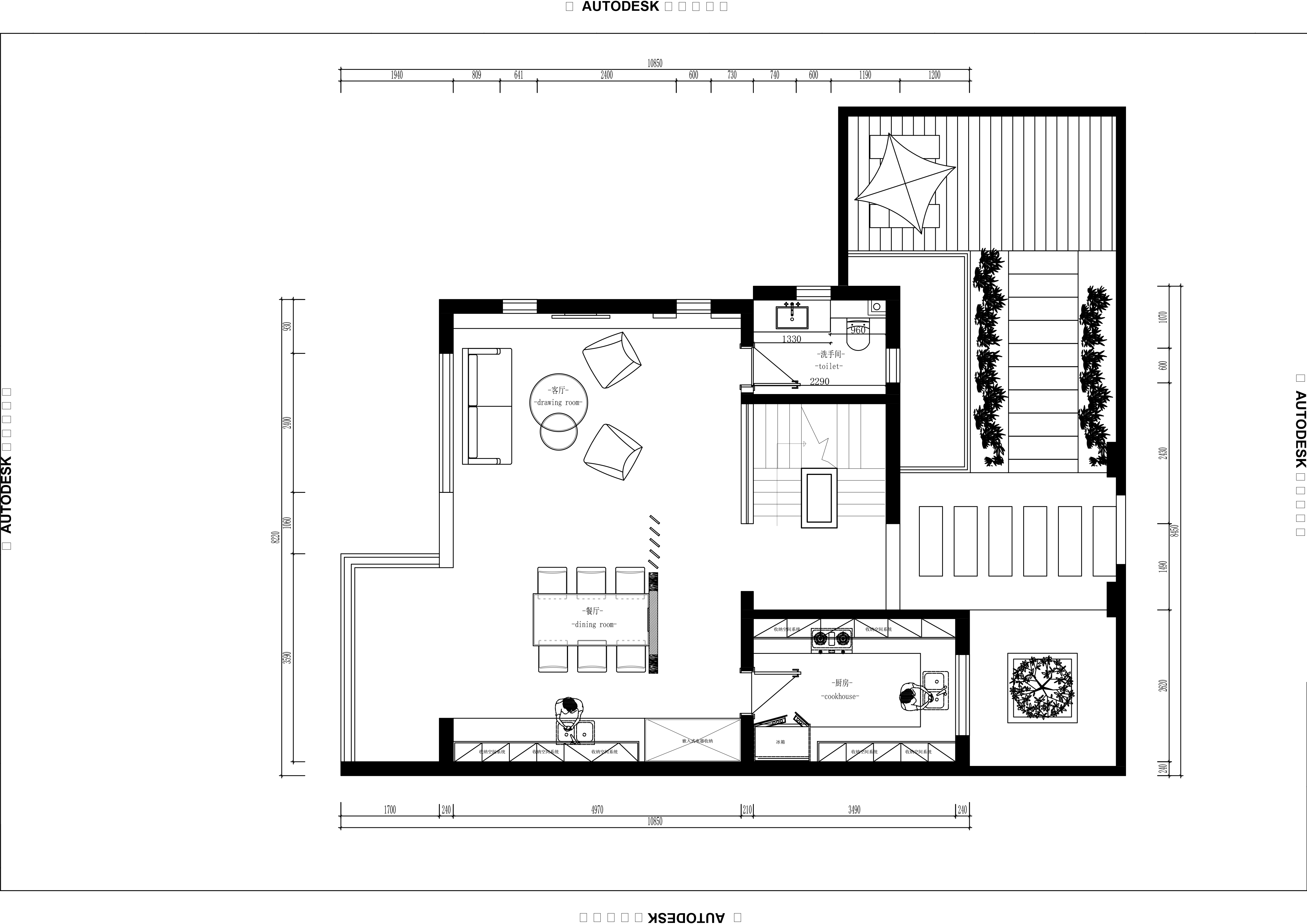
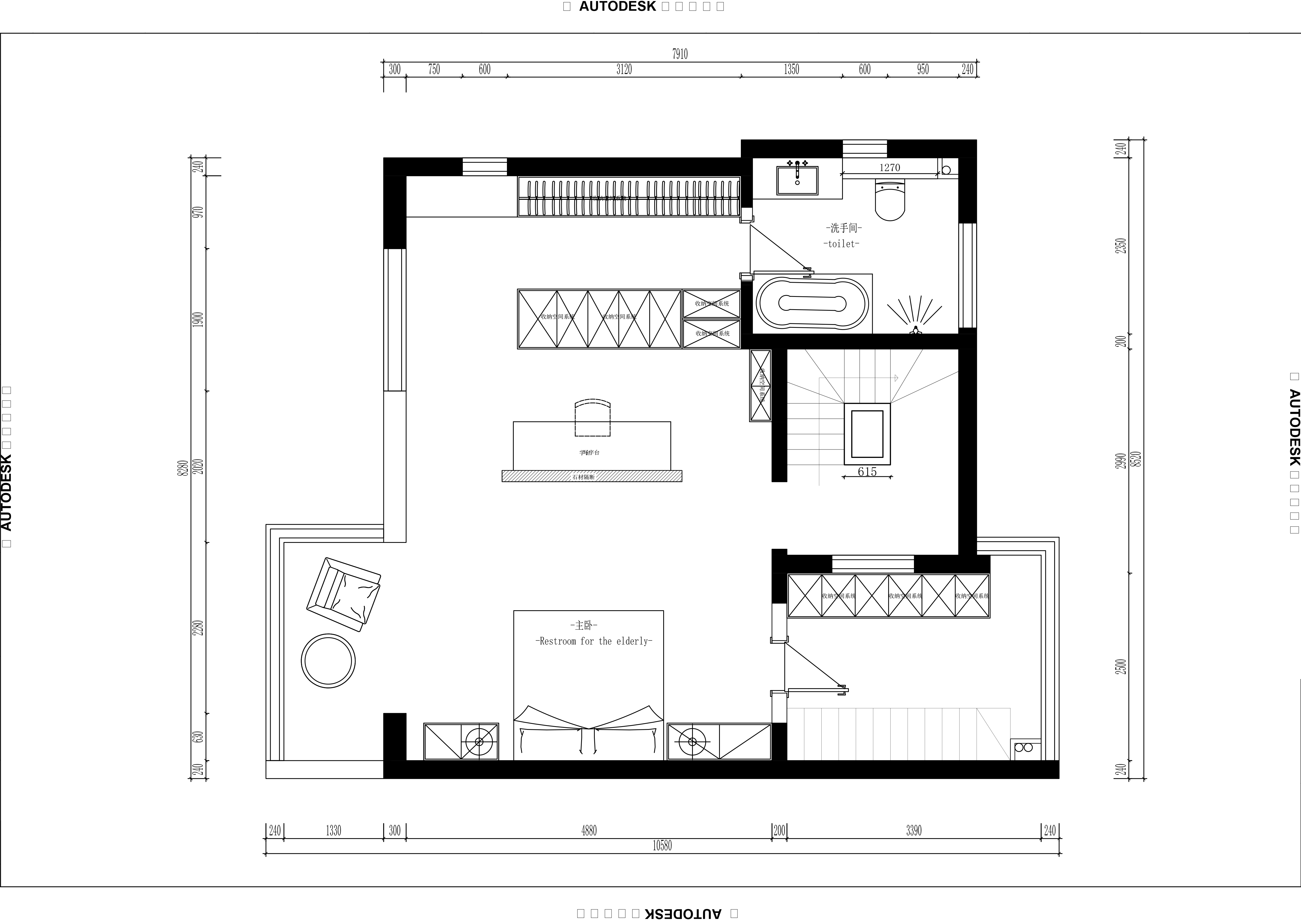
  • 此项目为联排别墅,上下共四层。空间的原始结构四层均为开间设计,主要的起居生活空间均朝南向,拥有很好的采光,所以结构上并没有做过多的空间分割,而是尽量保持原始结构的通透性来进行优化。本案在平面规划上更多的是解决不同功能区域在同一空间中的融合与独立。 一层客厅是家中最重要的待客区域,以中轴线上的电视隔断短墙划分开客区和茶区,将空间自然分解成自由环绕式的两个空间。客厅的南侧是庭院,开启窗帘后便可以欣赏到日式的造景,庭院的绿意也被带入到整个空间。茶区黑色的环境处理让空间的焦点自然的移出窗外,黑川雅之设计的茶案搭配野口勇的和纸灯让品茶的同时也能感受到时间的细微变化,营造出敏感和沉思式的体验,将茶区打造为静谧的避世之所。 二层是休闲区及就餐区,整体色调的搭配上选择了与一层截然不同的处理,自然的绿色搭配杏黄色的布艺沙发让人在休息时感到更加放松,罗斯科的抽象画与黑色吊扇为此空间增添了视觉的生机和流动性,东侧的就餐区是开放的餐厨空间,餐桌正对着休闲露台,用餐之后便可在宽敞的露台享受阳光和眼下触手可及的日式庭院。 三层是客卧及男孩房,客卧原始的北侧入口改造成引入光线的固定窗,原始入口被调整到东侧,这样不仅能优化卧室的空间功能及私密性,同时也将卧室南侧开窗的光线带到了北侧的楼梯间。床头柜上方的两幅杉本博司的海平面挂画为卧室增添了静谧的氛围,宁静纯粹的画面也让时间慢了下来。 四层是主人的卧室空间,空间分布上选择了与一层类似的处理,电视隔断墙将空间的分割依然保证了足够自由动线,同时也满足了现代卧室所需要的丰富功能和私密性。主卧的卫生间被隐藏到两组衣帽柜之间的通道。蜜棕色的木质和棉麻背景与深色家具陈设品的映衬下,让身体的能量得到深度的释放。 本案整体设计侧重理性的择取禅意,用当下生活方式的语言呈现出素雅并富有生机的东方美学。
  • 图片
  • 图片
  • 图片
  • 图片
  • 图片
  • 图片
  • 图片
  • 图片
  • 图片
  • 图片
  • 图片
  • 图片
  • 图片
  • 图片
  • 图片
  • 图片
  • 图片
  • 图片
  • 图片
  • 图片
  • 图片
  • 图片
  • 图片
  • 图片
  • 图片
  • 图片
  • 图片
  • 图片
  • 图片
  • 图片
  • 上一个 下一个
    《金腾奖优秀作品年鉴》 私宅丨地产丨餐饮丨酒店丨办公丨商业丨公共丨产品丨公益丨人气 jintengAWARD(小金_金腾奖组委会) 广州市海珠区琶洲大道68号华新中心21楼
    金腾奖视频号 金腾奖小红书号 监制:闫虹
    统筹:吴佳佳
    运营:朱倩仪 王赫萱 张芷莹 胡岚恩 小金
    新媒体:王贝贝 严洁 侯乐 鹅姐
    经纪:刘译遥 石征 曹凯月
    技术:张桐 黄天佑
    最终解释权归金腾奖主办方所有