简·不凡
作品详情
  • Details of the work 标题横线
    头像或者logo
    图片 金志坚
    城市:无锡
    公司: 拾贰月空间设计
    参赛作品: 简·不凡
    空间类型:公寓(150㎡以下)
    个人/公司简介:
    设计理念:空间的丰富性产生多样的场景交流,使之提升人与人之间的空间感和幸福感。 工作年限:12年 国家注册高级室内设计师 CIID设计联盟会员 江南社设计联盟荣誉会员 2013年获太湖杯最佳户型改造奖 2013年获99设计联盟最佳新锐奖 2018年获无锡4040杰出设计师奖 2019年获无锡4040杰出设计师奖 2019年获全国类芒果奖(室内)二等奖 2020年获无锡4040杰出设计师奖 2020年获得金住奖-2020中国(无锡)十大居住空间设计师 2020年获得无锡WIID年度住宅空间设计奖 2020年获得红棉中国设计奖-室内设计奖 2021年获得无锡4040杰出设计师奖 2022网易城市设计精英上榜TOP50-无锡
    设计说明 | Design Instruction
  • 在现代与简约的空间中,黑白灰三色、木色作为调和色,整体没有过多繁复的装饰,但却时尚沉稳,内敛高级,为整个家居生活带来品质的慢生活。本案主打沉稳,神秘,庄重的魅力黑,大胆性感,大面积的黑色配合暖色灯带,化解了黑色的压迫感,用灯光来加以调节控制,那么暖光与黑色相互成就。
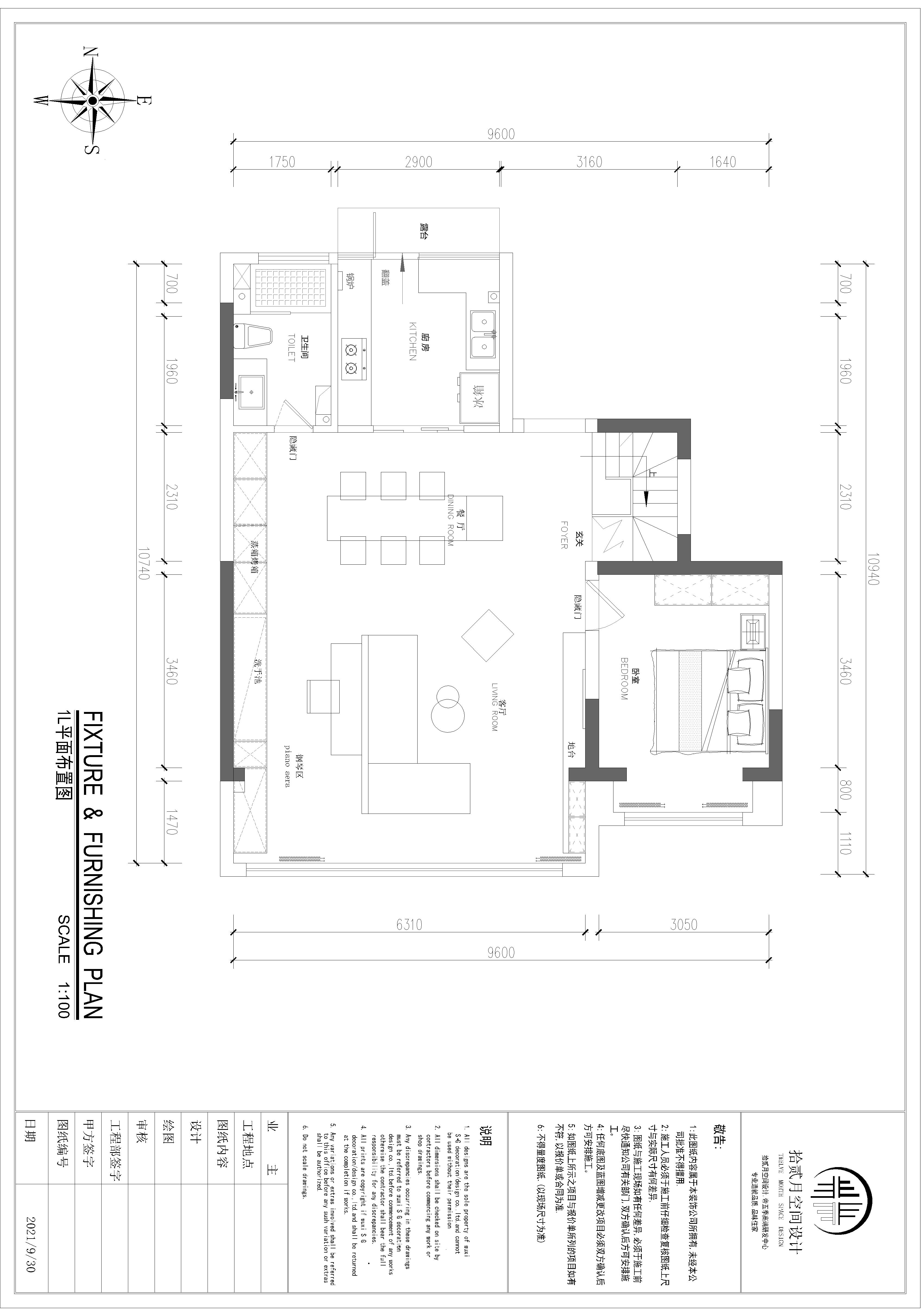
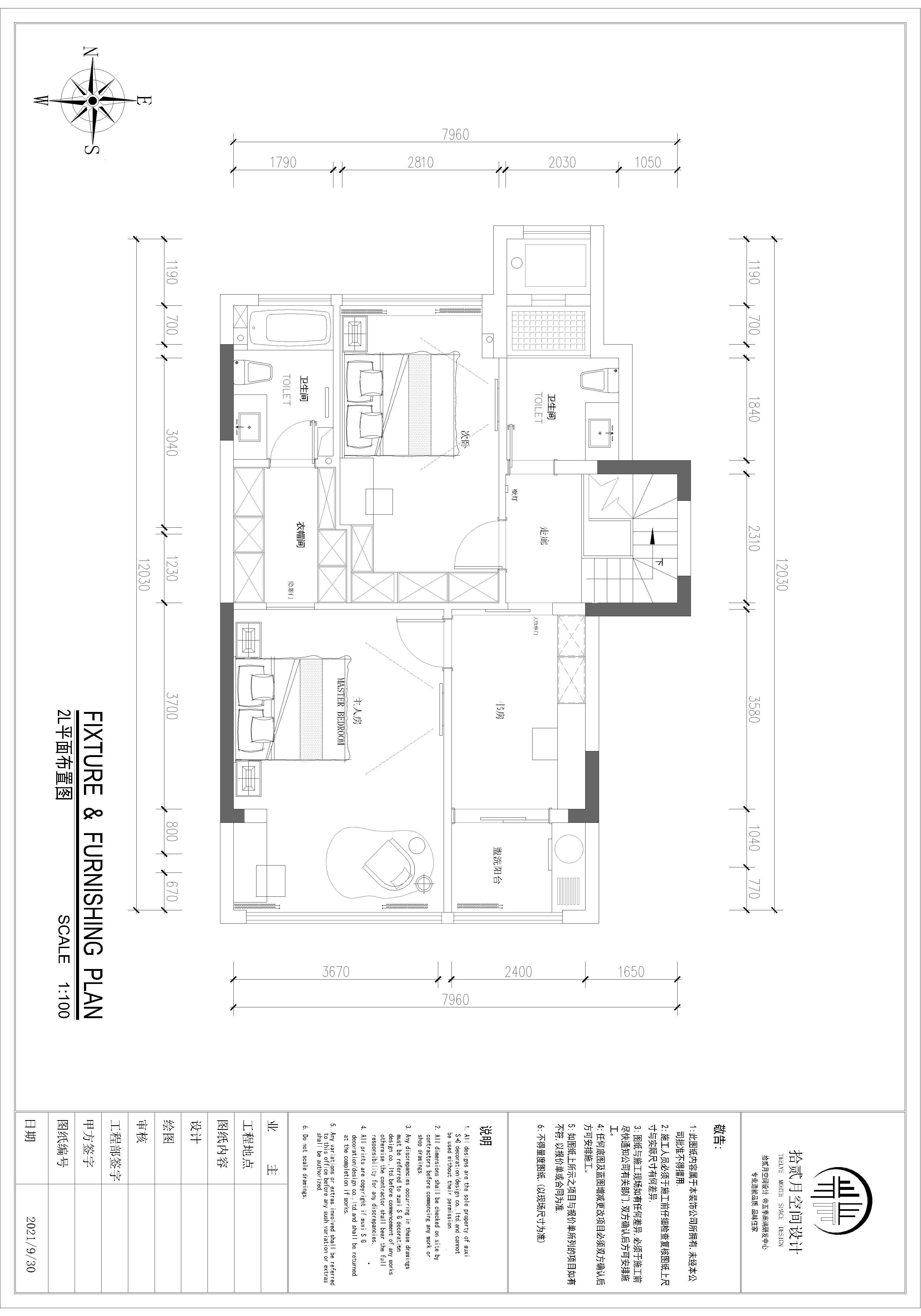
  • 图片
  • 图片
  • 图片
  • 图片
  • 图片
  • 图片
  • 图片
  • 图片
  • 图片
  • 图片
  • 图片
  • 图片
  • 图片
  • 图片
  • 图片
  • 图片
  • 图片
  • 图片
  • 图片
  • 图片
  • 图片
  • 图片
  • 上一个 下一个
    《金腾奖优秀作品年鉴》 私宅丨地产丨餐饮丨酒店丨办公丨商业丨公共丨产品丨公益丨人气 jintengAWARD(小金_金腾奖组委会) 广州市海珠区琶洲大道68号华新中心21楼
    金腾奖视频号 金腾奖小红书号 监制:闫虹
    统筹:吴佳佳
    运营:朱倩仪 王赫萱 张芷莹 胡岚恩 小金
    新媒体:王贝贝 严洁 侯乐 鹅姐
    经纪:刘译遥 石征 曹凯月
    技术:张桐 黄天佑
    最终解释权归金腾奖主办方所有