万科九都荟
作品详情
  • Details of the work 标题横线
    头像或者logo
    图片 熹维设计 云上设计师俱乐部特约推荐
    城市:南京
    公司: 熹维设计
    参赛作品: 万科九都荟
    空间类型:公寓(150㎡以下)
    个人/公司简介:
    熹维设计成立于2010年底,品牌成立后我们始终坚持以个性化的设计为核心,通过不断的积累和努力,逐步成为业内极具代表性的一家专业家装设计公司。由于在2010年之前已具备十余年专业施工管理经验,因此我们始终拥有自主的施工配套,并不断更新工艺,坚持和设计紧密结合的施工管理思路,使我们的设计落地更具保障。
    设计说明 | Design Instruction
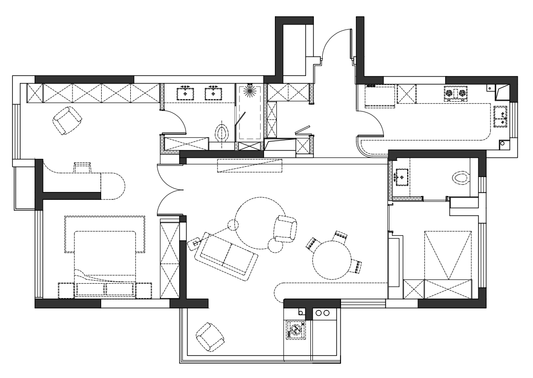
  • 本案为精装房改造项目,特殊点在于房屋完全拆除为毛坯重装,由于业主对房屋布局以及设计风格的要求极高,在双方的沟通过程中,设计师提出的很多想法与业主一拍即合,成就了这套复古味浓郁且设计感十足的作品。 平面方案根据屋主的需求以及个性化喜好进行改造,首先入户区域借用主卫的局部空间,打造步入式储藏间,解决鞋物的收纳困扰,为日常生活提供便捷;其次三室改两室,打通与主卧相邻的次卧,形成涵盖卧房、衣帽间、书房、卫生间的多功能套房空间,为屋主营造随意自在的二人居生活;客餐厅一体化设计,摆脱刻板的空间形式,氛围感满满。 公区波浪形吊顶是整个空间的亮点之一,独特的造型瞬间提升空间气质,营造非凡质感。开放式布局让整体空间更为开阔,动线设计充分考虑客餐厅各自独立又相互关联,构造出互动性强且舒适的空间场景。除此之外,大量的玻璃元素塑造业主追求的通透空间感受,无论是定制的长虹玻璃双开拱门,亦或是营造梦幻光影的纱帘,都彰显着精致生活的仪式感。 复古气质之余,本案所呈现的随意慵懒也是一大特色,餐厅卡座以及客厅的随性布局,处处体现自在疗愈的居家生活,慢读一本书,喝一杯咖啡,静静体会沉浸式的放松与享受。
  • 图片
  • 图片
  • 图片
  • 图片
  • 图片
  • 图片
  • 图片
  • 图片
  • 图片
  • 图片
  • 图片
  • 图片
  • 图片
  • 图片
  • 图片
  • 图片
  • 图片
  • 图片
  • 图片
  • 图片
  • 图片
  • 图片
  • 图片
  • 图片
  • 图片
  • 图片
  • 图片
  • 图片
  • 图片
  • 图片
  • 图片
  • 图片
  • 图片
  • 图片
  • 图片
  • 图片
  • 图片
  • 图片
  • 图片
  • 图片
  • 图片
  • 上一个 下一个
    《金腾奖优秀作品年鉴》 私宅丨地产丨餐饮丨酒店丨办公丨商业丨公共丨产品丨公益丨人气 jintengAWARD(小金_金腾奖组委会) 广州市海珠区琶洲大道68号华新中心21楼
    金腾奖视频号 金腾奖小红书号 监制:闫虹
    统筹:吴佳佳
    运营:朱倩仪 王赫萱 张芷莹 胡岚恩 小金
    新媒体:王贝贝 严洁 侯乐 鹅姐
    经纪:刘译遥 石征 曹凯月
    技术:张桐 黄天佑
    最终解释权归金腾奖主办方所有