索菲之家
作品详情
  • Details of the work 标题横线
    头像或者logo
    图片 余礼华 云上设计师俱乐部特约推荐
    城市:南京
    公司: 构设计
    参赛作品: 索菲之家
    空间类型:公寓(150㎡以下)
    个人/公司简介:
    姓名:余礼华 单位:构设计事务所 职务:设计总监 设计理念:对空间,色彩及生活方式有独到的见解。不刻意营造风格,不过分主张审美,住宅的一切尺度皆因人而异,为人而做。 主设项目:《没有主义》《索菲之家》 关于设计,我们肯定有自己的态度。但是它肯定不会凌驾于业主意志之上,我们会用专业把对设计的态度和甲方的需求完美结合。因为我们不想模仿别人,更不愿意重复自己,所以别人作品,我们自己的案例,可以拿来讨论,绝不复制。 关于风格,这是一个风格被过分潮流化的时代。很多时候我们想保持特立独行但往往成了潮流本身,潮流并不高级,以至于我们每隔一段时间就要换一个,潮流易逝,风格永存。我们更希望通过业主的生活习惯,审美情趣,功能需求去设计属于业主自己的风格。不刻意营造风格,不过分主张审美,空间的一切尺度皆因你而异,为你而做。 关于审美,怎么样的样子才是美的?美不美谁说了算?我们说的肯定不算,别人说的也不算,居住着的身体和心理说了才算,您眼睛看到的,心里感受到的美,才是美。可是不管是人眼的审美还是心理的审美又会随着时间产生变化,我们如何能保证您在这一秒看到的美还是下一秒看到的美呢?我们设计者只有与业主的审美轨道平行,找到审美共鸣,延长审美跨度和深度,这样才会让您以及未来的您都觉得结果是美的。 关于结果,必须在过程中寻找。没有一个与众不同设计能平淡无奇的实现,在面对过程中的问题时,希望业主可以站在我们一侧战胜问题,而不是与问题一起打倒设计师。设计就像是一段旅行,但参加旅行的不是设计师,而是业主。我们更像是一个领航员,用我们的经验,专业把您安全的送达目的地。但这个旅行是双方共同参与的,在一进一退的过程中我们会知道业主想去的目的地,怎么去。但不管怎样,过程的感受,最终的状态,一定是双方共同努力的结果。
    设计说明 | Design Instruction
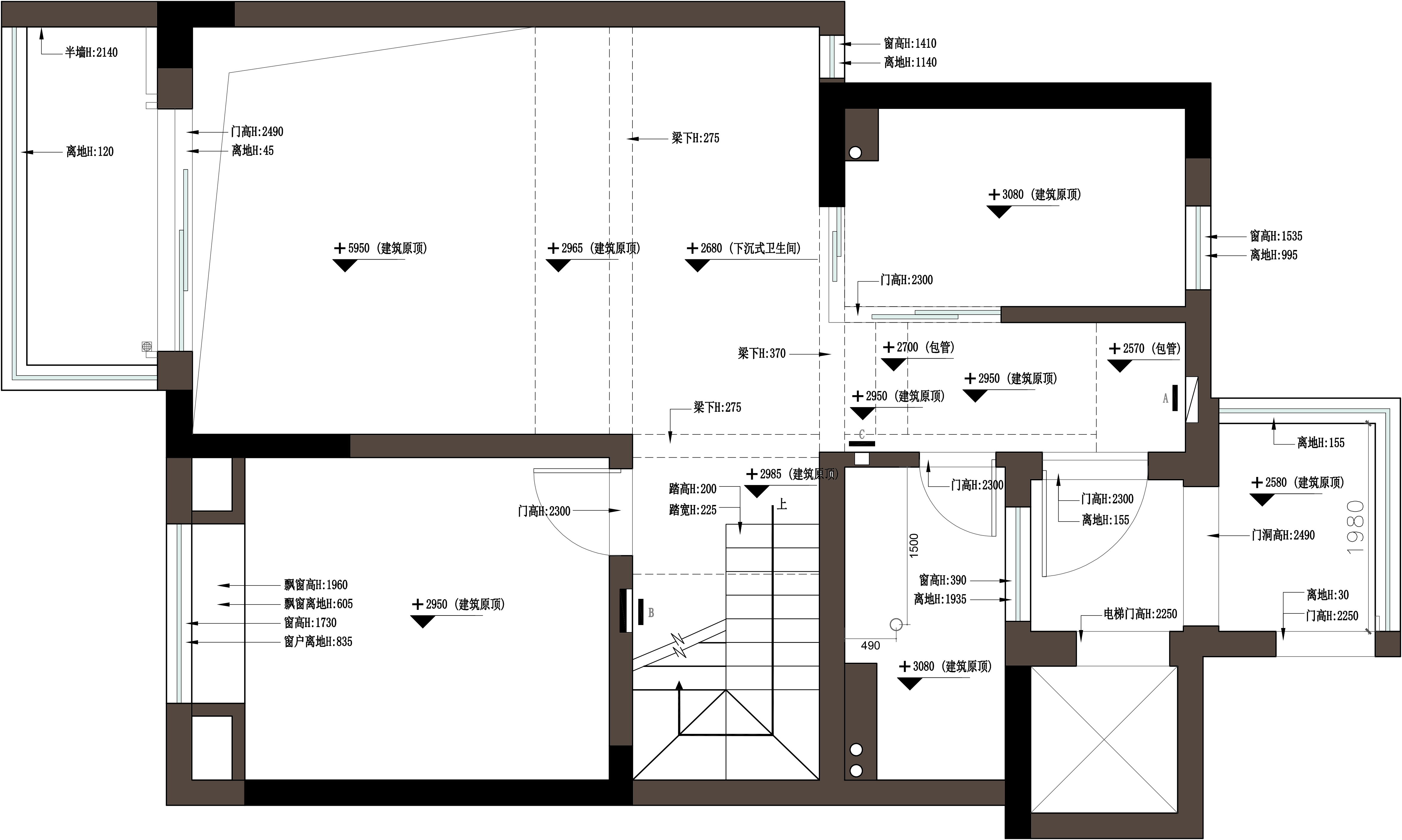
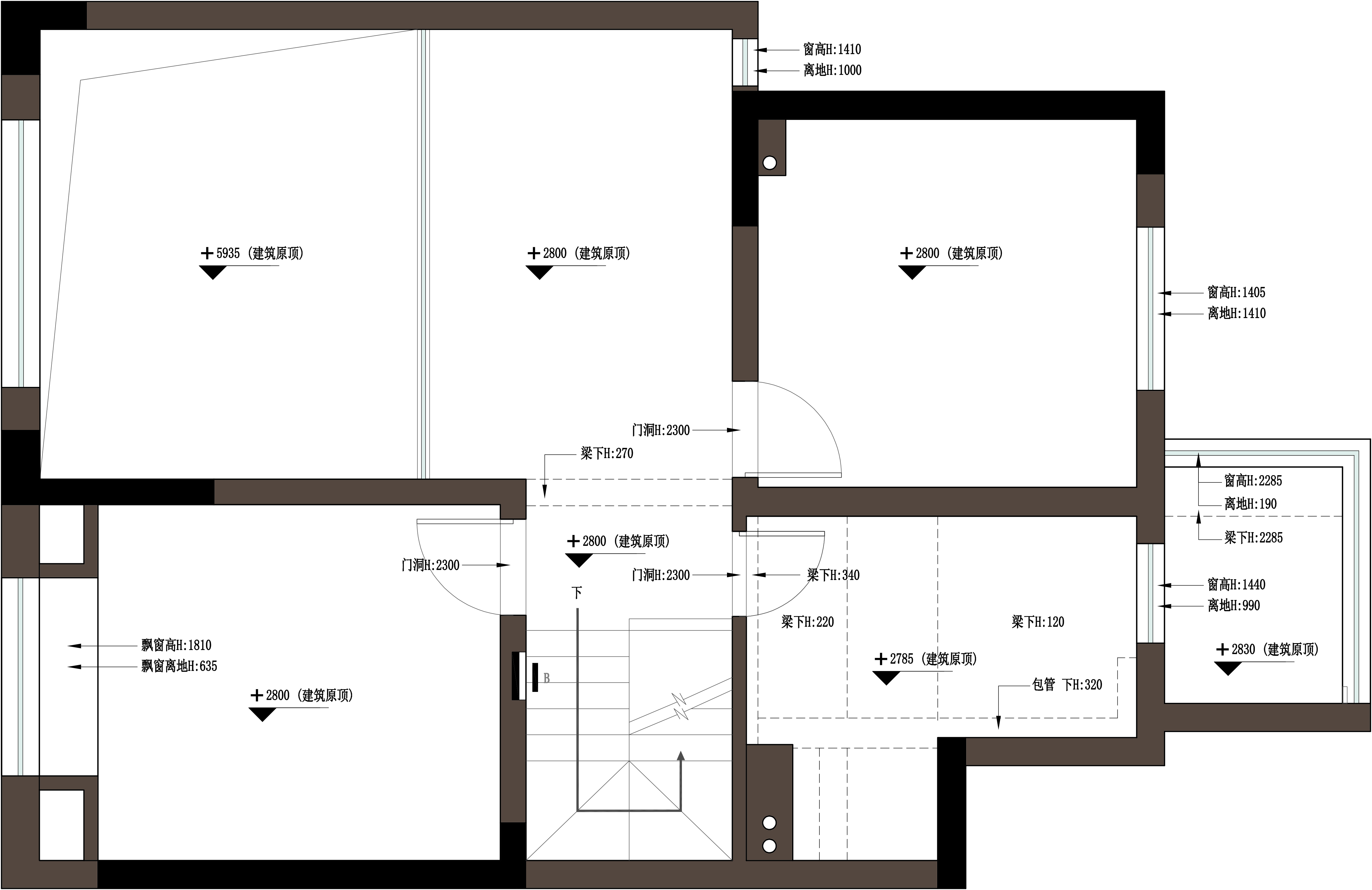
  • 业主概况 80后夫妻二人,暂无子女,养有一只猫。 结构概况 房子为复式结构,设计时将一层和二层做了动静的分割,一层为客餐厅公共区域,二层做了三个卧室为纯粹的静区。 一层除了保留了卫生间的相对独立之外,将所有空间能拆除的墙体都拆除,保证了整个公共区域的开敞,140平米的住宅去掉公摊后实用面积只有112平,每层只有56平,在这个56平利要完成垂直动线,客卫。客餐厅厨房阳台等等一系列功能,我们为了保证整个空间的开敞感,尽量去模糊每个功能之间的边界,让他们相互之间可以相互渗透,串联。这样人身处其中活动起来会更加的自如和放开,而不是拘谨和约束。 材质颜色搭配 整体空间材质上我们选择了比较温润的原木色进行一些结构的装饰,木饰面包裹的部分都是房子结构原本的梁和柱,我们设计上只是给柱子和梁穿上了衣服。空间里大部分材料都选择了哑光,柔面的低饱和颜色,让空间在材质和颜色更加亲人,没有攻击性。
  • 图片
  • 图片
  • 图片
  • 图片
  • 图片
  • 图片
  • 图片
  • 图片
  • 图片
  • 图片
  • 图片
  • 图片
  • 图片
  • 图片
  • 图片
  • 图片
  • 上一个 下一个
    《金腾奖优秀作品年鉴》 私宅丨地产丨餐饮丨酒店丨办公丨商业丨公共丨产品丨公益丨人气 jintengAWARD(小金_金腾奖组委会) 广州市海珠区琶洲大道68号华新中心21楼
    金腾奖视频号 金腾奖小红书号 监制:闫虹
    统筹:吴佳佳
    运营:朱倩仪 王赫萱 张芷莹 胡岚恩 小金
    新媒体:王贝贝 严洁 侯乐 鹅姐
    经纪:刘译遥 石征 曹凯月
    技术:张桐 黄天佑
    最终解释权归金腾奖主办方所有