迟来的作品
作品详情
  • Details of the work 标题横线
    头像或者logo
    图片 王辰罡 云上设计师俱乐部特约推荐
    城市:徐州
    公司: 四正空间设计工作室
    参赛作品: 迟来的作品
    空间类型:公寓(150㎡以下)
    个人/公司简介:
    2012年 南京市室内设计大赛(新人新作类) 二等奖 2012年 江苏省室内设计竞赛 铜奖 2013年 全国室内设计竞赛 优秀奖 2013年 江苏省室内设计竞赛 银奖 2017年 中国设计星 优秀奖 2019年 M+中国高端室内设计大赛省TOP50 2019年 第六届芒果奖中国商业优胜奖 2019年 世界青年设计师论坛(WYDF)大中华区年度室内设计金奖 2020年 40UNDER40中国(江苏)设计杰出青年 2020年 世界青年设计师论坛(WYDF)大中华区年度室内设计金奖 2020年 上海设计周新锐中国设计奖(2020~2021年度省际榜/城际榜) 2020年 DF国际空间大奖 年度商业空间设计(实景类) 优秀奖 2021年 GRP中意国际设计金指奖 优胜奖 2021年 IN设计 优秀住宅空间奖 2021年 上海设计周 设计无国界 提名 2021年 上海设计周 人居住房设计奖 提名 2021年 金住奖-中国(徐州)十大居住空间设计师 2021年 GRP中意国际设计金指奖 优胜奖 2021年 IN设计 优秀住宅空间奖 上海设计周新锐中国设计奖省际榜/城际榜(2020~2021) 上海设计周“设计无国界”大奖全国榜(2020~2021) 2022年 DF国际室内设计大奖(实景类) 优秀奖 设计理念:设计的价值体现于其不可替代性 社会贡献: 河南水灾捐款 慰问徐州市福利院 冠名捐赠守护花蕾学校/小镇 黑龙江水灾捐款 徐州文旅推荐官 全国优选|王辰罡:设计价值源于其不可替代性 2019芒果奖中国商业优胜奖作品赏析 设计的觉醒&觉知——“设计私享会”主题沙龙南京站圆满落幕 《M+尊荣大赏》今日有话说第十一期 宁好,设计师 | 云上主题年度收官礼圆满收官(云上设计师俱乐部) “小围裙”计划系列观察(2022新华网) “满满一大碗”综艺(小红书) 小围裙”计划暑假劳动日记(2021新华网)
    设计说明 | Design Instruction
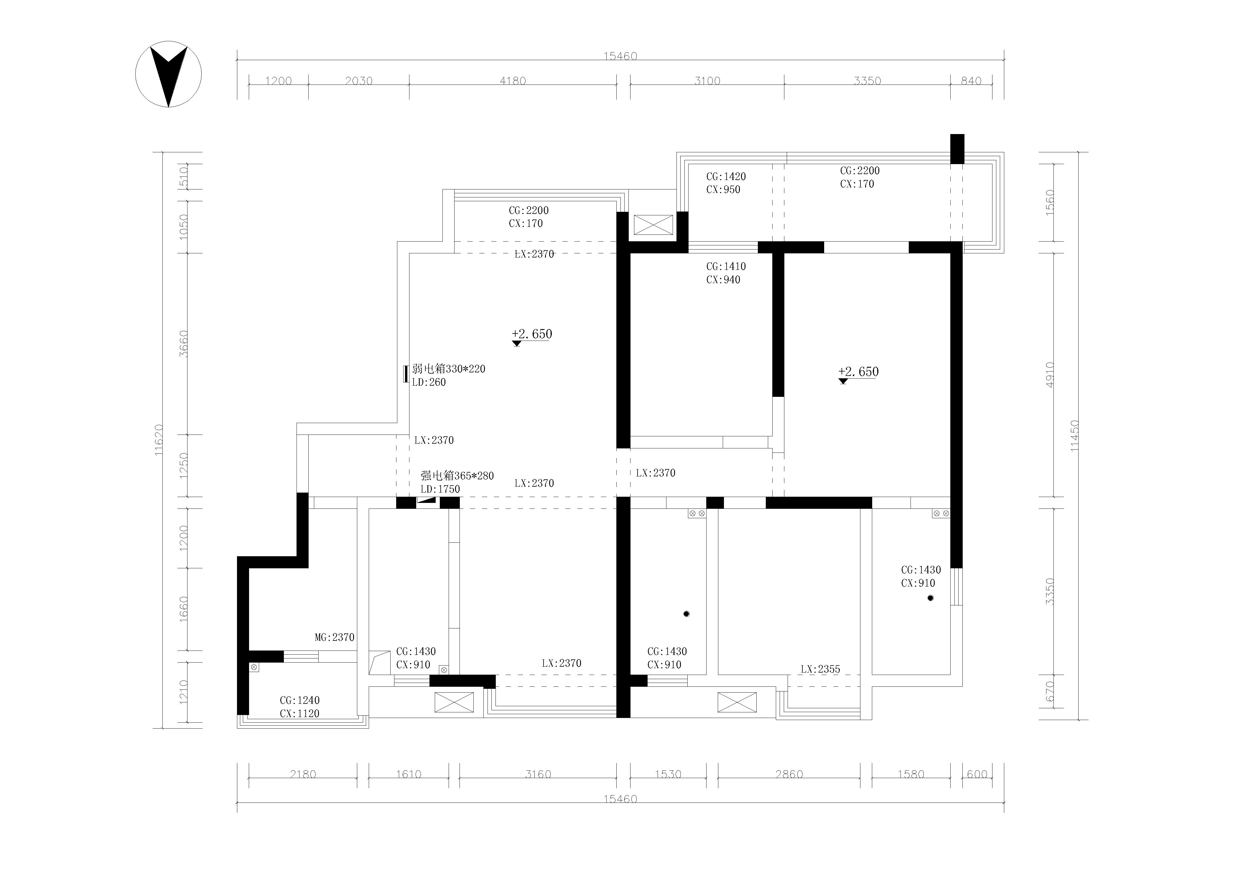
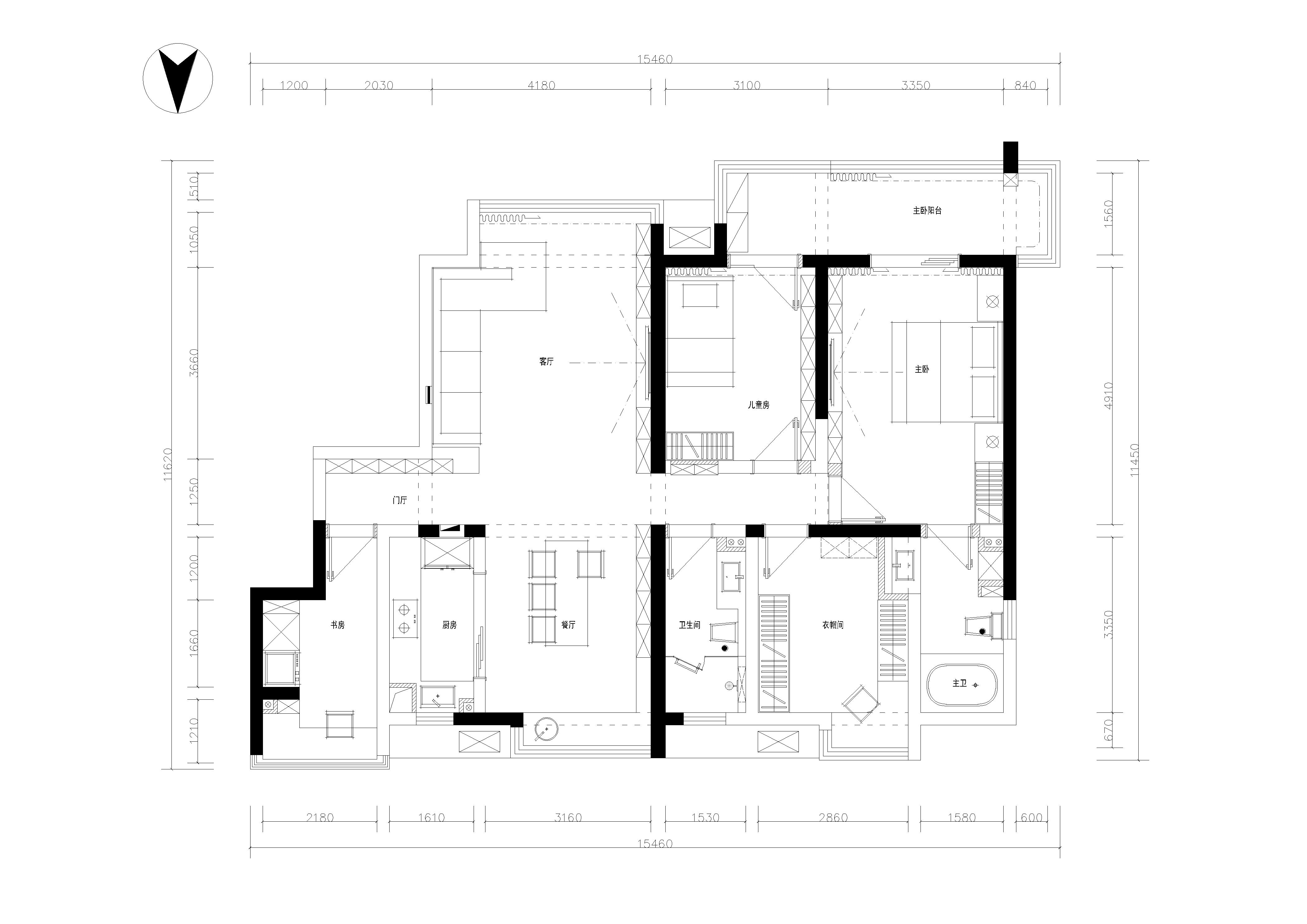
  • 项目概述: 本案位于江苏省徐州市湖光山色小区内,房龄10+年,2021年9月开始动工,2023年5月完全竣工。建筑面积150㎡。主要运用材料:瓷砖、石材、饰面、木作定制、内墙涂料、瓷砖、成品家具、洁具等。 设计说明: 此案的设计师就是甲方本人,设计师以甲方的要求、设计师的角度,兼并双方完成了设计、施工、选材等工作。最终促成本案的落成,虽然还原度极高,但感慨颇多。 本案取名为《迟来的作品》,其含义来源于多个层次。其一原由甲方(设计师本人)生于90年代,但在设计师所在城市以其当年年龄在市区全款买下150平方住宅,并全款设计装修落成的人群当中实属少数,其原因是设计师在工作中偶遇其它领域机遇并一举成功,从而促成本案的发生。其二原有在设计、施工的阶段恰逢全国范围内疫情肆虐,从而不可抗的延长了设计方案的实现时间,从2021年一直进行至2023年。其三原由因落地时间的延长,在各个环节出现人员变动,品牌变动(如品牌的人员变动导致选材方在执行时的传递误差)导致方案不还原或成品出现误差,从而导致作品完成时间延期。其四因设计师在项目落地的过程中更多以甲方角色参与也看到乙方角度意外的诸多问题,从而导致大家此刻看到的是一个2023年实现的2021年设计作品。 言归正传,本案的设计师(既甲方)在设计过程中完全以其所经历的所有方案中甲方的缩影,其中参杂当时对设计及行业流行的特点结合自身所用或所可能用的状态设计出了本案,实属不易。色彩方面仅以黑白灰及木色对空间以对人与自然最大限度的理解进行表皮(既主观视觉)的设计。在功能方面因空间结构过于固定,且改造空间有限及所需功能与原始户型匹配度较高,所以空间变动不大,但极度符合且贴近于使用者。照明方面根据节能减排、节省碳排放、还原自然状态为目标,用简洁、靠近自然的方式,尽可能减少顶面造型及光污染,搭配智能照明手段达到需光而亮,可明可暗的照明需求。整体设计风格无明显符号,偏向简洁、轻快、自然,给人以放松、无目的居家状态。 全观整体方案,在落地还原的近两年过程中,对设计层面以恶有着潜移默化的影响,可谓是行走施工中的设计,但多设计师来说纵使过手千万案例不如自己房子一用,所以在自己家的设计过程中,才真正理解千人千面,世上没有完全相同的两片叶子。
  • 图片
  • 图片
  • 图片
  • 图片
  • 图片
  • 图片
  • 图片
  • 图片
  • 图片
  • 图片
  • 图片
  • 图片
  • 图片
  • 图片
  • 图片
  • 图片
  • 图片
  • 图片
  • 图片
  • 图片
  • 图片
  • 图片
  • 图片
  • 图片
  • 图片
  • 图片
  • 图片
  • 图片
  • 图片
  • 图片
  • 图片
  • 图片
  • 图片
  • 图片
  • 图片
  • 图片
  • 图片
  • 上一个 下一个
    《金腾奖优秀作品年鉴》 私宅丨地产丨餐饮丨酒店丨办公丨商业丨公共丨产品丨公益丨人气 jintengAWARD(小金_金腾奖组委会) 广州市海珠区琶洲大道68号华新中心21楼
    金腾奖视频号 金腾奖小红书号 监制:闫虹
    统筹:吴佳佳
    运营:朱倩仪 王赫萱 张芷莹 胡岚恩 小金
    新媒体:王贝贝 严洁 侯乐 鹅姐
    经纪:刘译遥 石征 曹凯月
    技术:张桐 黄天佑
    最终解释权归金腾奖主办方所有