early summer
作品详情
  • Details of the work 标题横线
    头像或者logo
    图片 武汉刘思彤设计工作室
    城市:武汉
    公司:武汉刘思彤设计工作室
    参赛作品: 初夏
    空间类型:公寓(150㎡以下)
    个人/公司简介:
    香港.刘思彤空间规划设计事务所是一家专注居住空间设计研究的设计品牌。沉迷原创,执着还原,实景必须完败效果是我们的设计原则!我们致力为追求美好生活品质的业主,定制设计独具气质与美学的居家空间,提供省事省力的全案设计托管服务,提倡健康宜居的居家生活理念。公司旗下[瀚石施工][飞乌家具]以健全的工艺标准、环保用材,创造有你气息的,舒适的,健康的家。一个用设计证明自己存在的团队、一个最懂时下年轻人FEEL的团队一个专业、内心充满温度的团队。我们拒绝:“一切华而不实”。
    设计说明 | Design Instruction
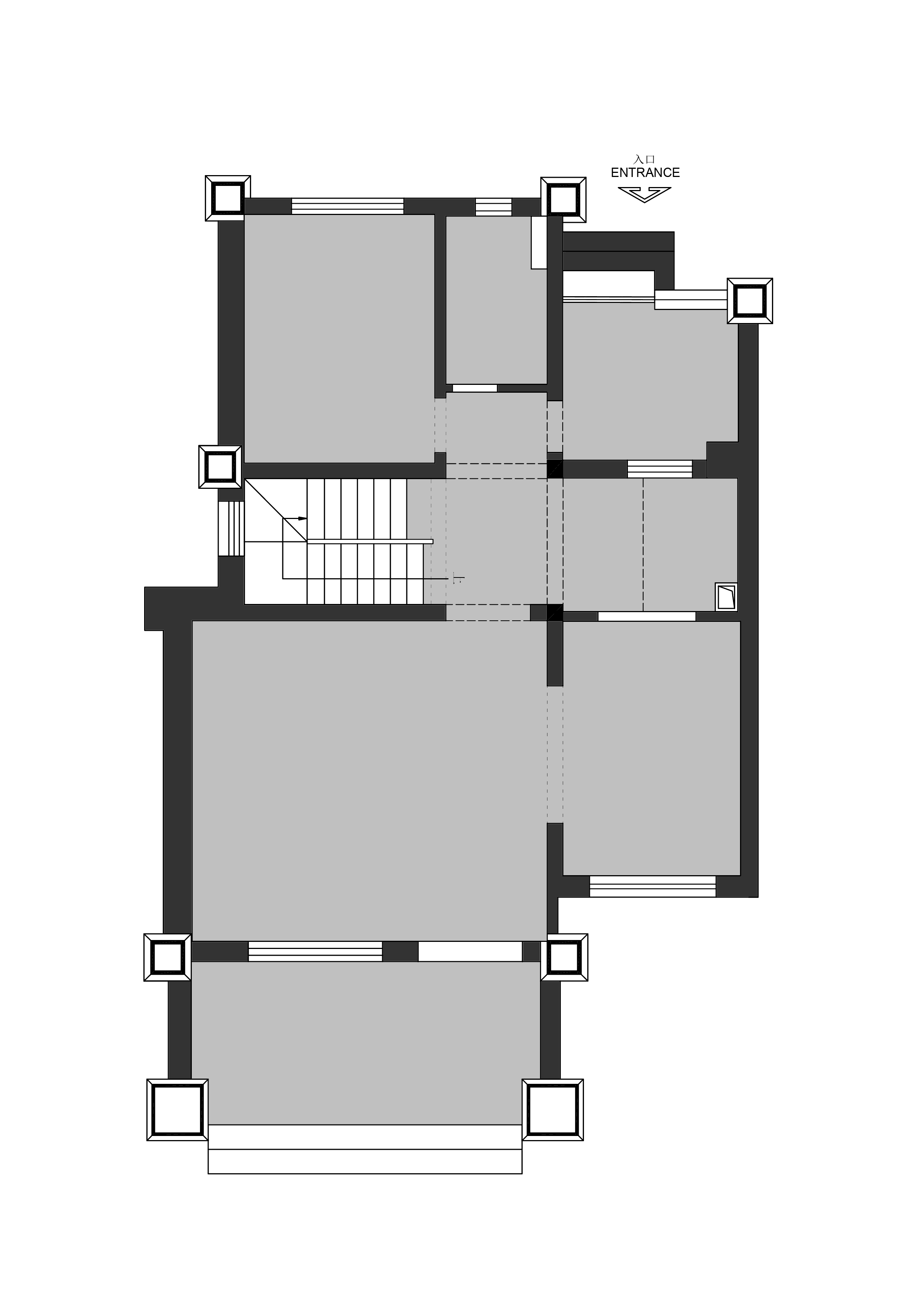
  • 本案是一套四层的独栋别墅,顶层是不规则形状的阁楼。原来的装修无论从审美还是功能上都无法满足业主夫妇及其女儿的需要了。不喜欢复杂繁复,业主想要整个家开阔大气,简约纯粹,同时也想在四层楼的家中加入电梯。 充分考虑屋主一家的需求,设计摒弃复杂的装饰,选择用木皮、石材、玻璃、不锈钢等材质来提升空间质感,同时用大面积的留白,营造大气开阔的空间感。一家三口并不需要太多房间,我们直接在客厅做了挑空,双层玻璃采光,空间明亮通透。电梯与楼梯也安排在了整个房子的中间,无论去向室内的任何区域,都能保证线路便捷。 保留走廊中空,一楼是开放的家庭活动区:带岛台的餐厨与明亮通透的客厅,全开放的空间有利于家人之间的交流与互动。楼上的卧室和起居室则更是更私密的定制设计:二楼业主女儿的房间想要一个健身房,方便练瑜伽做运动。三楼业主夫妇的起居室,有阳台也有露台,更加注重收纳系统和人性化需求的设计……空间开合有度,生活也有多维度的舒适与精彩。
  • 图片
  • 图片
  • 图片
  • 图片
  • 图片
  • 图片
  • 图片
  • 图片
  • 图片
  • 图片
  • 图片
  • 图片
  • 图片
  • 图片
  • 图片
  • 图片
  • 图片
  • 图片
  • 图片
  • 图片
  • 图片
  • 图片
  • 图片
  • 图片
  • 图片
  • 图片
  • 图片
  • 图片
  • 上一个 下一个
    《金腾奖优秀作品年鉴》 私宅丨地产丨餐饮丨酒店丨办公丨商业丨公共丨产品丨公益丨人气 jintengAWARD(小金_金腾奖组委会) 广州市海珠区琶洲大道68号华新中心21楼
    金腾奖视频号 金腾奖小红书号 监制:闫虹
    统筹:吴佳佳
    运营:朱倩仪 王赫萱 张芷莹 胡岚恩 小金
    新媒体:王贝贝 严洁 侯乐 鹅姐
    经纪:刘译遥 石征 曹凯月
    技术:张桐 黄天佑
    最终解释权归金腾奖主办方所有