Eevee
作品详情
  • Details of the work 标题横线
    头像或者logo
    图片 武汉刘思彤设计工作室
    城市:武汉
    公司:武汉刘思彤设计工作室
    参赛作品: 伊贝
    空间类型:公寓(150㎡以下)
    个人/公司简介:
    香港.刘思彤空间规划设计事务所是一家专注居住空间设计研究的设计品牌。沉迷原创,执着还原,实景必须完败效果是我们的设计原则!我们致力为追求美好生活品质的业主,定制设计独具气质与美学的居家空间,提供省事省力的全案设计托管服务,提倡健康宜居的居家生活理念。公司旗下[瀚石施工][飞乌家具]以健全的工艺标准、环保用材,创造有你气息的,舒适的,健康的家。一个用设计证明自己存在的团队、一个最懂时下年轻人FEEL的团队一个专业、内心充满温度的团队。我们拒绝:“一切华而不实”。
    设计说明 | Design Instruction
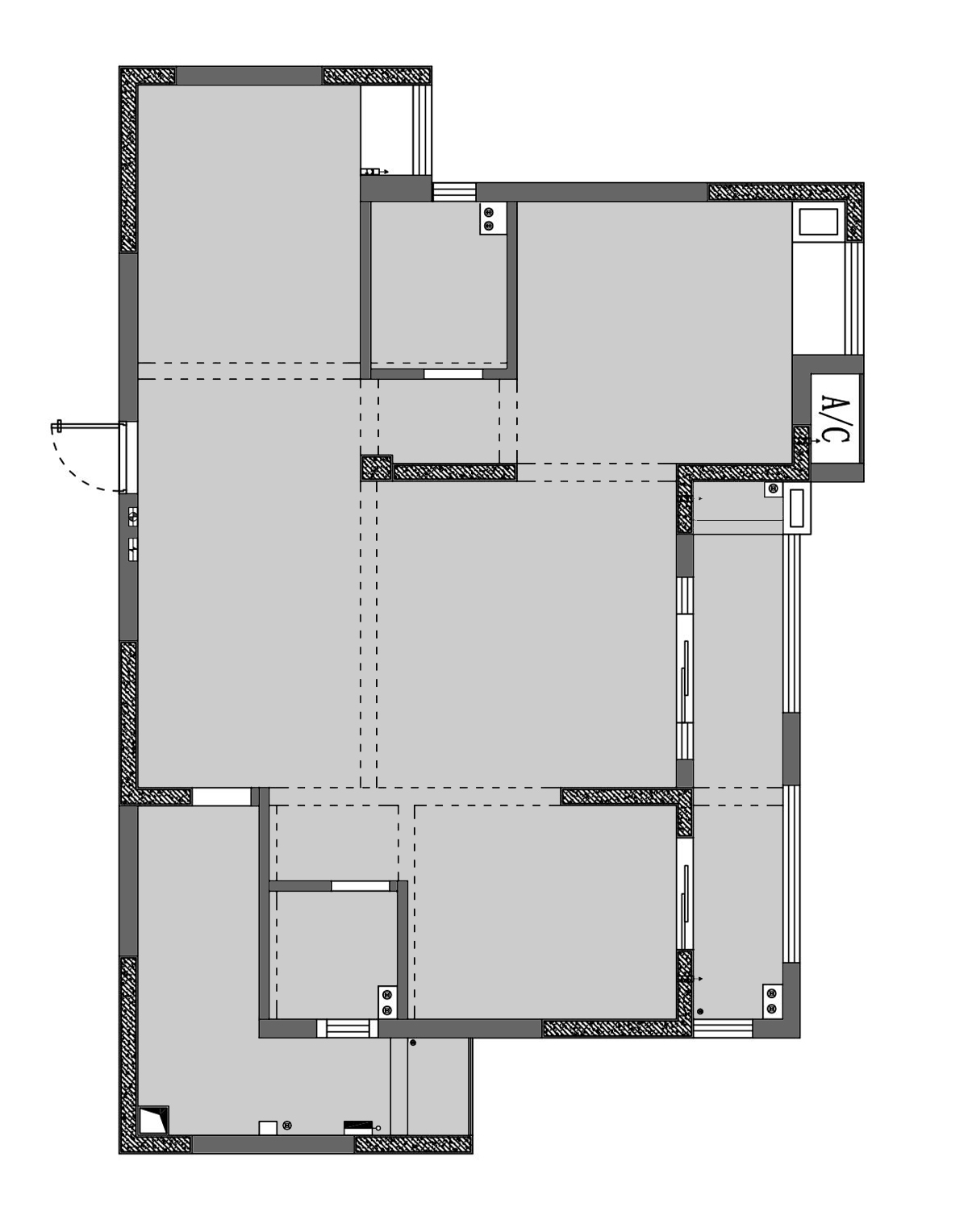
  • 三口之家,孩子住校,孩子一个星期回来一次,客户不喜欢一成不变的传统客厅,需要储物间,衣帽间,浴缸!为了给孩子营造一个很好的学习氛围,做了去客厅化的开放式书房!这样可以随手拿到自己想要的书籍,孩子每时每刻遨游在知识的海洋,这样的开放式书房简直不要太好用了!业主:“我喜欢简约的日式意境,更有温度的现代主义,希望新家能够拥有清爽感和自然感。”第一次接触装修,他自己边做足装修功课,边特意找到我们,据业主说,是在网上看到我们的案例,让她置换购入这套房后,请设计师来改造的念头更加坚定。 ❶ 洄游动线的设计达到分散动线,弱化过道空间;❷ 次卫做了干湿分离的设计,干区和展示柜结合成大体块;➌ 主卧结构我们改了进门的位置,让睡眠区更有私密性;❹ 饱和度高的色彩元素就作为家具的色块来点缀空间,达到空间的平衡;
  • 图片
  • 图片
  • 图片
  • 图片
  • 图片
  • 图片
  • 图片
  • 图片
  • 图片
  • 图片
  • 图片
  • 图片
  • 图片
  • 图片
  • 图片
  • 图片
  • 图片
  • 图片
  • 图片
  • 图片
  • 图片
  • 上一个 下一个
    《金腾奖优秀作品年鉴》 私宅丨地产丨餐饮丨酒店丨办公丨商业丨公共丨产品丨公益丨人气 jintengAWARD(小金_金腾奖组委会) 广州市海珠区琶洲大道68号华新中心21楼
    金腾奖视频号 金腾奖小红书号 监制:闫虹
    统筹:吴佳佳
    运营:朱倩仪 王赫萱 张芷莹 胡岚恩 小金
    新媒体:王贝贝 严洁 侯乐 鹅姐
    经纪:刘译遥 石征 曹凯月
    技术:张桐 黄天佑
    最终解释权归金腾奖主办方所有