SEE THE SPACE SPIRITUALITY
作品详情
  • Details of the work 标题横线
    头像或者logo
    图片 深圳上森室内建筑设计有限公司
    城市:深圳
    公司:深圳上森室内建筑设计有限公司
    参赛作品: 透视空间灵性
    空间类型:餐饮
    个人/公司简介:
    上森设计成立于2011年,是一家国际前沿的室内建筑设计公司,专注于打造住宅地产精装交楼标准的服务商,同时也致力于星级酒店及度假村、顶级商业及办公楼、高端会所及豪宅等专业设计服务。凭借多位资深主任设计师组成的方案设计团队,深厚而多元的设计背景,严谨细致的工作作风,良好的职业素质,富有艺术性和亲和力的沟通,最及时的服务和全力的现场支持,全力打造出精品设计案例。
    设计说明 | Design Instruction
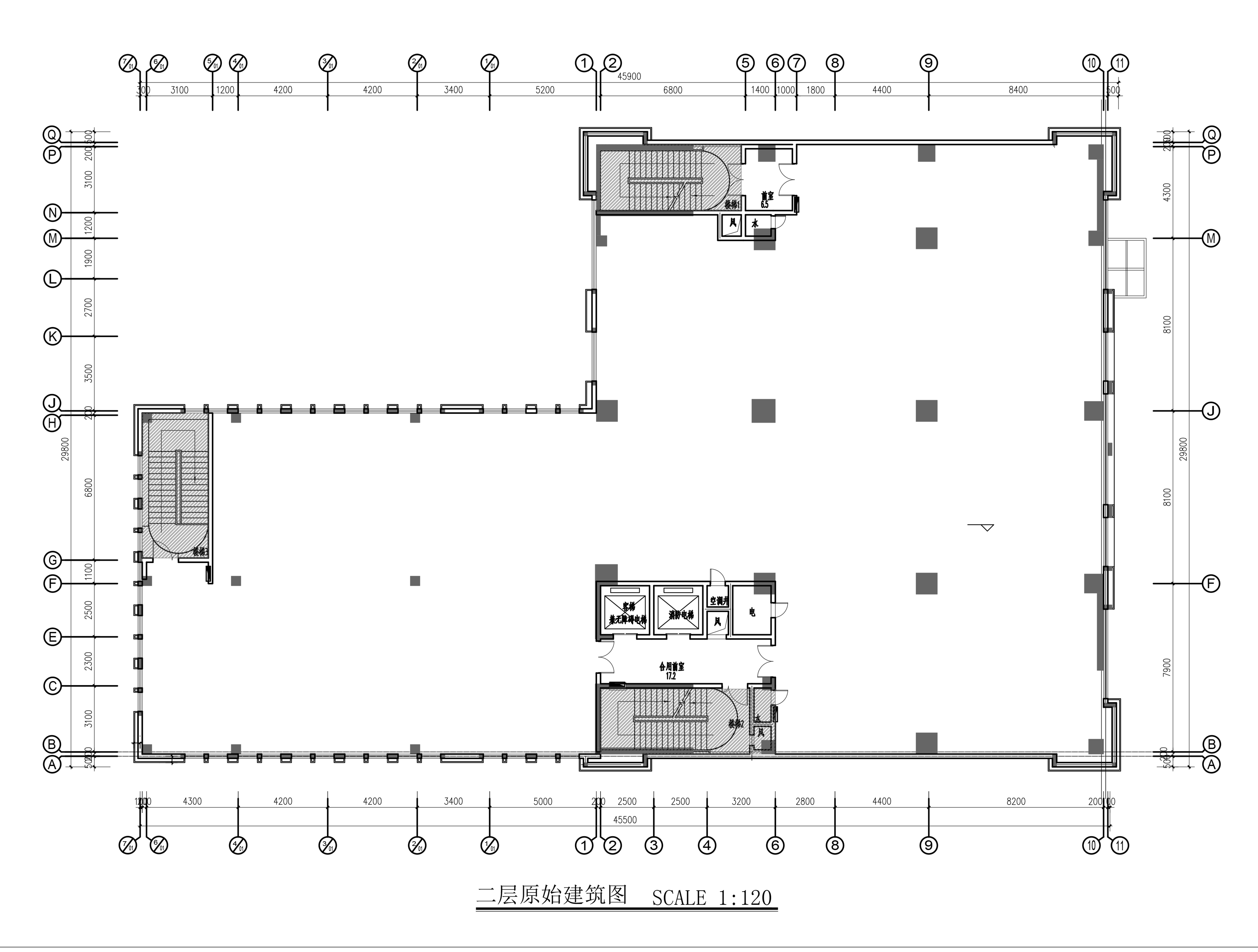
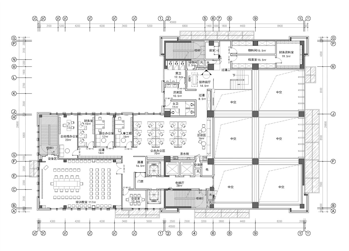
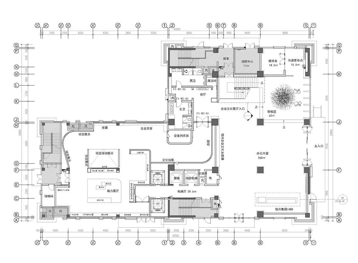
  • 透视空间灵性。追逐光影,朦胧又沉静,意象又抽离,饱含深情,却不浓烈至极像月亮,温润如玉的交接。 佳兴集团位于江西省赣州市南康区金融中心,集地产开发、市场运营、智能制造、金融投资、电子商务和智慧物业等多领域为一体的综合性集团公司。作为高品质地产集团的企业办公空间,体现佳兴城市生活引领者的高端定位,兼具建筑体块的气韵,结合自然之妙与人文之礼,营造现代极具质感的商务办公空间。 原始建筑空间结构问题十分突兀,梁、窗和楼梯结构未经考虑地安排在一起,形体错乱,空间体验贫乏。 利用渐变雾玻、折射、 渐变,将空间的结构缺点掩藏。既可以保证光线的畅通无阻,渐变玻璃独特的艺术效果又可以比较大限度的为人们带来宁静舒心的感受,不仅使办公环境更人性化,更能调节紧张的身心。 雾里看花般的朦胧效果使室内光线更为柔和,而玻璃上方透明的视觉效果又使室内空间显得晶莹剔透而富有层次。充分体现了当今室内装饰引进自然,追求返璞归真,塑造空间灵性的主题。 世界有界,想象,创造,跨越,尽在一念之间。 从古今相隔,文化交融,每次对边界的跨越,就 像一条永无停止的河流,延伸出一种历久弥新的 生命力。 打破对“界”的理解,重新营造新的空间秩序、 功能划分、空间的相互关系、人的相互关系。. 这种纯粹的情感,更真实,有界似无界,留下更 多的想象空间给每一个使用者和到访者。 ·简约 简约而不失美感,色调柔和又舒适。满足回归自然的愿望,完美诠释了极简主义。 ·自然 青绿色的大理石与休息区相呼应,兼顾了艺术与自然的灵感之美。沉稳的配色同时也远离喧嚣。 ·灵性 通过自然的纹理线条,营造出高级氛围。将公寓和自然景观作结合,勾勒出了一幅静谧、宁静的自然版图。
  • 图片
  • 图片
  • 图片
  • 图片
  • 图片
  • 图片
  • 图片
  • 图片
  • 图片
  • 图片
  • 图片
  • 图片
  • 图片
  • 图片
  • 图片
  • 上一个 下一个
    《金腾奖优秀作品年鉴》 私宅丨地产丨餐饮丨酒店丨办公丨商业丨公共丨产品丨公益丨人气 jintengAWARD(小金_金腾奖组委会) 广州市海珠区琶洲大道68号华新中心21楼
    金腾奖视频号 金腾奖小红书号 监制:闫虹
    统筹:吴佳佳
    运营:朱倩仪 王赫萱 张芷莹 胡岚恩 小金
    新媒体:王贝贝 严洁 侯乐 鹅姐
    经纪:刘译遥 石征 曹凯月
    技术:张桐 黄天佑
    最终解释权归金腾奖主办方所有