SHENZHEN ZHONGYI GROUP CORPORATE CLUBHOUSE
作品详情
  • Details of the work 标题横线
    头像或者logo
    图片 深圳上森室内建筑设计有限公司
    城市:深圳
    公司:深圳上森室内建筑设计有限公司
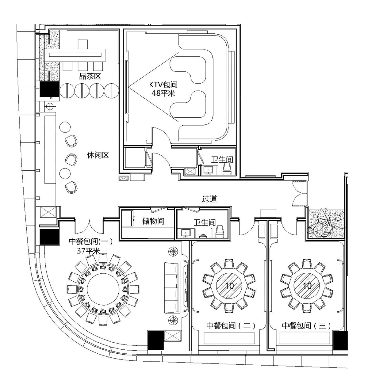
    参赛作品: 中壹集团-企业会所
    空间类型:办公
    个人/公司简介:
    上森设计成立于2011年,是一家国际前沿的室内建筑设计公司,专注于打造住宅地产精装交楼标准的服务商,同时也致力于星级酒店及度假村、顶级商业及办公楼、高端会所及豪宅等专业设计服务。凭借多位资深主任设计师组成的方案设计团队,深厚而多元的设计背景,严谨细致的工作作风,良好的职业素质,富有艺术性和亲和力的沟通,最及时的服务和全力的现场支持,全力打造出精品设计案例。
    设计说明 | Design Instruction
  • 中壹集团-企业会所位于深圳卓越梅林中心广场,市中心区以北,梅林路和中康路交汇处以东,紧邻地铁4号线上梅林地铁站,咫尺福田CBD繁华,尽显商务全新生态体验。 我们的设计以东方传统文化为基础,融合了现代艺术的精髓,旨在创造一种自然而开放的空间氛围,同时彰显自由包容和尊贵大气的格调。 在接待会所的设计中,我们将庄重而典雅的中国红色调作为主要空间渲染元素。这个色彩选择不仅符合现代审美,还兼具了中式气韵,使整个空间的视觉维度变得更加多彩而丰富。 这个空间散发着宁静的氛围,仿佛在无声中唤醒人们内心的宁静。在这里,一切都有秩序,一切都有张弛有度,蕴含着从容生活的智慧和通向广阔境界的哲学。这个设计代表了回归自然、回归自由、回归内心的精神信念。这个空间宛如一个跋山涉水、历经世事百态的人生之旅,它经受住时间的考验,也经得起岁月的沉淀。 综上所述,我们的设计将东方传统文化与现代艺术融合,创造出一个空间,不仅以中国红色调为主要元素,同时展示了自然、开放、庄重和典雅的特质。这个空间不仅仅是一个接待会所,更是一个激发灵感和思考的源泉,一个能够触动人内心深处情感的场所,使人们能够在其中找到平静与启发。
  • 图片
  • 图片
  • 图片
  • 图片
  • 图片
  • 图片
  • 图片
  • 图片
  • 图片
  • 图片
  • 图片
  • 图片
  • 图片
  • 图片
  • 图片
  • 图片
  • 上一个 下一个
    《金腾奖优秀作品年鉴》 私宅丨地产丨餐饮丨酒店丨办公丨商业丨公共丨产品丨公益丨人气 jintengAWARD(小金_金腾奖组委会) 广州市海珠区琶洲大道68号华新中心21楼
    金腾奖视频号 金腾奖小红书号 监制:闫虹
    统筹:吴佳佳
    运营:朱倩仪 王赫萱 张芷莹 胡岚恩 小金
    新媒体:王贝贝 严洁 侯乐 鹅姐
    经纪:刘译遥 石征 曹凯月
    技术:张桐 黄天佑
    最终解释权归金腾奖主办方所有