Zataqi Flagship Store
作品详情
  • Details of the work 标题横线
    头像或者logo
    图片 陈洁
    城市:北京
    公司: 北京尘一无界空间设计有限公司
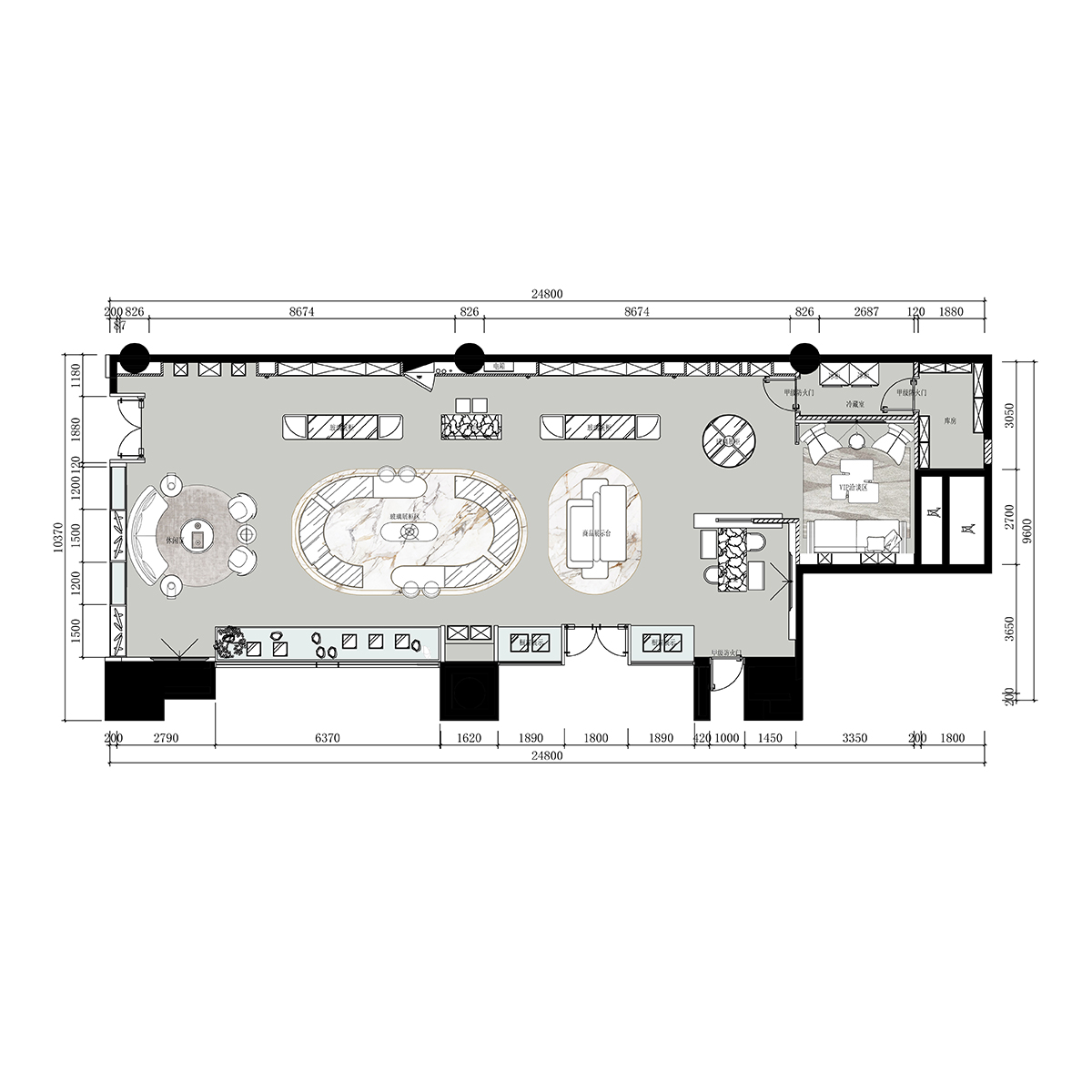
    参赛作品: 扎塔奇旗舰店
    空间类型:办公
    个人/公司简介:
    北京尘一无界空间设计有限公司创始人 设计总监 CIID中国建筑学会室内设计会员 IAI亚太设计师联盟会员 中国建筑装饰协会高级室内建筑师 国家二级注册建造师 专业认证与奖项: 2008年度 CIDA第八届全国设计大展---优秀奖 2009年度广州设计周中国室内10大设计师评选活动---十佳作品奖 2010年度中国饭店协会第四届酒店装饰大赛荣誉奖 2014年度第九届IDDF室内设计奖 年度最佳设计师金奖 2017年度CBCA中国设计年度人物---精英设计师 2018年度创新中国空间设计艺术大赛---十大原创设计人物 2019年度M+中国高端室内设计大赛头号设计师 2019年度40UNDER40中国(北京)设计杰出青年 2020年度三棵树室内设计大赛全国三十强2 2021年度百度馨居奖最佳大户型设计奖 年度百度馨居奖最佳大户型设计奖
    设计说明 | Design Instruction
  • 西藏文脉宛若沧海游龙,在追求与凸显自身个性审美的现代社会,传统文化有着更深层次的意义与价值。 那曲冬虫夏草品牌扎塔奇作为第一个走出西藏的本土奢侈品牌,在北京高端商城与国际一线奢侈品牌同框设立旗舰店,成就东方文化时尚,既突破了固有观念,又将传统文化和思潮统一,通过空间环境,产品包装,用户体验等载体,诠释西藏文化的独特魅力。
  • 图片
  • 图片
  • 图片
  • 图片
  • 图片
  • 图片
  • 图片
  • 图片
  • 图片
  • 图片
  • 图片
  • 图片
  • 图片
  • 上一个 下一个
    《金腾奖优秀作品年鉴》 私宅丨地产丨餐饮丨酒店丨办公丨商业丨公共丨产品丨公益丨人气 jintengAWARD(小金_金腾奖组委会) 广州市海珠区琶洲大道68号华新中心21楼
    金腾奖视频号 金腾奖小红书号 监制:闫虹
    统筹:吴佳佳
    运营:朱倩仪 王赫萱 张芷莹 胡岚恩 小金
    新媒体:王贝贝 严洁 侯乐 鹅姐
    经纪:刘译遥 石征 曹凯月
    技术:张桐 黄天佑
    最终解释权归金腾奖主办方所有