FONNP.
作品详情
  • Details of the work 标题横线
    头像或者logo
    图片 吴恒
    城市:南京
    公司: 無1内建築設計事務所
    参赛作品: 纵向阀值
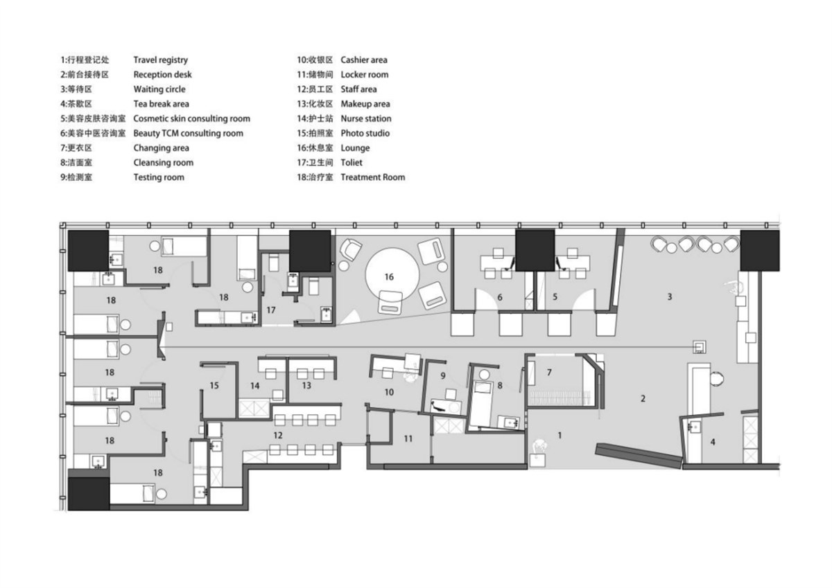
    空间类型:办公
    个人/公司简介:
    90后新锐设计师 無1内建築設計事務所 创始人 曾获荣誉: 2022安德马丁发现中国好设计 年度推荐设计师 2022北美PI设计大奖 室内设计·住宅类WINNER 2022亚洲青年设计之光(中国内地)TOP100 2022 NCA新商业空间设计师TOP10 2022南京40UNDER40 设计杰出青年 2022金住奖中国百杰人物 2022设计金陵24杰
    设计说明 | Design Instruction
  • - 空间氛围 回望空间主通道,轮廓由点至面,从左侧的竖向构建,到右侧的大体块造型,让其周遭徐徐铺开,层次清晰。 - 空間初印象 与其重新建构,不如适当结构。基于空间结构突破口,我们将一个倾倒的天然石材嵌入其中,作为垂直动线的路径强化,同时成为醒目的形象。 -空间停歇处 光影,材质与色彩,诉说空间的情绪,不需要过多的装饰和赘述,在淡雅的基调下,空间一隅在徐徐的灯光下,令人放下疲惫。 -空间情绪感 自然,光影,科技,现实的情绪与虚幻的梦想在此交错,折射出平淡的空间,美的轮廓的以显示,一切恰到好处。 -空间仪式感 艺术品般的主体装置物置于空间核心,以纯白作为基地,隐含着象征无限的直线灯束,探索空间含光的趣味。 -空间层次感 材质反射出的镜像空间,给空间赋予更多的想象,仿佛梦境中的存在,体块在空间中重叠,循环,矛盾。 -空间之律 由变化的灯光带给空间不同的情绪,诉说着以不同角度,转变,展示,绽放自己。 -空间通透感 倾斜的体块开口,预留出主过道。经过重复的体块,再到磨砂的隔断,光线的变化,形成渐进的缓冲平台,作为时空穿梭载体的不同场景。 -空间交错感 借助几何图形的门洞,置于连续的装置。每个空间以戏剧的,未知的样貌,重复的几何元素,表现了一定的有序性和无限性。 -空间轻盈感 行径路线呼应入口空间节奏,由几何元素视角,将功能区悬浮,几何尺度相互的调动和调节,暗示场所的精神联系,无限价值。
  • 图片
  • 图片
  • 图片
  • 图片
  • 图片
  • 图片
  • 图片
  • 图片
  • 图片
  • 图片
  • 图片
  • 图片
  • 图片
  • 图片
  • 图片
  • 图片
  • 图片
  • 图片
  • 图片
  • 图片
  • 图片
  • 图片
  • 图片
  • 图片
  • 图片
  • 图片
  • 上一个 下一个
    《金腾奖优秀作品年鉴》 私宅丨地产丨餐饮丨酒店丨办公丨商业丨公共丨产品丨公益丨人气 jintengAWARD(小金_金腾奖组委会) 广州市海珠区琶洲大道68号华新中心21楼
    金腾奖视频号 金腾奖小红书号 监制:闫虹
    统筹:吴佳佳
    运营:朱倩仪 王赫萱 张芷莹 胡岚恩 小金
    新媒体:王贝贝 严洁 侯乐 鹅姐
    经纪:刘译遥 石征 曹凯月
    技术:张桐 黄天佑
    最终解释权归金腾奖主办方所有