SUPEREGO
作品详情
  • Details of the work 标题横线
    头像或者logo
    图片 吴恒
    城市:南京
    公司: 無1内建築設計事務所
    参赛作品: 尘光
    空间类型:公寓(150㎡以下)
    个人/公司简介:
    90后新锐设计师 無1内建築設計事務所 创始人 曾获荣誉: 2022安德马丁发现中国好设计 年度推荐设计师 2022北美PI设计大奖 室内设计·住宅类WINNER 2022亚洲青年设计之光(中国内地)TOP100 2022 NCA新商业空间设计师TOP10 2022南京40UNDER40 设计杰出青年 2022金住奖中国百杰人物 2022设计金陵24杰
    设计说明 | Design Instruction
  • 打开空间,让阳光住进来 创造无与伦比的通透性,让每个空间都有所关联,在熟悉的环境里捕捉光的形状,衍生想象中的美。 艺术是一种可以让生活有序的形式,思考本质延展空间形状,光影流连,自在如风。无论连榻而坐,还是窗边漫步,空间打破人们对客厅的固有印象,它是立体且温柔的,每一面都是另一种体验。 生活集中在这一个空间里,健身、品茶、分享、阅读…可以同时发生,无界的动线连接客厅区和餐厅区之间的联系,动与静的元素和谐共处。 时间的流逝悄然发生,日常优雅地嵌入现代结构,不寻常的事物得以形成。打破平面性,令共享与独处两者相融,空间的边界不断被模糊,形式始终为生活服务。 简单的色彩,漆上同样温柔的墙面,尽可能地将情感与诗意,囊括于游走的阳光、分明的结构中,当时间不断变化,但保留着本质的属性与意义。
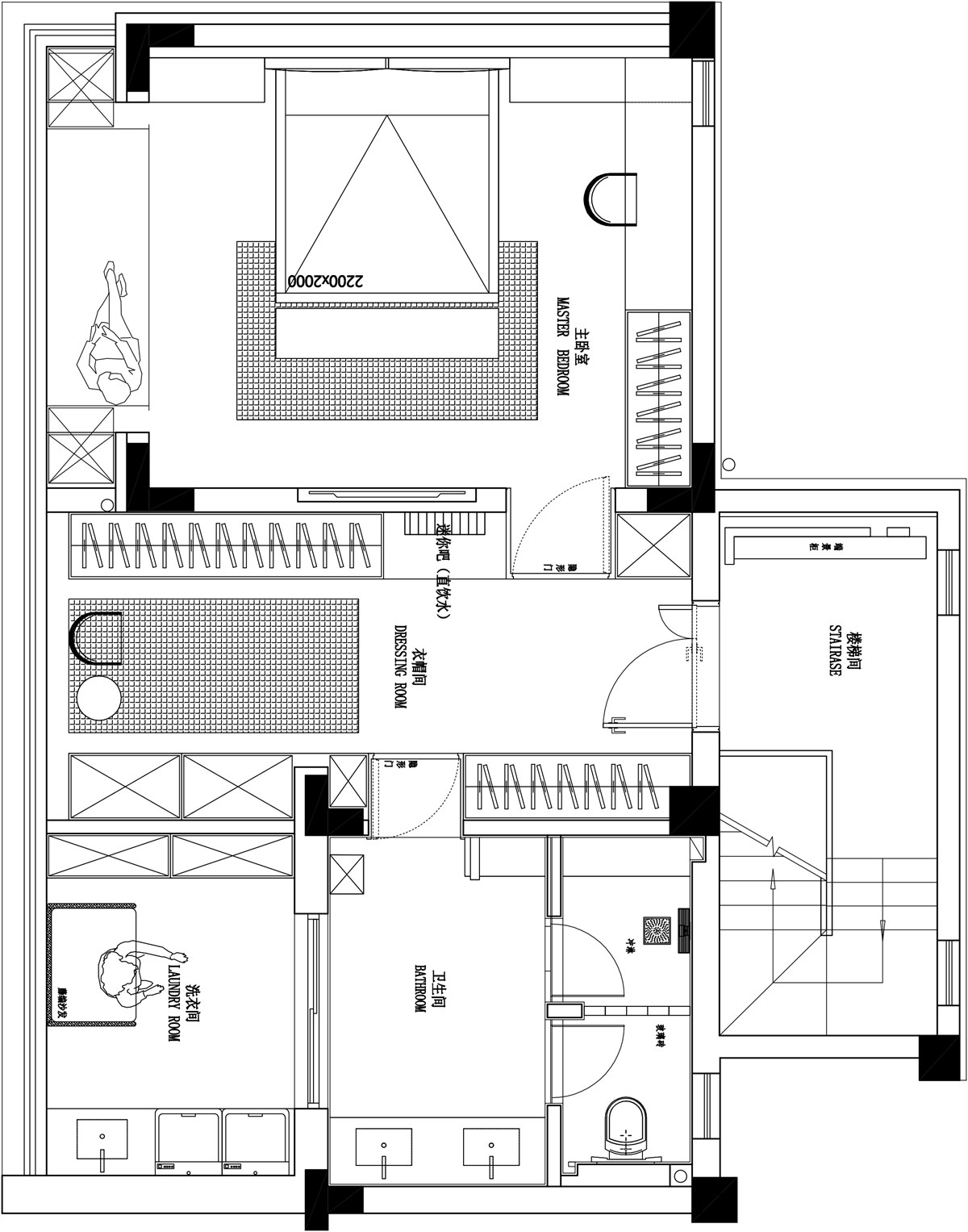
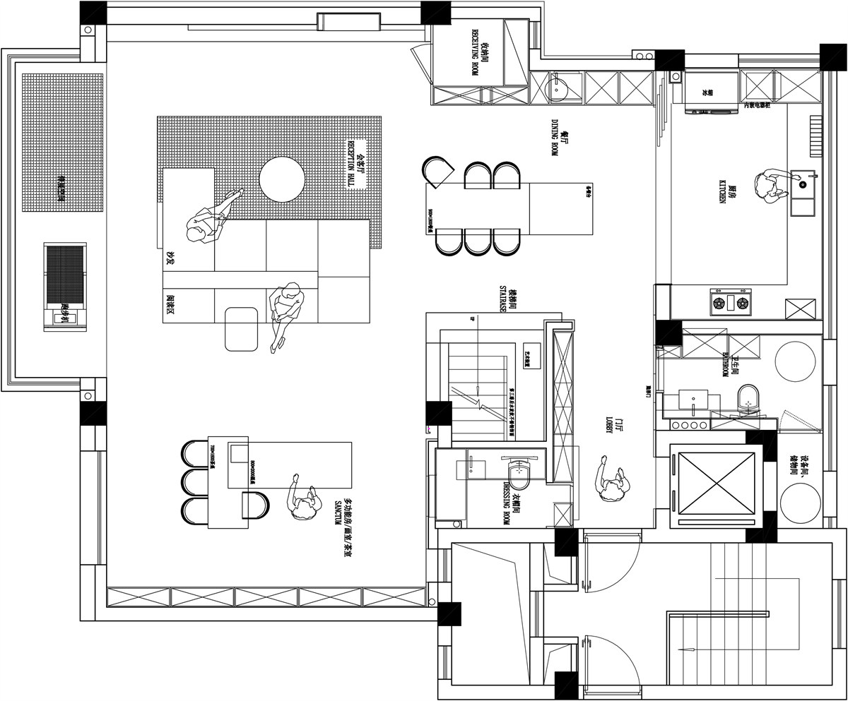
  • 图片
  • 图片
  • 图片
  • 图片
  • 图片
  • 图片
  • 图片
  • 图片
  • 图片
  • 图片
  • 图片
  • 图片
  • 图片
  • 图片
  • 图片
  • 图片
  • 图片
  • 图片
  • 图片
  • 图片
  • 图片
  • 图片
  • 图片
  • 图片
  • 图片
  • 图片
  • 图片
  • 图片
  • 图片
  • 图片
  • 图片
  • 图片
  • 图片
  • 上一个 下一个
    《金腾奖优秀作品年鉴》 私宅丨地产丨餐饮丨酒店丨办公丨商业丨公共丨产品丨公益丨人气 jintengAWARD(小金_金腾奖组委会) 广州市海珠区琶洲大道68号华新中心21楼
    金腾奖视频号 金腾奖小红书号 监制:闫虹
    统筹:吴佳佳
    运营:朱倩仪 王赫萱 张芷莹 胡岚恩 小金
    新媒体:王贝贝 严洁 侯乐 鹅姐
    经纪:刘译遥 石征 曹凯月
    技术:张桐 黄天佑
    最终解释权归金腾奖主办方所有