壹号半岛
作品详情
  • Details of the work 标题横线
    头像或者logo
    图片 重庆言正设计公司
    城市:重庆
    公司:重庆言正设计公司
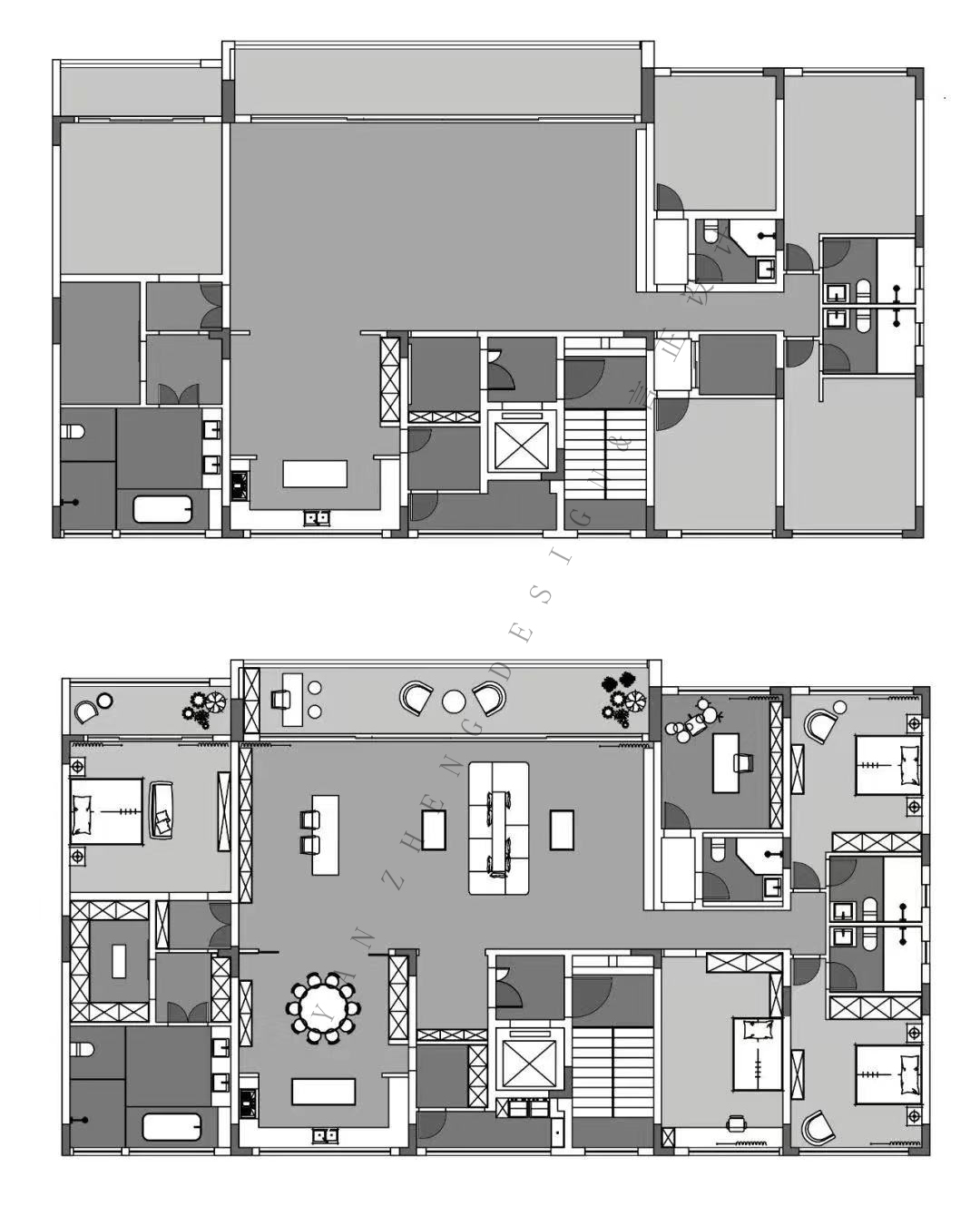
    参赛作品: 壹号半岛
    空间类型:公寓(150㎡以下)
    个人/公司简介:
    言正设计前身为个体于17年成立,于18年创办“言正设计装修大讲堂”至23年5月播放及阅读量达到5000万以上,创办宗旨是帮助千万人解决装修问题,为同频需求者做有内涵的设计,企业使命:为质美而生,言正设计通过不断更新迭代全案系统专注于提供集硬装设计、软装设计、施工为一体的高端个性化定制服务,旨在帮助用户还原设计同时更能有效的去控制整体资金,让落地无忧。
    设计说明 | Design Instruction
  • “缘起” 地标性的豪宅,会满足人们对圈层与身份的需求,亦提供一种艺术的滋养以及内在精神追求与归属感。重庆,一座城市的特性无需复刻,从中去探寻一种适合它又能引领未来的方式,去演绎。 此业主最早是在20年通过言正的知识输出而结识,最开始计划装独栋别墅后面由于重重原因被搁置;一年后启动了此套大平层的改造计划,在对比多个设计师后未合心意从而联系到我们,由于有以前的沟通记忆很快能够相互GET到所要的点,从而顺理成章的达成合作。
  • 图片
  • 图片
  • 图片
  • 图片
  • 图片
  • 图片
  • 图片
  • 图片
  • 图片
  • 图片
  • 图片
  • 图片
  • 图片
  • 图片
  • 图片
  • 图片
  • 图片
  • 图片
  • 图片
  • 图片
  • 图片
  • 图片
  • 图片
  • 图片
  • 图片
  • 图片
  • 图片
  • 图片
  • 图片
  • 图片
  • 图片
  • 图片
  • 图片
  • 图片
  • 图片
  • 图片
  • 图片
  • 上一个 下一个
    《金腾奖优秀作品年鉴》 私宅丨地产丨餐饮丨酒店丨办公丨商业丨公共丨产品丨公益丨人气 jintengAWARD(小金_金腾奖组委会) 广州市海珠区琶洲大道68号华新中心21楼
    金腾奖视频号 金腾奖小红书号 监制:闫虹
    统筹:吴佳佳
    运营:朱倩仪 王赫萱 张芷莹 胡岚恩 小金
    新媒体:王贝贝 严洁 侯乐 鹅姐
    经纪:刘译遥 石征 曹凯月
    技术:张桐 黄天佑
    最终解释权归金腾奖主办方所有