东禾山晚
作品详情
  • Details of the work 标题横线
    头像或者logo
    图片 王中玮 场所特约推荐
    城市:上海
    公司: 王中玮工作室
    参赛作品: 东禾山晚
    空间类型:公寓(150㎡以下)
    个人/公司简介:
    王中玮  高级室内建筑师,中国建筑装饰协会杰出青年设计师,王中玮工作室创始人 上海工程技术大学客座讲师  从业年限15年。 坚持以人为本,实用至上,从空间角度出发解决问题,寻找适合建筑特性的最佳解法,从而达到居住者与空间载体的双向平衡。 用现代设计语言诠释空间,倡导中国人自己的“当代轻奢”理念。 获奖经历 2016~2017年度中国室内设计50强杰出青年设计师 2017营造家奖铜奖 2018营造家提名奖 2019M+中国高端室内设计大赛 最佳色彩奖 2019M+中国高端室内设计大赛全国赛Top30 2019 pchouse award中国私宅设计大赛 100位杰出私宅设计师 2019 pchouse award中国私宅设计大赛 上海榜 top10      2020 pchouse award中国私宅设计大赛 100位杰出私宅设计师 2020 pchouse award中国私宅设计大赛 上海榜 top10    2020 营造家Future 50 入选人   2020 全国榜40under40 入选人 2021 pchouse award中国私宅设计大赛 上海榜 top10      2021 pchouse award中国私宅设计大赛 100位杰出私宅设计师 2021 pchouse award中国私宅设计大赛 大户型金奖      2021 营造家奖 最佳大户型设计奖 2021 营造家奖 最佳复层空间金奖 2021 台湾金邸奖 复层空间优胜奖 2021 台湾金邸奖 单层空间优胜奖 2022 pchouse award中国私宅设计大赛 上海榜 top10 2022 台湾金邸奖 复层空间优胜奖 2022 台湾金邸奖 单层空间优胜奖
    设计说明 | Design Instruction
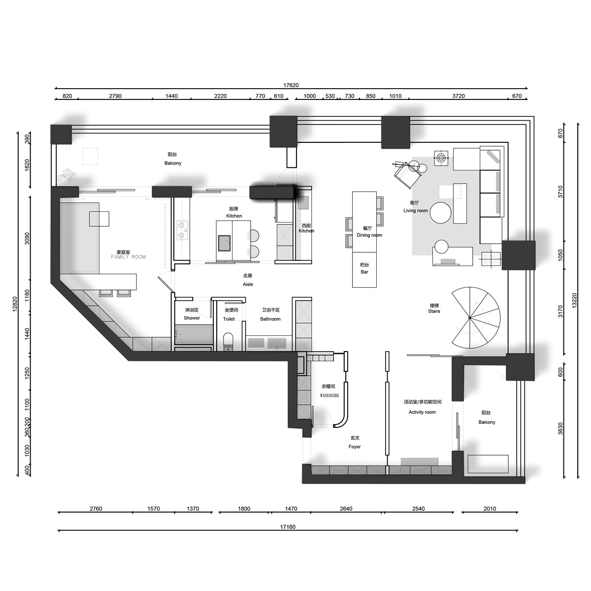
  • 项目所在的建筑本体有规整的方窗,挑空的部分由于视线所及部分更多,给人感受到的是更多的方正秩序感。我们遵循原建筑规正,秩序感强的特点,将这种特质延伸到室内,试图保留外部建筑的设计语言,再由室内植入雕塑感强,并有形体张力的弧形楼梯来打破平衡。 减少不必要的装饰,为的是更多的凸显出空间原本的优势及特点。 温润色调所表达的场所精神是一处具有气场和包容性的空间。 我们将楼梯边室打通,用移门作为隔断,平时移门打开成为楼梯的装饰背景,空间互通给孩子们更多奔跑成长的空间,必要时将移门闭合成为独立空间。 楼梯形态在整个空间内极具存在感,成为空间主体。 适当的减少硬装部分,为楼梯的形态装饰留出空间,这样就能很容易的在空间内凸显出来。 长餐区与西厨安排在采光与视线最好的位置,并且毗邻客厅,是业主家宴及会客有效的辅助。 入户走廊增设更衣室,为回家增加更多仪式感。墙面体块之间用透光亚克力区隔,不但为走廊增加了一些自然采光,也将整个走廊的“节奏”带来了变化。 具有秩序感的入户走廊,低处的灯光给夜晚营造氛围。 楼梯的设计上我们强调“雕塑感”和“形态张力”。试图用其中和室内空间的板正。 二楼的起居空间,我们将开放式阅读区及练琴区安排在此。目的是业主在此看书能兼顾到楼下孩子的情况。 偶尔在家弹琴能使优雅的琴声传遍整个空间。 建筑外部环境的“弧形场馆”为上海科技馆,我们将弧形楼梯设计于此也是希望能够与外部环境遥相呼应。
  • 图片
  • 图片
  • 图片
  • 图片
  • 图片
  • 图片
  • 图片
  • 图片
  • 图片
  • 图片
  • 图片
  • 图片
  • 图片
  • 图片
  • 图片
  • 图片
  • 图片
  • 图片
  • 图片
  • 上一个 下一个
    《金腾奖优秀作品年鉴》 私宅丨地产丨餐饮丨酒店丨办公丨商业丨公共丨产品丨公益丨人气 jintengAWARD(小金_金腾奖组委会) 广州市海珠区琶洲大道68号华新中心21楼
    金腾奖视频号 金腾奖小红书号 监制:闫虹
    统筹:吴佳佳
    运营:朱倩仪 王赫萱 张芷莹 胡岚恩 小金
    新媒体:王贝贝 严洁 侯乐 鹅姐
    经纪:刘译遥 石征 曹凯月
    技术:张桐 黄天佑
    最终解释权归金腾奖主办方所有