SHANGHAI DAYS
作品详情
  • Details of the work 标题横线
    头像或者logo
    图片 曾旗 场所特约推荐
    城市:上海
    公司: BEIGE STUDIO
    参赛作品: SHANGHAI DAYS
    空间类型:公寓(150㎡以下)
    个人/公司简介:
    设计杰出青年(2017-2018)40UNDER40(上海)设计杰出青年(2018-2019) iColor最佳室内设计奖 祝融室内设计奖 M+全国城市赛区TOP奖
    设计说明 | Design Instruction
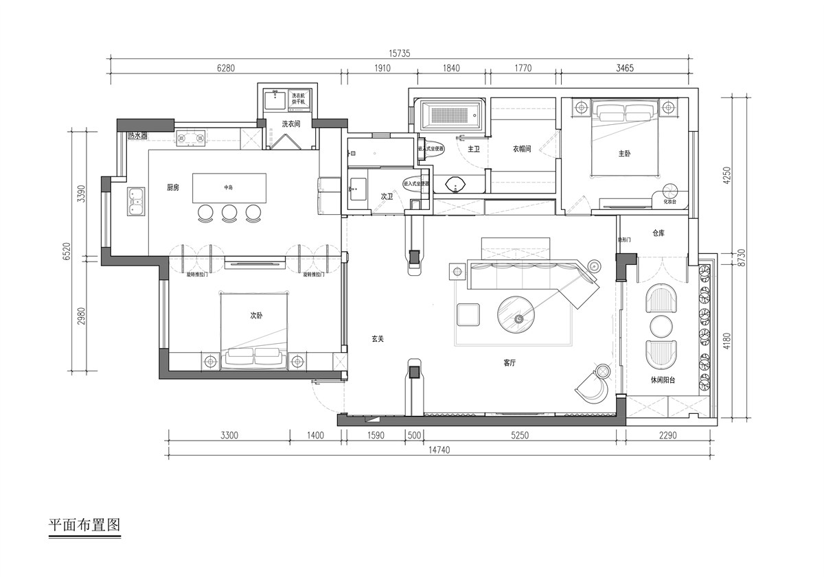
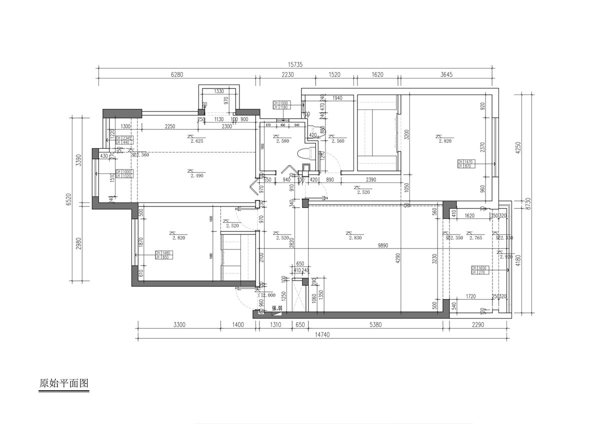
  • 南阳路公馆位于上海静安区南京西路附近属于闹中取静的生活居所。 老洋房,作为历史长河中的一部分,承载着无数的故事和记忆。它们见证了时代的更迭,社会的变迁,如今已成为城市文化的重要组成部分。此次设计用意在既尊重和保护老洋房的历史文化价值,同时融入现代设计理念,赋予其新的生命和活力。 老洋房通常具有丰富的历史背景和文化积淀,因此在设计过程中,我们首先对老洋房的历史和文化进行了深入的研究和分析,以了解其独特的特点和风格。同时,为了满足业主现代的生活方式和独特的审美需求,我们对老洋房的空间布局进行了优化,增加了功能区域,提高了居住舒适度。 通过合理的布局和精致的细节处理,让室内空间既充满历史感,又不失现代舒适。 我们将厨房和茶室了做了中轴门的处理方式,是整个空间环形流动,打破了原来沉闷的格局,茶室既可以独立也可以融合到厨房的中岛区域作为交互空间穿插使用,中西皆宜,就和上海一样具有包容度的摩登都市,在这个空间里即有中国的传统元素也有西方的文化产物。 在室内装修设计方面,我们遵循老洋房原有的建筑风格,采用ART DECO装饰元素和现代风格的融和手法进行了二次创作,材料的运用上如特质的金属质感、VINTAGE的进口家具和灯具、保留了原有的铁艺装饰等,以这些手段来留住老洋房的原汁原味的氛围和味道。 老洋房所使用的材料,如石头、木材、铁艺等,都具有一定的历史价值和艺术价值。在本设计中,我们保留了这些原有的建筑材料,并对其进行适当的修复和保护,以保留老洋房的历史痕迹。 与此同时,我们还将现代化设计元素和科技设备融入老洋房中,如安全防范系统、智能家居、物联网设备等,以提高居住的便捷性和安全性。这种设计理念让老洋房在保留历史底蕴的同时,也能满足现代生活的需求。 绿色的植物也是老洋房设计中不可或缺的一部分。业主也擅长插花艺术,其中进门的玄关花艺均为业主亲手创作,壁炉上方的油画是出自艺术家柴一茗老师之手名为《夜之乐园》律动的色彩和笔触给整个空间赋予了艺术的生命力。 总之,本设计旨在尊重和保护老洋房的历史文化价值,同时融入现代设计理念,赋予其新的生命和活力。通过优化空间布局、复古式室内装修、自然化绿化设计、原有材料保护以及现代化科技应用,我们让老洋房重新焕发出历史与现代交织的魅力,成为一处既能追溯历史,又能享受现代生活的理想居所。
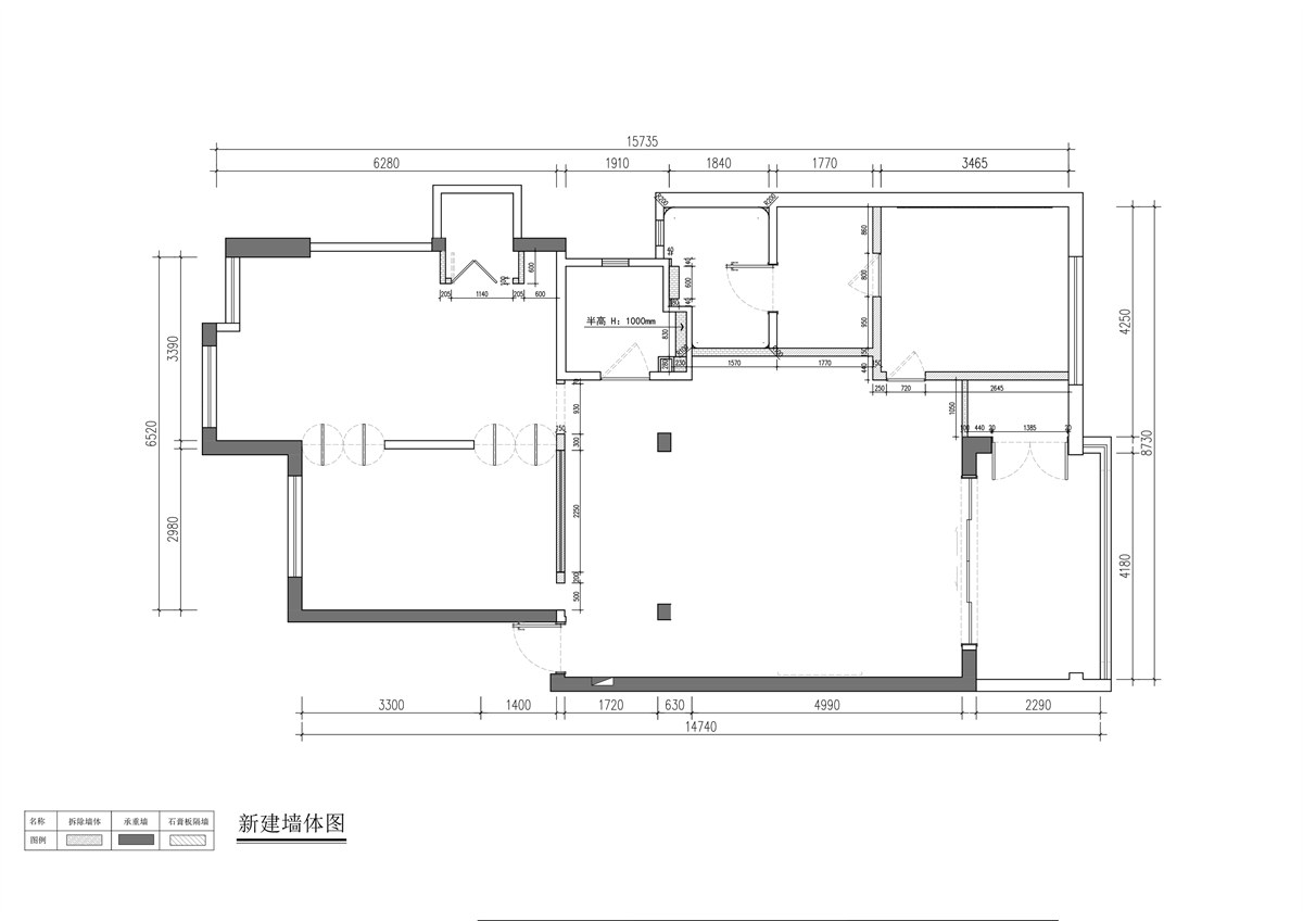
  • 图片
  • 图片
  • 图片
  • 图片
  • 图片
  • 图片
  • 图片
  • 图片
  • 图片
  • 图片
  • 图片
  • 图片
  • 图片
  • 图片
  • 图片
  • 图片
  • 图片
  • 图片
  • 图片
  • 图片
  • 图片
  • 图片
  • 图片
  • 图片
  • 图片
  • 图片
  • 图片
  • 图片
  • 图片
  • 图片
  • 图片
  • 图片
  • 图片
  • 图片
  • 图片
  • 图片
  • 图片
  • 图片
  • 图片
  • 图片
  • 图片
  • 图片
  • 图片
  • 图片
  • 图片
  • 上一个 下一个
    《金腾奖优秀作品年鉴》 私宅丨地产丨餐饮丨酒店丨办公丨商业丨公共丨产品丨公益丨人气 jintengAWARD(小金_金腾奖组委会) 广州市海珠区琶洲大道68号华新中心21楼
    金腾奖视频号 金腾奖小红书号 监制:闫虹
    统筹:吴佳佳
    运营:朱倩仪 王赫萱 张芷莹 胡岚恩 小金
    新媒体:王贝贝 严洁 侯乐 鹅姐
    经纪:刘译遥 石征 曹凯月
    技术:张桐 黄天佑
    最终解释权归金腾奖主办方所有