Wood and space
作品详情
  • Details of the work 标题横线
    头像或者logo
    图片 彭麗 橙设传媒特约推荐
    城市:温州
    公司: 大士空间设计
    参赛作品: 木与空间
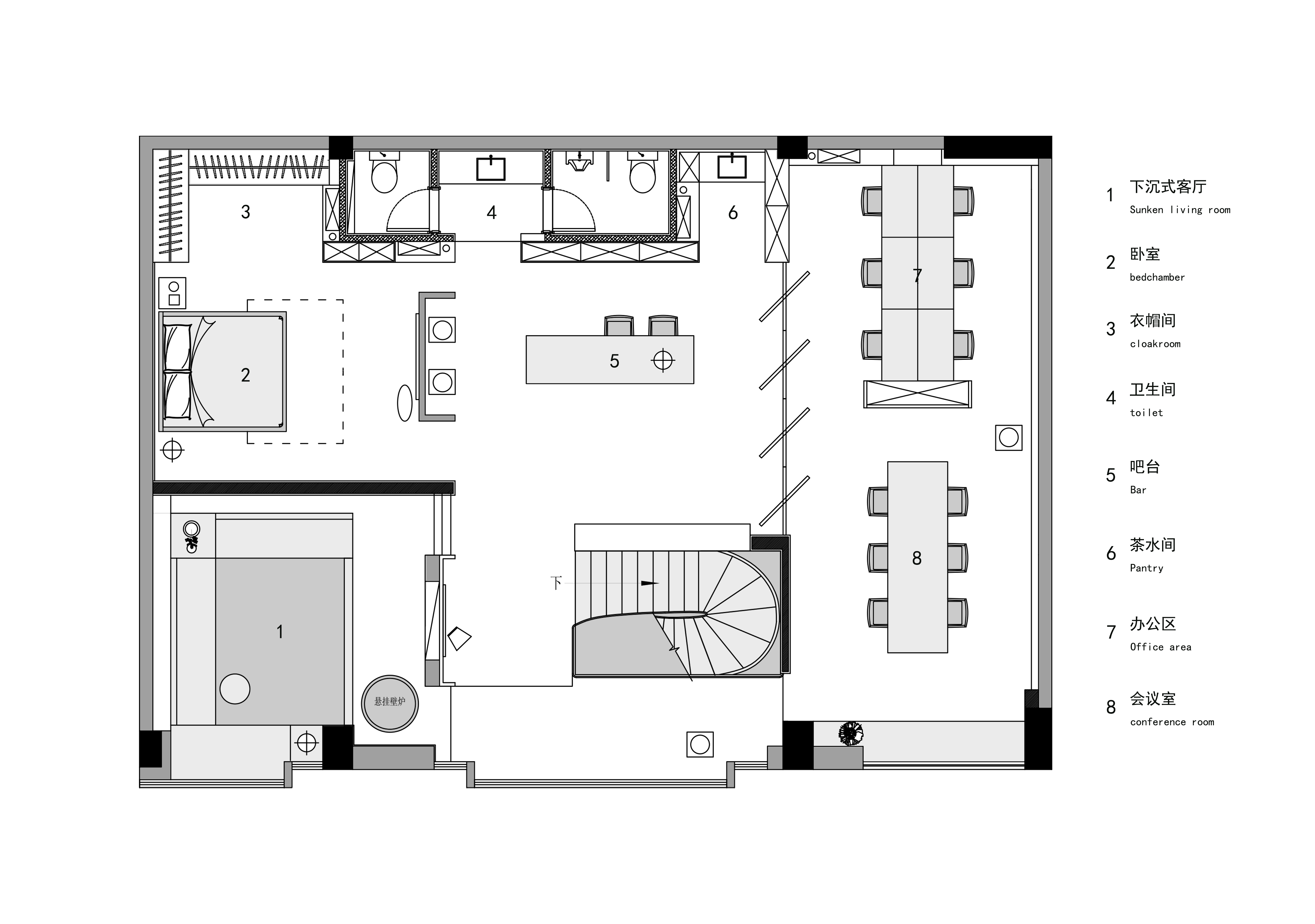
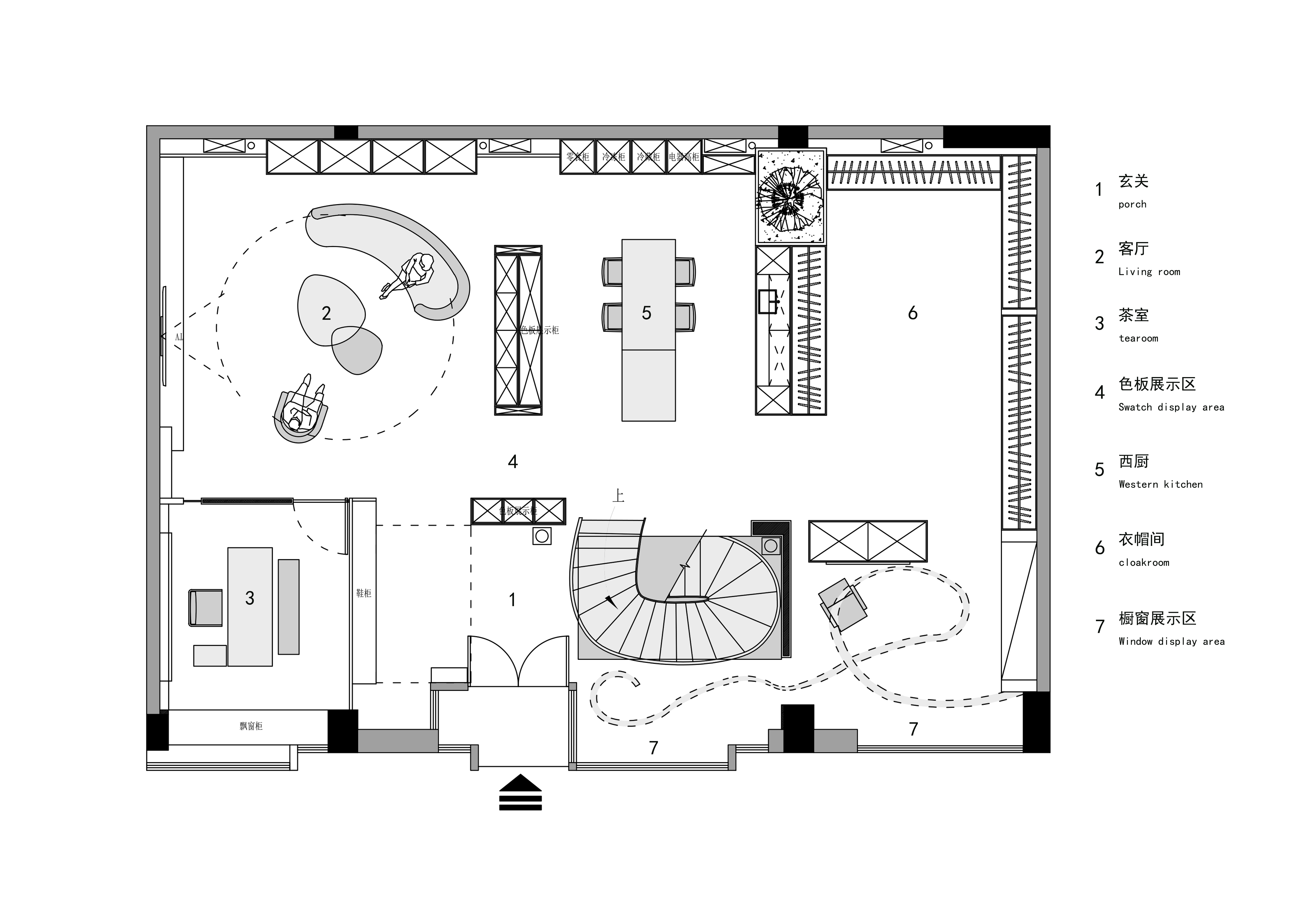
    空间类型:办公
    个人/公司简介:
    浙江大士室内设计有限公司创始人兼设计总监 「TA藝術」理念發起人 40 UNDER40 中国设计杰出青年(2018-2019) 温州大学瓯江学院客座教授 浙江大士室内设计有限公司创始人兼创意总监 CID中国建筑学会室内设计分会温州专委会副会长 温州建筑学会室内设计享泰会 常务副会长 中国室内装饰协会陈设艺术专业委员会温州代表处常务副秘书长中国室内装饰协会陈设艺术专业委员会温州代表处2016年度执行秘书长 从业20年,进修于亚太酒店设计清华大学研修班
    设计说明 | Design Instruction
  • 有的人,听一首歌就会落泪,看一场雨便能赋诗;也有的人,刚而不折心无所谓,世间万物皆如云烟。 木亦是如此,有的柔软温润可承载各种形状,有的坚如磐石,制成的桌椅经久耐用可抵风霜,木与空间的故事,从感知材质的柔与刚开始…… 本案为“木与空间”品牌的商业展厅,设计自探索木的可塑性为始,从展厅门头的楼梯处出发,通过如丝带般盘旋于空间中的木片与坚硬踏实的木梯结合,展示木材刚柔并济之美。 01 迭代 | 寻找都市展陈新形势 在信息快速更迭的时代中,产品的呈现形式对于展厅空间尤为重要,“为展示而展示”的“硬性呈现”所能表达的已经少之又少。而之于设计,需要考虑的则不仅仅是空间外在的美,而是如何在崭新的时代命题之下,寻找与快节奏都市生活相匹配,能被新兴人类所接受的展陈方式。 带着这一思考,设计试图表达一个完整的“家空间”概念,以归家为意识形态而造境,将产品从视觉化的符号表达,转变为身体感知的空间力场,传达一个从概念至实体,再由实体至意识的情境转化。 设计构建完整的空间洄游动线,家空间的场所随行走而一一呈现,以对生活的感知为引导,凭借内敛而感性的叙述方式,展开木与空间在新时代背景下的结合形式,达成隐而有力的思维灌输,将品牌产品与调性融于空间的每一处实质存在之中。 02 创新 | 以感官代替视觉呈现 在空间中融入智能设备,将生活的便利性以可见的形式呈现。木作空间的展陈,不仅是其本身的表达,更应有与时代结合的思考,不断创新的能力,从而使得空间不再是死板的外向型表达,还有内在的提升与创造。 给到顾客的,是对全新生活理念的灌输,以及未被探索的生活方式的呈现。 空间随窗帘的开合呈现内与外两种形式,得益于沿街而设的位置,窗外的行道绿植形成天然的观景,纳入空间意向中,如同一个外置花园,随楼梯的扭转,窗景被隔成不规则的块面,赋予整体空间生动而有力量的感知。 在一二层的连接中,以身体感知的内与外而界定,展品被融合进空间的使用功能中,不止是桌椅座具,同时亦是墙体门窗,储物与隔断。 迎面而来由各种木材拼合而成的背景,作为二层起始的初印象,展陈区域被打碎,揉捏在空间不经意的位置,内退的表达带来沉浸的可能,留人驻足。 03 沉浸 | 向内探寻心生 比起空间的趣味性探索,设计师更倾向于构建向内的沉浸式感官体验,窗景绿植,软膜天窗,模仿自然的情境,打造舒畅而通达的感受,引入入座之后,注重精神的餍足,在林立的楼宇中,得享片刻山林旷谷的意趣。 区域之间,隔而不断,从而得到动线的最大优化与不同空间中的透视,用层叠的形式,构成空间的立面,在平面的视线描述下,反馈为具有层次性的场景搭建,空间之间,交错延伸,最大化满足空间展陈的需求。 隔,透,叠的艺术被诠释于空间中,在实质功能得到满足之后,设计不断探寻精神层次的富饶。引光入室,在最大化利用外在自然光线之后,通过仿天井的形式造天光,空间得以在立面的层级上,不断向外延展。 空间以结构的语言 诠释文字也述不尽的话 看似静默无言,却不断以内退的形式 将品牌所要表达的,浸润于人的意志中
  • 图片
  • 图片
  • 图片
  • 图片
  • 图片
  • 图片
  • 图片
  • 图片
  • 图片
  • 图片
  • 图片
  • 图片
  • 图片
  • 图片
  • 图片
  • 图片
  • 图片
  • 图片
  • 图片
  • 图片
  • 图片
  • 图片
  • 图片
  • 图片
  • 图片
  • 图片
  • 图片
  • 图片
  • 图片
  • 图片
  • 图片
  • 图片
  • 图片
  • 图片
  • 图片
  • 图片
  • 图片
  • 图片
  • 图片
  • 图片
  • 图片
  • 上一个 下一个
    《金腾奖优秀作品年鉴》 私宅丨地产丨餐饮丨酒店丨办公丨商业丨公共丨产品丨公益丨人气 jintengAWARD(小金_金腾奖组委会) 广州市海珠区琶洲大道68号华新中心21楼
    金腾奖视频号 金腾奖小红书号 监制:闫虹
    统筹:吴佳佳
    运营:朱倩仪 王赫萱 张芷莹 胡岚恩 小金
    新媒体:王贝贝 严洁 侯乐 鹅姐
    经纪:刘译遥 石征 曹凯月
    技术:张桐 黄天佑
    最终解释权归金腾奖主办方所有