A quiet corner
作品详情
  • Details of the work 标题横线
    头像或者logo
    图片 邱琼瑶 橙设传媒特约推荐
    城市:温州
    公司: 与上设计
    参赛作品: 一隅宁静
    空间类型:公寓(150㎡以下)
    个人/公司简介:
    与上设计 创始人/设计总监 设计范围涵盖私宅及商业空间设计。创始人邱琼瑶女士从 2008年踏入室内设计行业,于 2020 年正式成立“与上设计” 。 与上,意为向好的事物靠近,是一个过程。 我们秉承专注、 纯粹、谦和的态度做人做事。人是空间的主体,应以人为本,围绕着生活方式和真实需求展开。同时, 我们坚信善待自然,自然会向我们反馈出最好的色彩与结构。不忘初心,用设计提升幸福感,让家成为全世界最舒适的地方。
    设计说明 | Design Instruction
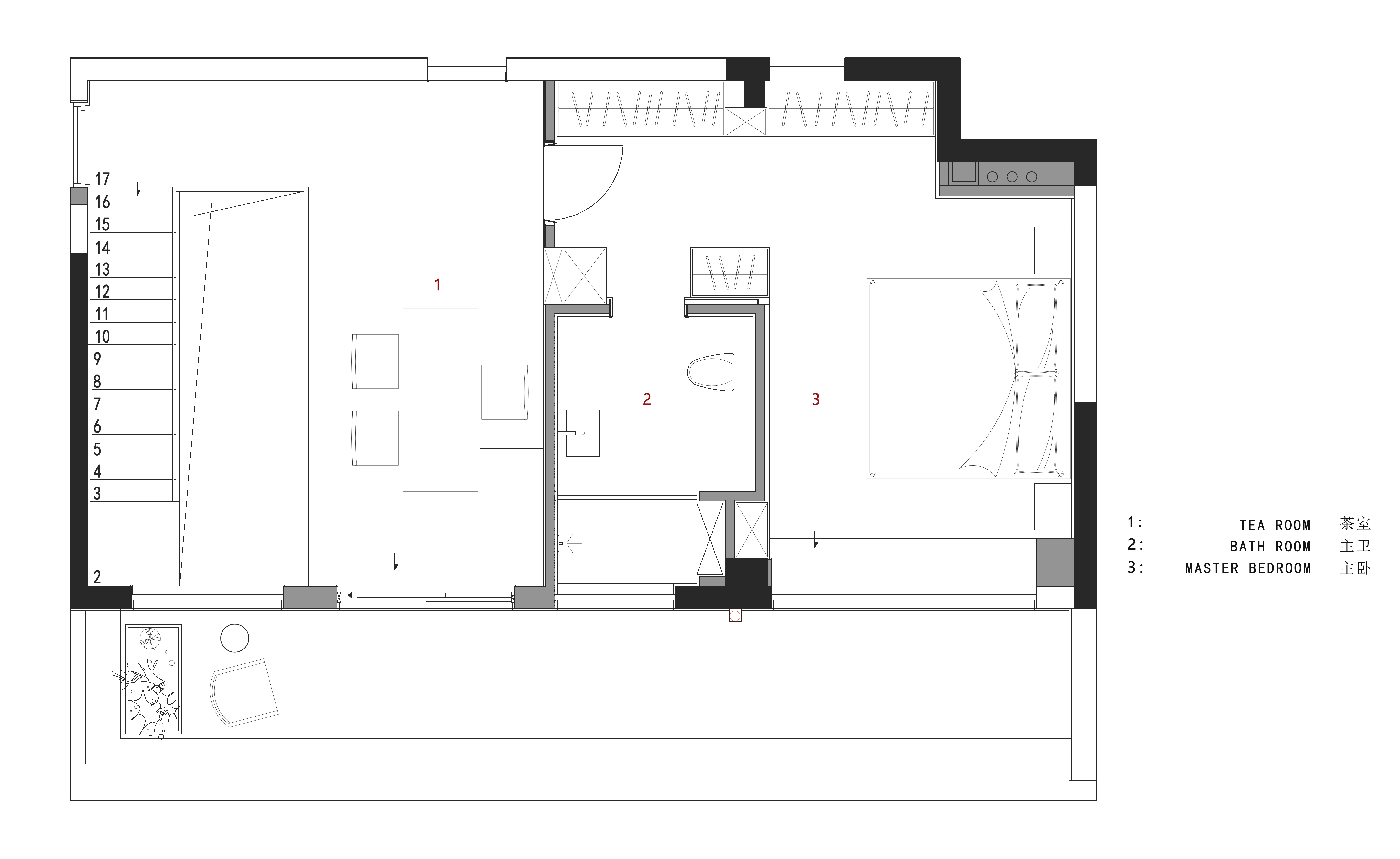
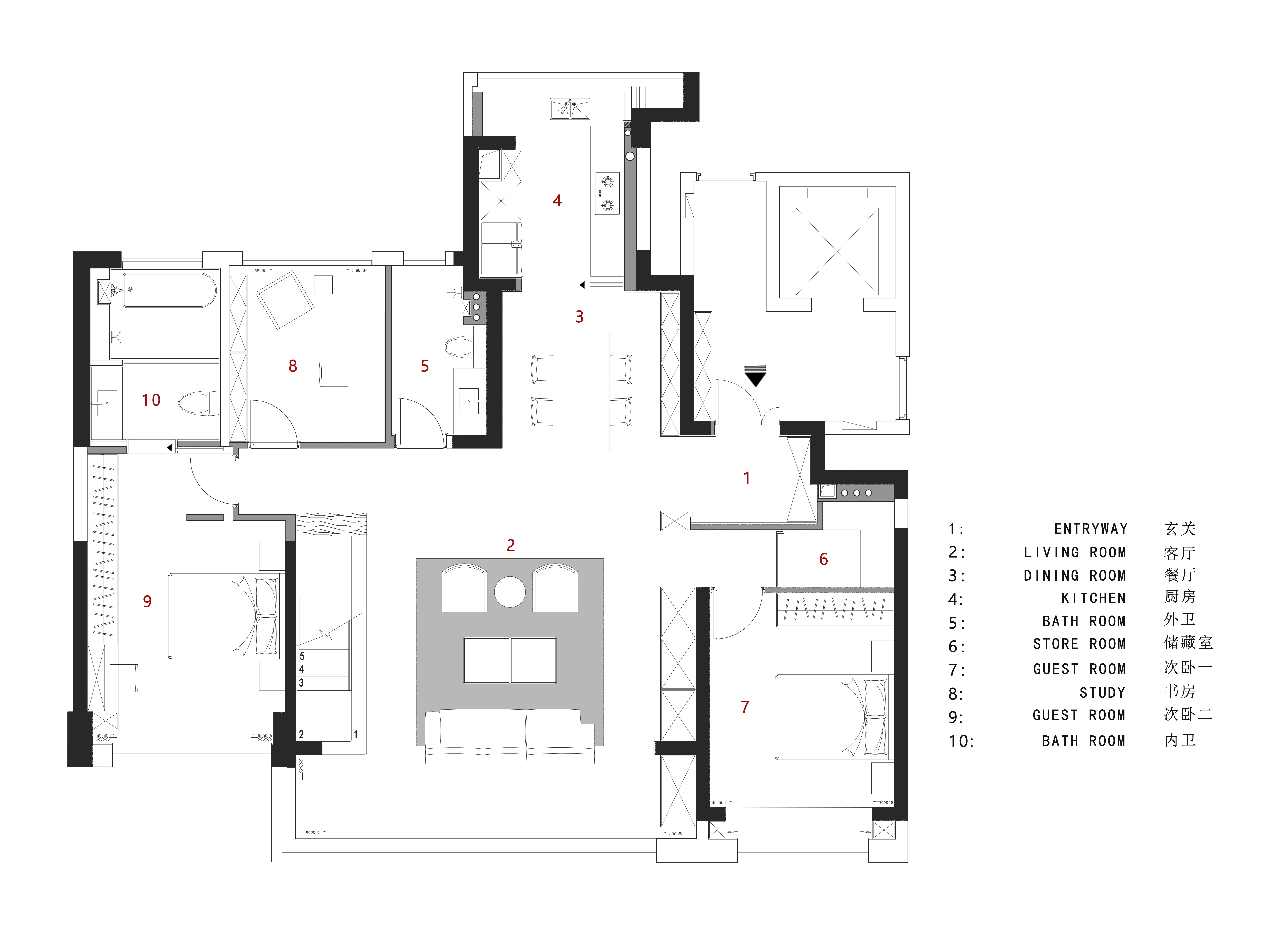
  • 本案复式房屋原为精装房设计,但囿于楼梯空间小,二楼格局利用率低等弱点,无法达到业主对生活品质的要求。因此设计师决定全拆后重新规划空间,循着重塑的设计思路,改善原有的空间格局,为业主打造一个具有生活质感的品质空间。 楼梯是变动后重新设计而成,突破传统的造型和稳重的用材,给予空间现代主义的时尚质感。此外,简约的占用面积减少了光线的遮蔽,提高了底部空间的采光度。同时搭配以异形灯饰作为补充光源,实用和美观兼具。 穿透,意味着对空间的整合,它有着一分为二的效果,可利用光影切割出明与暗的效果,通过线条塑造出动与静的状态。这是一种自然呈现的力量感,在被包裹的私域内,空间的层次无限延展,引发不动声色的坚定形象。因此,以材质,色调,家具为主导的空间,便成为一种视觉的享受。 空间是不设局限的,开放与闭合之处,都是自由的表达。设计师希望场所是富有感情的存在,在材料的选取上颇为考究。我们认为,建材的质感不仅是指尖处激起的小型风暴,也是链接物与人的峡口。于是,场景的设置便可突破物体的表象,以至心灵。 俯仰之间,关于空间的构图有了新的解读。视角的切换,让平静的生活有了更多惊喜的存在。它包含场景的隐语,是高度位移时情感的升温,人与建筑的沟通便常常发生于此般时刻。 光,以有形的路径穿透空间,落于木色桌面。被捕获的形态与茶室的儒雅气息调和折中,使人得到心灵的沉淀。 平静居所,是自在生活延伸的细碎美好。空间游走的动线,皆融洽于立面的转合。直线的搭配,黑色和原木板面的切换,让日常的情景变得灵动且饱满,情感的波动和身体触感于此引发新的思考, 内向型的私密空间,是区别近与远的界限。它是产生联系的场所,在设计之中,以乳白色调营造空间的温暖意境,感官被无限放大,时尚元素的加持让空间沉稳而不失优雅。 当我们捕捉生活中关于幸福的画面,无意之中也在构建家的场景。收起浓墨重彩的工具,转向独居质感的简约色调,一隅宁静的气息便油然而生。 视界延续,无声寻境
  • 图片
  • 图片
  • 图片
  • 图片
  • 图片
  • 图片
  • 图片
  • 图片
  • 图片
  • 图片
  • 图片
  • 图片
  • 图片
  • 图片
  • 图片
  • 图片
  • 图片
  • 图片
  • 图片
  • 图片
  • 图片
  • 图片
  • 图片
  • 图片
  • 图片
  • 图片
  • 图片
  • 图片
  • 图片
  • 图片
  • 图片
  • 图片
  • 图片
  • 图片
  • 图片
  • 图片
  • 图片
  • 图片
  • 图片
  • 图片
  • 图片
  • 图片
  • 上一个 下一个
    《金腾奖优秀作品年鉴》 私宅丨地产丨餐饮丨酒店丨办公丨商业丨公共丨产品丨公益丨人气 jintengAWARD(小金_金腾奖组委会) 广州市海珠区琶洲大道68号华新中心21楼
    金腾奖视频号 金腾奖小红书号 监制:闫虹
    统筹:吴佳佳
    运营:朱倩仪 王赫萱 张芷莹 胡岚恩 小金
    新媒体:王贝贝 严洁 侯乐 鹅姐
    经纪:刘译遥 石征 曹凯月
    技术:张桐 黄天佑
    最终解释权归金腾奖主办方所有