Empty and silent
作品详情
  • Details of the work 标题横线
    头像或者logo
    图片 施强虹 橙设传媒特约推荐
    城市:温州
    公司: 康居装饰设计
    参赛作品: 阒然无声
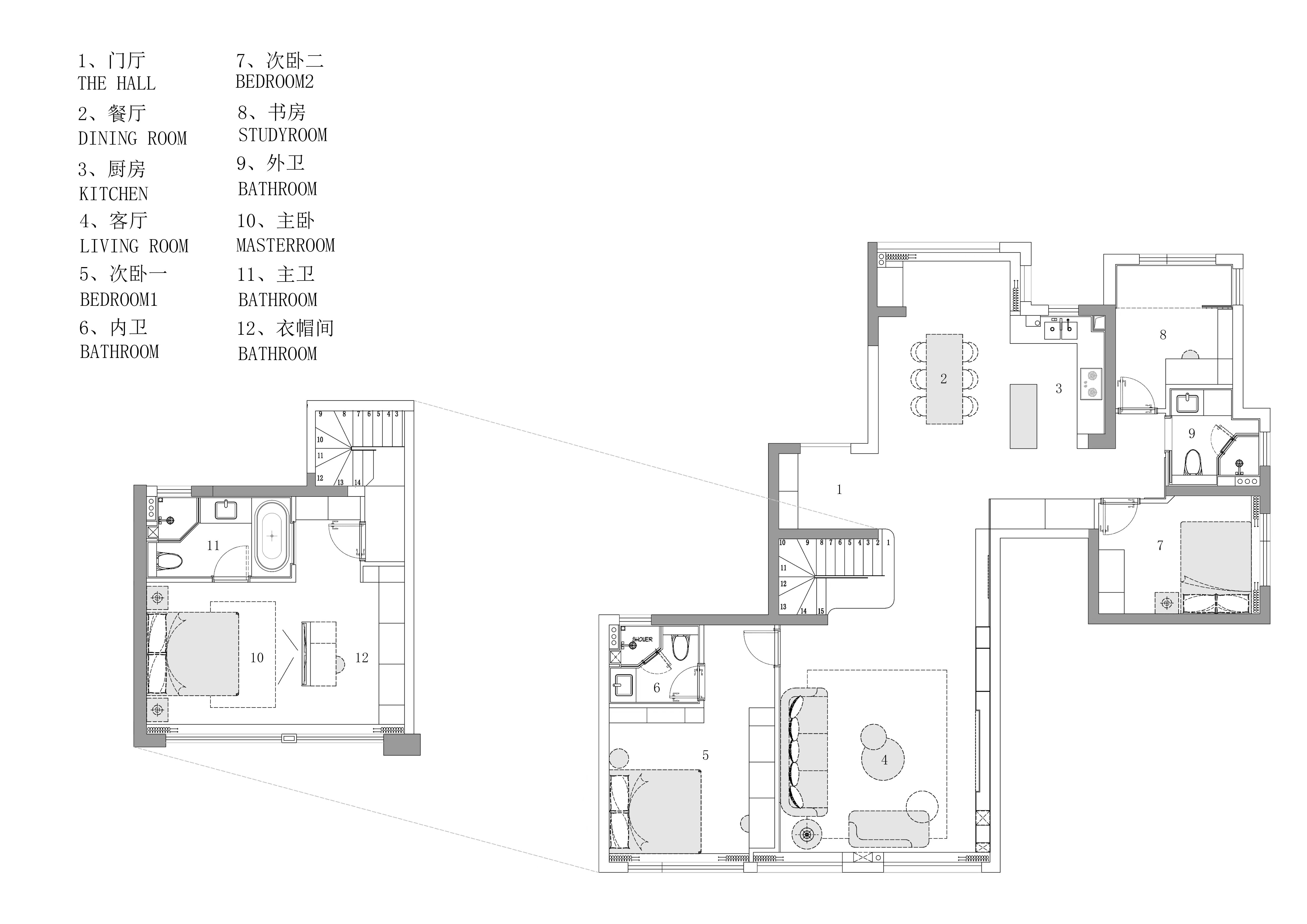
    空间类型:公寓(150㎡以下)
    个人/公司简介:
    康居装饰设计 设计总监 2020 年 ARTE MUNDI 美学设计大赛-人文设计师奖 2019 年 最美雅奢空间设计奖-年度优秀设计奖 2019 年 第七届“ID+G”金创意奖-家居空间奖 2019 年第 13 届大金内装设计大赛-浙江区新锐奖 2018 年中国建筑装饰行业“艾舍奖”-十佳全案设计师 2018 年 华鼎奖住宅公寓空间-银奖 2017 年 中国室内设计百强新锐设计师 2017 荣 华鼎奖住宅公寓空间-银奖 2016 年 中国营造空间设计峰会-创新设计成就奖
    设计说明 | Design Instruction
  • 在人口密集的城市里 有这样一个宁静的去处,像是上帝的苦心安排。 ——史铁生 简约的品质空间 空间属性的确立,从具体的生活方式入手思考。 设计师迎合居住方两位年轻夫妻的生活调性,营造静谧简约,且不失品质的空间。 灰色瓷砖通铺,配合木饰面营造温暖质感。设计师将空间打通,纳入阳台,形成一层敞开的公区关系,让动线更为流畅舒适,同时强化空间的沟通属性,让居住的过程变得更鲜活有趣。 明暗交错的艺术感 爱马仕丝巾装裱入画,空间富于温柔的艺术感。完全打开的空间关系也让阳光得以畅通地留存于内。 通过不同的色彩关系诠释功能的区分,在流动平面中划分层次感,从而空间呈现为“明-暗-明”的交错场景体验。 设计师善用元素形成不同功能区域间的联系。 在玄关处置入透光大理石增强空间感,同时埋下整体性的线索,让人在步入的过程中,目光随不时出现的透光大理石逡巡,引领向内部的结构。 灯具的选择也同样遵循着这一原则,粼粼光影散射而来,艺术漆的斑驳质感渐明,契合着空间元素的统一。 而石材地面与楼梯木质踏步的过渡,也暗示着随着阶梯步入二层,即将转入居住者的私密场域。 选择透明玻璃作为扶手,在相对逼仄的楼梯空间里,扩大感官上的尺度。 自一层衍射而来的光线映入,随空间的上升而逐渐黯淡,在极简化的空间里,设计师需要思考如何通过最自然的存在去建立空间的美感,比如光线的走向,或是结构间隔与透的关系,甚至是一个边角的处理…… 材质的连贯性 以半墙的形式隔出卧室与更衣室的区分,同时不会破坏空间宽敞的视觉感受。 与一层客厅相同纹理的大理石隔墙,为空间注入流动的感染力,不再是纯粹的平铺直述,在极致的简约中,嗅查值得推敲的品质细节。 眠鸥宿鹭,阒然无声 在家中感受平静,抚慰奔波的纷繁 是设计私宅空间的意义
  • 图片
  • 图片
  • 图片
  • 图片
  • 图片
  • 图片
  • 图片
  • 图片
  • 图片
  • 图片
  • 图片
  • 图片
  • 图片
  • 图片
  • 图片
  • 图片
  • 图片
  • 图片
  • 图片
  • 图片
  • 图片
  • 图片
  • 图片
  • 图片
  • 图片
  • 图片
  • 图片
  • 图片
  • 图片
  • 图片
  • 图片
  • 图片
  • 图片
  • 图片
  • 图片
  • 图片
  • 上一个 下一个
    《金腾奖优秀作品年鉴》 私宅丨地产丨餐饮丨酒店丨办公丨商业丨公共丨产品丨公益丨人气 jintengAWARD(小金_金腾奖组委会) 广州市海珠区琶洲大道68号华新中心21楼
    金腾奖视频号 金腾奖小红书号 监制:闫虹
    统筹:吴佳佳
    运营:朱倩仪 王赫萱 张芷莹 胡岚恩 小金
    新媒体:王贝贝 严洁 侯乐 鹅姐
    经纪:刘译遥 石征 曹凯月
    技术:张桐 黄天佑
    最终解释权归金腾奖主办方所有