Silent conception
作品详情
  • Details of the work 标题横线
    头像或者logo
    图片 施强虹 橙设传媒特约推荐
    城市:温州
    公司: 康居装饰设计
    参赛作品: 无声的构想
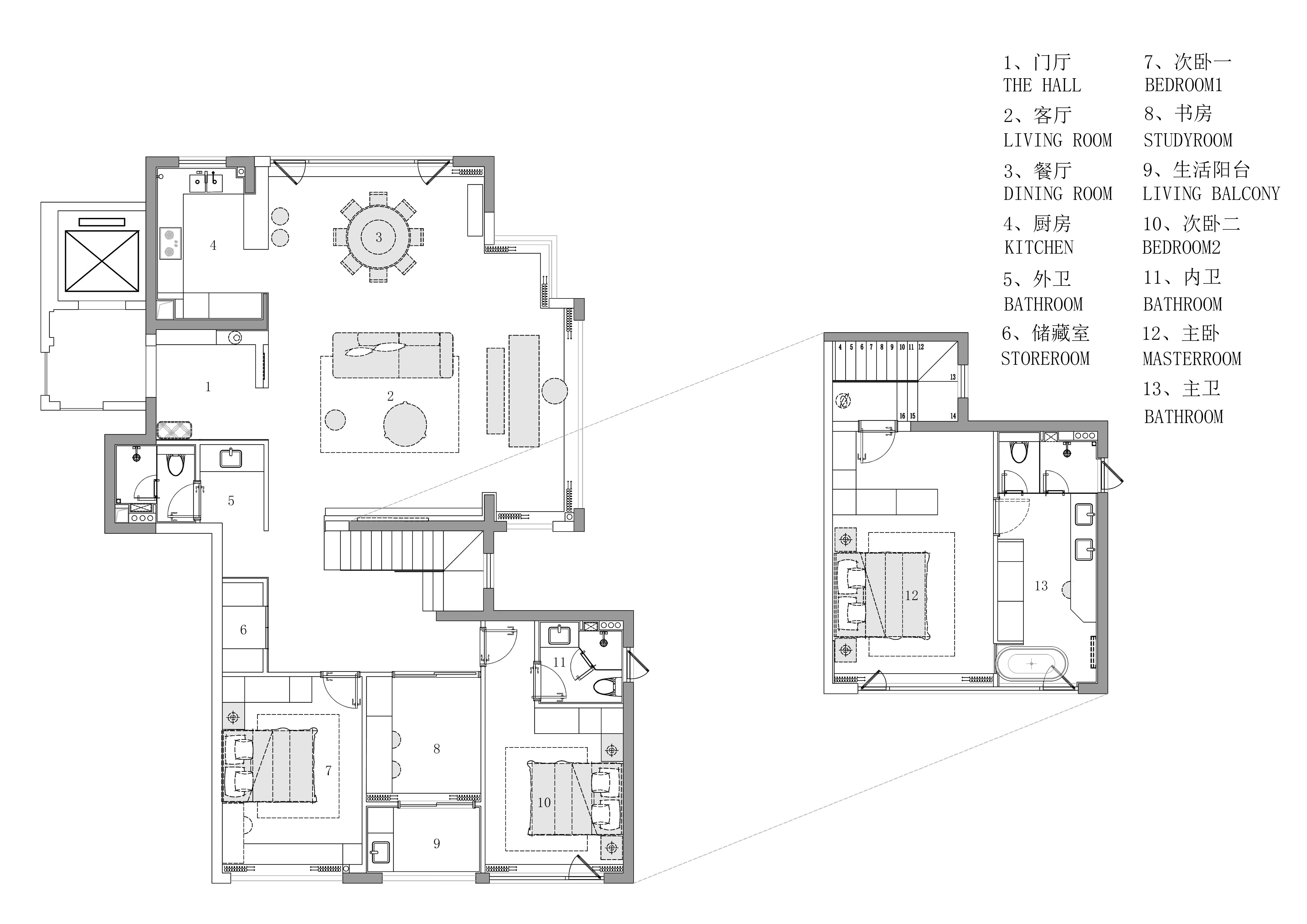
    空间类型:公寓(150㎡以下)
    个人/公司简介:
    康居装饰设计 设计总监 2020 年 ARTE MUNDI 美学设计大赛-人文设计师奖 2019 年 最美雅奢空间设计奖-年度优秀设计奖 2019 年 第七届“ID+G”金创意奖-家居空间奖 2019 年第 13 届大金内装设计大赛-浙江区新锐奖 2018 年中国建筑装饰行业“艾舍奖”-十佳全案设计师 2018 年 华鼎奖住宅公寓空间-银奖 2017 年 中国室内设计百强新锐设计师 2017 荣 华鼎奖住宅公寓空间-银奖 2016 年 中国营造空间设计峰会-创新设计成就奖
    设计说明 | Design Instruction
  • 内与外的交互 客厅色彩以黑白灰入手,并不张扬的颜色架构给予空间整洁而宽敞的观感。整体虽少设摆件,却于细节处作精心的修饰。一切遵循简约的设计手法,大片的墙面留白,给想象留有余地,也给日后的收纳保存足够的空间。 本案套房的弱点在入户即见窗,为了提高空间的私密性,在设计时以玄关拉长视觉,将入户的墙板收窄。于是空间被有序整合,形成内与外两种状态。自然而然地,客厅等功能性空间被有目地包裹住,原本一览无余的水平区域,在设计师的改造下,形成错落有致,拨云见雾的层次和效果。 无声胜有声 风炉煮茶,霜刀剖瓜。茶室,是得闲的时刻寄留的精神之所,也是修身养性的第一选择。墨黑的桌面,内嵌的茶盏,以及竹叶的修饰,让空间禅意丛生。沉浸在无声的自我世界里,却有余音绕梁的艺术效果。 金属元素的融合 就餐区置于客厅附近,既方便了走动,也将空间利用做到了最大。厨房与就餐区以白色岛台相隔,卫生与安全皆可具备。金属银包裹的餐桌融合了现代气息,弧形吊灯以及圆润的桌面柔和了顶层线条的硬朗,呈现出进退可取的空间维度。 留白的自由观感 工作台的设计更多重视收纳的空间,上层作柜式的隔间,有效的解决了杂物的储存问题,顶灯并未采取繁杂的吊灯设计,而是遵循整体的简约风格,采用嵌入式射灯,不仅在视觉上放大空间,亦能减少外物的干扰。 楼梯台阶采用原木铺就,悬浮的状态形成空间的轻盈感,与大块的玻璃相互映衬,营造出互动式的生活场景。 自洽的生活美学 生活的处世之道,得之心而寓于情,拥有一个静谧的空间,不仅能改善睡眠的质量,亦能提升生活的幸福指数。主卧采用黑白灰的色彩搭配,低饱和度的颜色在空间中形成张弛有度的气场,侧面的花纹肌理渲染出星河的斑斓质感。看似毫无章法的线条走向,实则形散而神聚,勾勒出空间的艺术氛围。 以水磨石墙面作为空间的过渡,自然的转到浴室的板块。或许正是不被引起重视的场所,才能彰显主人对于生活品味的追求。于是,设计师以重工的手法打造出奢华的效果,延展的超长洗手台面,豪华浴缸配置,高级的质感让洗浴仪式感升温,放松的时刻,我们逐渐意识到生活原本就是一趟享受的旅程。 当阳光洒落窗前,便宣告着一天的伊始。畅通的光线经由巨大的落地窗投入室内,饱和了空间的亮度,形成通达明亮的视觉效果。同时,低饱和度的卧室风格配以色彩鲜明的像素画,于沉静中开出一抹绮丽的花,既是色彩的碰撞,也是心情的更叠。
  • 图片
  • 图片
  • 图片
  • 图片
  • 图片
  • 图片
  • 图片
  • 图片
  • 图片
  • 图片
  • 图片
  • 图片
  • 图片
  • 图片
  • 图片
  • 图片
  • 图片
  • 图片
  • 图片
  • 图片
  • 图片
  • 图片
  • 图片
  • 图片
  • 图片
  • 图片
  • 图片
  • 图片
  • 图片
  • 图片
  • 图片
  • 图片
  • 图片
  • 图片
  • 图片
  • 上一个 下一个
    《金腾奖优秀作品年鉴》 私宅丨地产丨餐饮丨酒店丨办公丨商业丨公共丨产品丨公益丨人气 jintengAWARD(小金_金腾奖组委会) 广州市海珠区琶洲大道68号华新中心21楼
    金腾奖视频号 金腾奖小红书号 监制:闫虹
    统筹:吴佳佳
    运营:朱倩仪 王赫萱 张芷莹 胡岚恩 小金
    新媒体:王贝贝 严洁 侯乐 鹅姐
    经纪:刘译遥 石征 曹凯月
    技术:张桐 黄天佑
    最终解释权归金腾奖主办方所有