note
作品详情
  • Details of the work 标题横线
    头像或者logo
    图片 王锵力 橙设传媒特约推荐
    城市:温州
    公司: 锵设计
    参赛作品: 锵调
    空间类型:公寓(150㎡以下)
    个人/公司简介:
    锵设计 设计总监/创始人
    设计说明 | Design Instruction
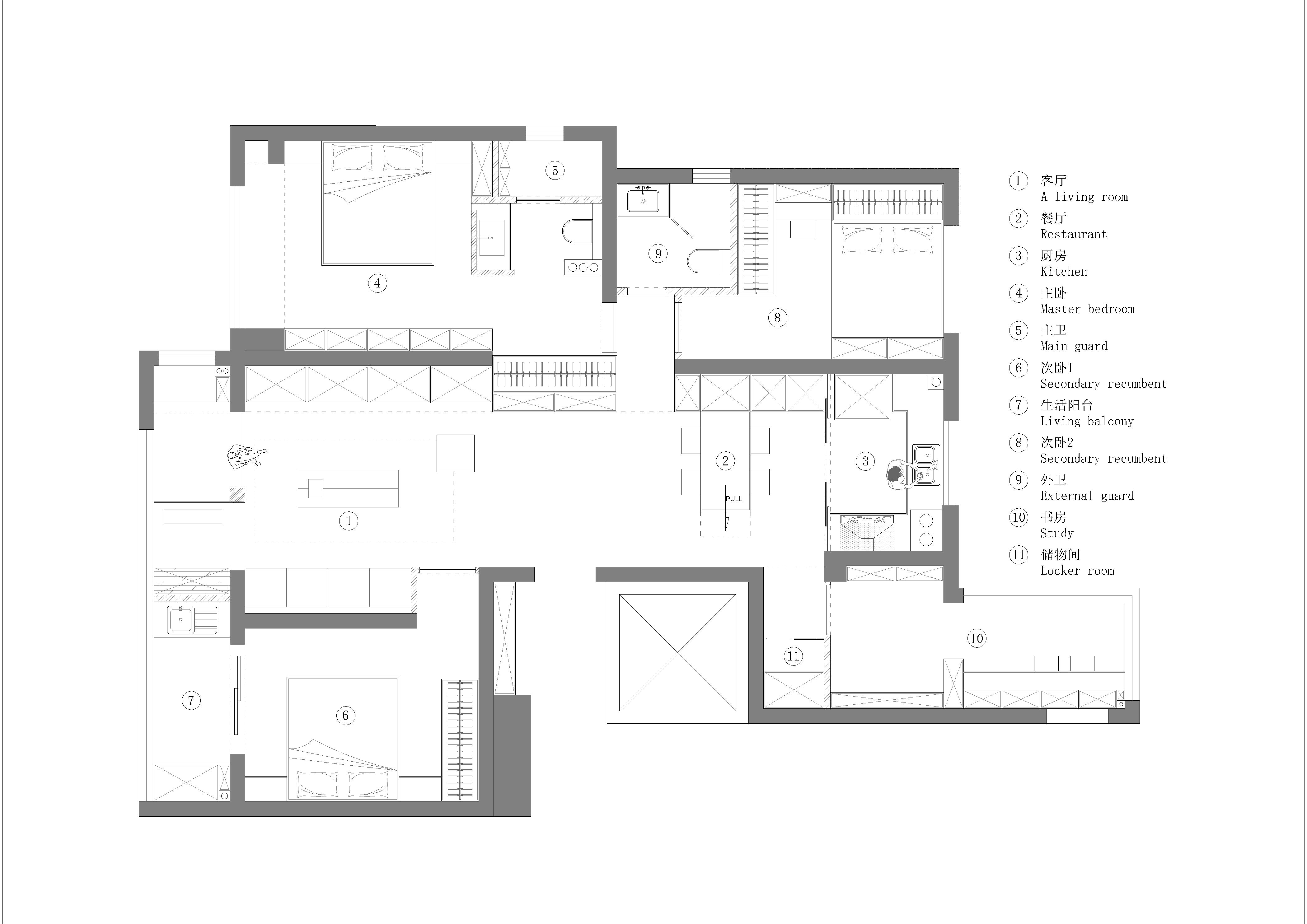
  • 当一个空间的设计,以完全自由的态度交付给设计师的时候,施展的手笔可以变得无限大。 如何取舍不断乍现的灵感创意,如何在主观想象与客户的被动接受中寻找平衡落点,设计不再围绕“个人”而逢迎,转而探讨对结构的重筑与人性的思考。 本案位于浙江温州,一个94年单身男业主的私宅。 业主提及空间的概念,并无定向具体的考量,仅希望在尊重原结构的基础上,呈现年轻出挑,令人耳目一新的居家感受。 设计在给定方向之后往往很好发挥,反而在面对绝对自由的时候难以入手。但所幸的是业主与设计师本人的年龄、喜好都极为相似,所以在前期完全确定了基础的住房需求之后,设计大胆地跳出固有的家装思维,用建筑的方式进行空间的体块划分,使其兼具时尚与静谧感。 项目原始的客厅面积不大,几经权衡,干脆放弃传统的沙发概念,将就座融入墙体。 经由改造,入户门、卧室门、客厅储物、就座空间以及墙面背景,五个功能概念融合于同一平面,属性的相互延伸咬合被冷静地拆解之后再度重组,得到一个极具几何冲击且实用的立面感受。 面对客厅空间的局促,并没有简单地将阳台区域纳入其内,而是大胆地通过地面的抬高,划出临窗的阅读品茗区。 在大胆前卫的空间体块内,划下一处格外静谧从容的角落。 隐喻在现代都市背景下,一处可供喘息的精神领域。 一袭烈焰橙贯穿空间,成为联通不同功能区域的所在,经顶部镜面的反射,呈现出交错的泠冽质感,视线的相交与回闪,亦真亦幻,如坠梦境。 入户玄关处采用圆弧形吊顶,中间加入金属灯带,两侧灯管顶面通过镜面的设计,形成无限延伸的穿透之感,空间的边界被不断模糊,物理的界限与视觉的末端不再表达相同的意义,充满结构的空间幻觉已经初具雏形。 在材质的选择中,一反常规的家装惯用手法,大量地使用哑光拉丝银金属板与镜面板,试图在一个既有空间内,通过材质对光的吸收与反射,打破结构的框架概念,形成如同盗梦空间般的折叠幻觉体验。 而这一大胆的手笔,也映衬了当下时代的年轻人崭新的生活态度,家早已不是夜晚回家的栖身之所,更是一个承载个性表达,同时提供新奇灵感的空间所在。 最值得一提的是由客厅进入主卧的通道,通过顶面与立面的镜象反射,形成环绕式空间折叠幻觉,从而拉开感官上的距离感,打造全屋最具视觉冲击力的场域,先锋、直白的设计手法带来空间敞开且张扬的极致感受。 居住与表达的关系得到再次重申。 待进入卧室,黑色烤漆背板搭配黑色岩石,细腻的光泽与粗犷的肌理质感,极大的反差之下是刻画真实的世态两面。 橙光如烈焰,瞬间点燃漆黑如墨的背景,重新定义卧室空间的属性,绝不止静谧的独处之所那种简单。 纵观整套空间,黑白灰的色阶对比反复上演,橙色映入,如同黑暗谭底的一束火光,代表极致的生机。 空间如人 本案就像一个大男孩一样 呈现着自信、大胆、直白且生动的状态 因为年轻,可以完全放肆地表达自我 也因为年轻,棱角分明,锐利张扬 铿锵而鸣
  • 图片
  • 图片
  • 图片
  • 图片
  • 图片
  • 图片
  • 图片
  • 图片
  • 图片
  • 图片
  • 图片
  • 图片
  • 图片
  • 图片
  • 图片
  • 图片
  • 图片
  • 图片
  • 图片
  • 图片
  • 图片
  • 图片
  • 图片
  • 图片
  • 图片
  • 图片
  • 图片
  • 图片
  • 图片
  • 图片
  • 图片
  • 图片
  • 图片
  • 图片
  • 图片
  • 图片
  • 图片
  • 图片
  • 图片
  • 图片
  • 上一个 下一个
    《金腾奖优秀作品年鉴》 私宅丨地产丨餐饮丨酒店丨办公丨商业丨公共丨产品丨公益丨人气 jintengAWARD(小金_金腾奖组委会) 广州市海珠区琶洲大道68号华新中心21楼
    金腾奖视频号 金腾奖小红书号 监制:闫虹
    统筹:吴佳佳
    运营:朱倩仪 王赫萱 张芷莹 胡岚恩 小金
    新媒体:王贝贝 严洁 侯乐 鹅姐
    经纪:刘译遥 石征 曹凯月
    技术:张桐 黄天佑
    最终解释权归金腾奖主办方所有