sketching
作品详情
  • Details of the work 标题横线
    头像或者logo
    图片 王瑜 橙设传媒特约推荐
    城市:温州
    公司: 原界空间设计
    参赛作品: 素绘
    空间类型:公寓(150㎡以下)
    个人/公司简介:
    高级室内设计师 从业 20 年 温 州 原 界 装 饰 工 程 有 限 公 司 合伙人/设计总监 专业从事高端住宅 别墅顶级空间设计 “设计创造的不仅是空间或陈设, 而是要为主人创造一种舒适的环境及体验”
    设计说明 | Design Instruction
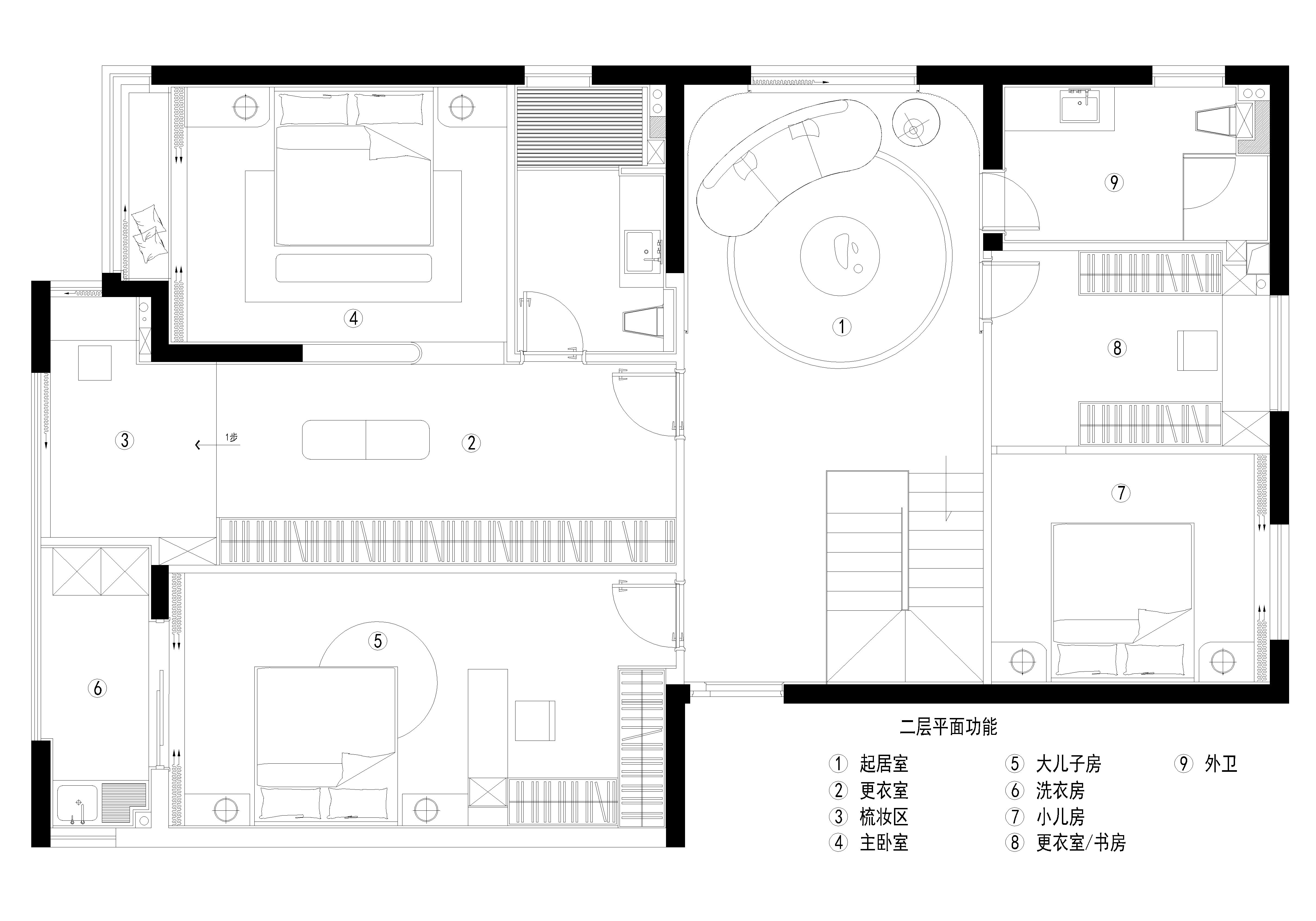
  • 家 , 有 着 抽 象 的 、 精 神 上 的 意 义 。 除 维 系 自 然 的 亲 密 感 之 外 ,也 是 我 们 内 在 心 灵 的 安 放 之 所 ,体 现 着 居 住 者 个 人 独 特 的 性 格 、审 美 与 情 致 。 空 间 以 柔 和 的 白 色 与 灰 色 为 基 调 ,加 入 木 纹 营 造 素 雅 静 谧 的 空 间 感 受 ,打 造 浑 然 天 成 的 隐 雅 氛围 。 通 过 “ 减 少 ” 设 计 元 素 , 去 强 调 自 然 生 活 的 深 刻 意 义 , 是 在 时 代 浪 潮 裹 挟 中 , 挖 掘 的 一 块 喘 息之 地 。 当 光 影 的 描 摹 变 为 具 象 的 时 间 记 忆 ,当 框 架 的 纵 横 交 错 变 为 固 定 的 场 域 理 解 ,我 们 对 家 的 印 象被 分 散 在 日 复 一 日 的 时 间 波 动 中 。 去 细 细 揣 摩 每 一 件 材 质 的 肌 理 ,感 受 脚 底 毛 绒 地 毯 与 冷 冽 瓷 砖 的 不 同 ,感 受 手 中 摩 挲 的 木 与 金属 ,听 布 料 与 皮 质 沙 发 摩 擦 的 簌 簌 声 响 ,打 量 阳 光 下 ,灰 尘 缓 缓 沉 积 的 样 子 ... ... 这 些 ,都 是 于 家 的 记 忆 沉 淀 。 纳 入 客 厅 的 阳 台 ,铺 设 饮 茶 的 去 所 。沿 阳 光 的 来 处 设 置 苔 草 景 观 ,任 其 自 由 缓 慢 地 生 长 ,映 照茶 饮 空 间 更 显 清 幽 与 禅 意 。而 不 独 立 茶 区 的 目 的 ,亦 是 强 调 家 居 环 境 的 沟 通 属 性 ,为 日 常 生 活增 添 温 情 。 开 阔 的 公 共 区 域 里 ,不 设 封 闭 的 隔 断 ,木 制 格 栅 屏 风 隐 约 地 透 露 出 空 间 简 约 自 然 的 状 态 ,人 在其 中 行 走 的 痕 迹 被 轻 易 捕 捉 ,在 静 态 空 间 内 完 成 动 态 的 表 达 同 样 也 是 传 统 韵 味 与 现 代 化 生 活的 完 美 结 合 。 结 构 呈 现 着 棱 角 分 明 的 线 条 ,将 空 间 切 割 出 极 富 层 次 的 锐 利 感 ,然 后 在 软 装 的 选 择 中 ,通 过 柔和 的 曲 线 与 温 润 细 腻 的 材 质 ,恰 到 好 处 地 达 成 平 衡 ,空 间 蕴 着 内 敛 的 力 量 ,呈 现 着 现 世 安 稳 的畅 意 美 感 。 空 间 讲 求 属 性 的 统 一 ,上 下 层 之 间 随 着 木 纹 的 延 伸 达 到 和 谐 的 共 鸣 ,软 膜 天 花 模 拟 天 井 的 穹 顶 ,洒 下 的 光 际 如 河 流 般 沿 着 辗 转 的 楼 梯 流 淌 而 下 , 诠 释 着 透 明 的 内 外 界 限 。 边 角 处 的 线 条 被 处 理 成 曲 面 的 形 态 ,呈 围 合 式 包 裹 着 二 层 的 起 居 空 间 ,使 用 更 煦 暖 的 色 调 铺 陈柔 和 温 暖 的 气 氛 ,行 之 有 效 地 带 来 空 间 的 内 生 力 量 ,转 而 注 入 居 者 的 内 心 ,探 讨 空 间 所 能 给 予人 的 精 神 内 蕴 。 阳 光 漫 入 ,经 雪 柳 的 枝 条 ,打 散 成 细 碎 的 光 影 ,翩 然 跃 动 ,似 一 幅 动 态 的 图 景 ,诠 释 生 活 最 自然 温 情 的 样 貌 。 主 卧 联 通 更 衣 室 ,形 成 套 房 式 结 构 ,半 敞 开 的 关 系 引 起 流 动 性 的 线 性 表 达 ,大 面 积 木 纹 的 使 用 ,更 是 将 空 间 的 属 性 , 引 领 向 自 然 且 温 和 的 角 度 。 用 地 面 的 高 低 错 落 来 划 分 空 间 功 能 的 不 同 ,既 敞 开 地 表 达 了 无 界 的 场 域 思 考 ,又 满 足 互 为 渗 透的 家 庭 空 间 使 用 习 惯 。 当 内 敛 的 东 方 意 蕴 ,传 递 入 现 代 都 市 的 起 居 生 活 ,简 而 有 致 ,叠 中 有 透 ,是 国 人 始 终 追 寻 的 美感 表 达 。 设 计 没 有 通 过 元 素 的 堆 砌 与 华 丽 的 手 法 ,喧 宾 夺 主 的 掩 盖 家 的 原 始 定 义 ,而 是 将 处 世 哲 学 渗 入结 构 肌 理 之 中 , 润 物 无 声 地 表 达 着 更 优 解 的 生 活 方 式 。
  • 图片
  • 图片
  • 图片
  • 图片
  • 图片
  • 图片
  • 图片
  • 图片
  • 图片
  • 图片
  • 图片
  • 图片
  • 图片
  • 图片
  • 图片
  • 图片
  • 图片
  • 图片
  • 图片
  • 图片
  • 图片
  • 图片
  • 图片
  • 图片
  • 图片
  • 图片
  • 图片
  • 图片
  • 图片
  • 图片
  • 图片
  • 图片
  • 图片
  • 图片
  • 图片
  • 图片
  • 图片
  • 图片
  • 图片
  • 图片
  • 图片
  • 上一个 下一个
    《金腾奖优秀作品年鉴》 私宅丨地产丨餐饮丨酒店丨办公丨商业丨公共丨产品丨公益丨人气 jintengAWARD(小金_金腾奖组委会) 广州市海珠区琶洲大道68号华新中心21楼
    金腾奖视频号 金腾奖小红书号 监制:闫虹
    统筹:吴佳佳
    运营:朱倩仪 王赫萱 张芷莹 胡岚恩 小金
    新媒体:王贝贝 严洁 侯乐 鹅姐
    经纪:刘译遥 石征 曹凯月
    技术:张桐 黄天佑
    最终解释权归金腾奖主办方所有