Yuediyunjie
作品详情
  • Details of the work 标题横线
    头像或者logo
    图片 张冰涛
    城市:苏州
    公司: 形雅艺术
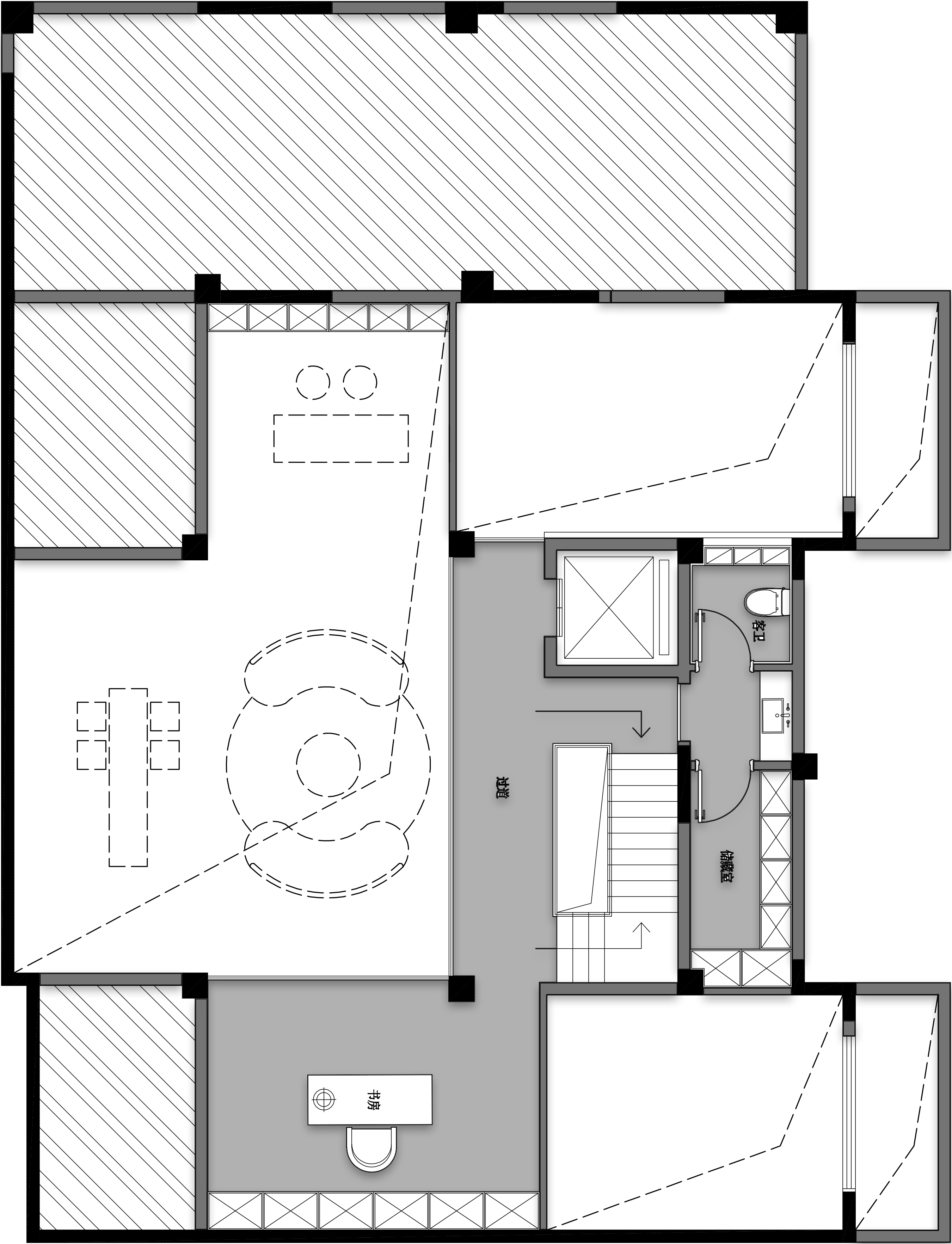
    参赛作品: 月地云阶
    空间类型:公寓(150㎡以下)
    个人/公司简介:
    曾就职于尚层装饰南京分公司,现就职与形雅艺术苏州公司。 主张是设计空间,而不是分开的设计墙顶地,不必为了设计而设计,而是出于功能和真实需要。 曾获荣誉: 金堂奖2022年度杰出别墅空间 2023 ASKO非凡设计大奖最佳住宅效果 2022原态潮设计年度十佳空间
    设计说明 | Design Instruction
  • 本案是一栋双拼打通后的别墅,通过对原结构的梳理整合,结合房主喜好与房屋外立面,确定了现代风格的外在表达形式。 楼梯处于房屋正中,自身就可以成为房屋的骨架,用来支撑起整个房屋的气势。通过对楼梯背景深色块的处理,衬托出白色岩板的堆叠楼梯的形态之美。此谓之山,属于房屋硬朗的一面。 一层挑空客厅的顶面,如卷轴或似流水,由顶面延伸至墙面再由墙面延伸至餐厅的顶面,行云流水,像飘带一样在客厅上空舞动。月夜星河,气韵生动。此谓之水,属于房屋柔和的一面。 山与水,动与静,如阴阳结合,使整个房屋相得益彰,气韵生动。
  • 图片
  • 图片
  • 图片
  • 图片
  • 图片
  • 图片
  • 图片
  • 图片
  • 图片
  • 图片
  • 图片
  • 图片
  • 图片
  • 图片
  • 图片
  • 上一个 下一个
    《金腾奖优秀作品年鉴》 私宅丨地产丨餐饮丨酒店丨办公丨商业丨公共丨产品丨公益丨人气 jintengAWARD(小金_金腾奖组委会) 广州市海珠区琶洲大道68号华新中心21楼
    金腾奖视频号 金腾奖小红书号 监制:闫虹
    统筹:吴佳佳
    运营:朱倩仪 王赫萱 张芷莹 胡岚恩 小金
    新媒体:王贝贝 严洁 侯乐 鹅姐
    经纪:刘译遥 石征 曹凯月
    技术:张桐 黄天佑
    最终解释权归金腾奖主办方所有