Castle in the Sky
作品详情
  • Details of the work 标题横线
    头像或者logo
    图片 王松
    城市:上海
    公司: 独立设计师
    参赛作品: 天空之城--顶层复式
    空间类型:公寓(150㎡以下)
    个人/公司简介:
    职位:设计总监 从业时间:18年 擅长风格:现代 所获得荣誉:上海设计新发现银奖 申远杯设计大赛金奖 芒果奖公寓组银奖 芒果奖别墅组银奖 设计理念:合理的规划布局+动人的设计细节
    设计说明 | Design Instruction
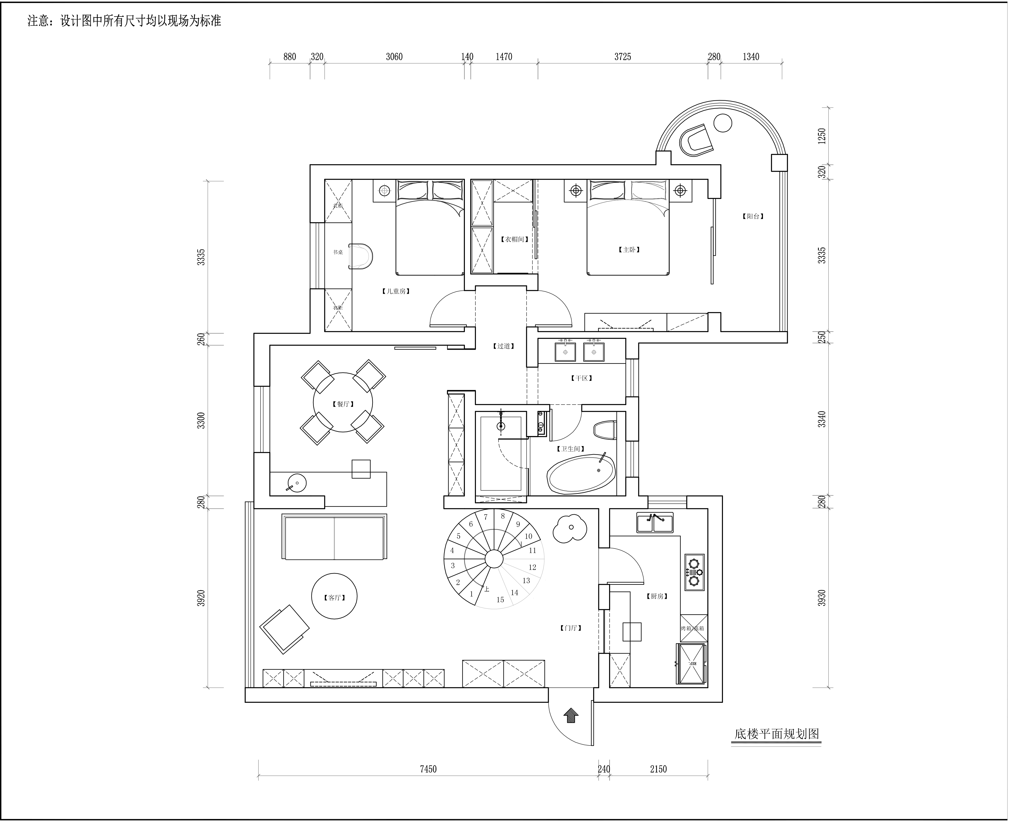
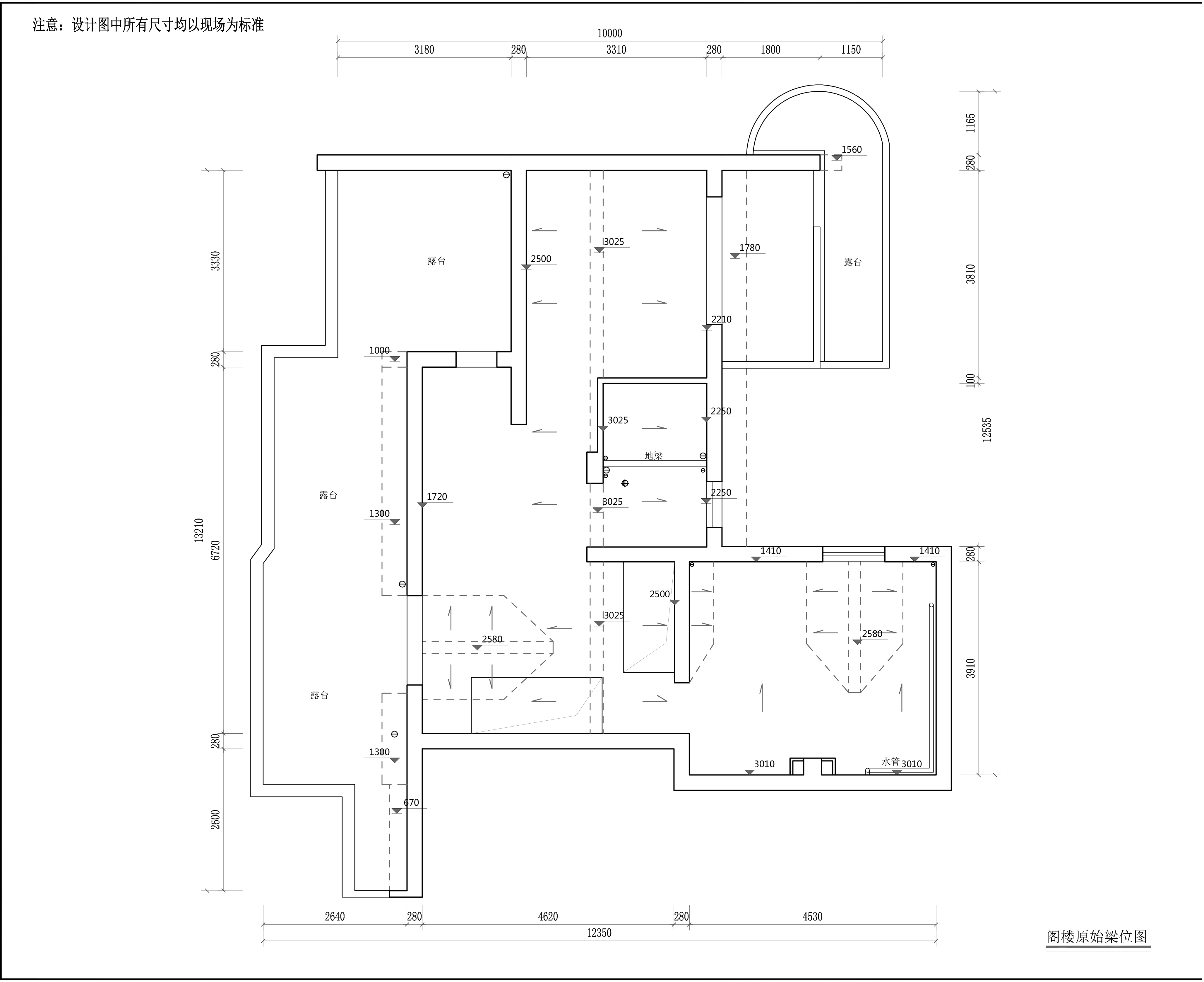
  • 我记得一位作家曾经说过 写文章无非是既要有大结构 又要有小细节 我想一个好的空间也应如此 合理的布局规划 与动人的设计细节 而细节就是 让光来表达空间情绪 最喜欢空间中在楼梯处仰视的视角 黄昏时分,光已经很温柔了 她溜进室内,游走于扶手 清晰地表达了 空间中楼梯的结构美 本案是一个顶层复式户型,该户型的最大特色是顶楼南北都有露台,视野极佳,顶楼的屋顶呈一个“人”字形。设计思路是把该房屋打造成一个可呼吸的空中别墅。 设计难点是底楼入户正好对着一个L型的楼梯,入户非常拥挤,动线也及其不合理。经过仔细斟酌,重新规划楼梯位置,把楼梯设计在通往静区的过道处,采用钢架的螺旋楼梯,视野得到了延伸,空间的趣味性得以呈现,同时楼上楼下的互动性增强。原先过道的空间划入卫生间,让卫生间过小、没有浴缸位置的难题迎刃而解,同时真正做到公共活动区域的“动”和卧室睡眠区域的“静”得到分离。阁楼南北露台都打造成露台花园的活动场所,在室内每个区域都能借到露台的景致、达到移步换景的效果。
  • 图片
  • 图片
  • 图片
  • 图片
  • 图片
  • 图片
  • 图片
  • 图片
  • 图片
  • 图片
  • 图片
  • 图片
  • 图片
  • 图片
  • 图片
  • 图片
  • 图片
  • 图片
  • 图片
  • 上一个 下一个
    《金腾奖优秀作品年鉴》 私宅丨地产丨餐饮丨酒店丨办公丨商业丨公共丨产品丨公益丨人气 jintengAWARD(小金_金腾奖组委会) 广州市海珠区琶洲大道68号华新中心21楼
    金腾奖视频号 金腾奖小红书号 监制:闫虹
    统筹:吴佳佳
    运营:朱倩仪 王赫萱 张芷莹 胡岚恩 小金
    新媒体:王贝贝 严洁 侯乐 鹅姐
    经纪:刘译遥 石征 曹凯月
    技术:张桐 黄天佑
    最终解释权归金腾奖主办方所有