Klein Blue dot
作品详情
  • Details of the work 标题横线
    头像或者logo
    图片 邱天
    城市:长沙
    公司: TEYU天与设计
    参赛作品: 克莱因蓝的点缀
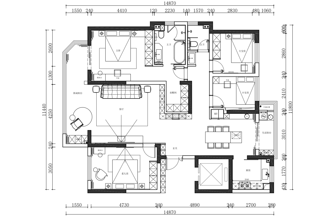
    空间类型:公寓(150㎡以下)
    个人/公司简介:
    设计总监/设计品牌创始人(TEYU) 长沙青年设计师联合会常务副会长 广东省装饰行业协会会员 深圳装饰行业协会会员 注册高级室内设计师 上海国际设计周艺术指导 中国创意设计中心理事会常务理事 2015 CIID中国室内设计大奖赛家装设计类 佳作奖 2016年深圳市鹏鼎奖 样板空间 入围奖 2018年粤港澳大湾区室内设计千人设计峰会 设计未来之星100人 2018年深圳市金堂奖 2018年长沙市腾讯金腾奖华中赛区 创意奖 2019年亚太空间设计最具影响力设计师 2020年深圳家时尚国际设计周别墅类·家居类年度影响力设计师 2022年上海国际设计周别墅大宅设计精英设计师 2021年40 UNDER 40 中国(长沙) 设计杰出青年 2021年UNDER 30中国(华中) 设计年度新秀 2022年顶峰奖入选优秀作品集 2022年红棉花奖金奖
    设计说明 | Design Instruction
  • 业主为一对年轻夫妻,从事教师职业,典型的知识分子,思想活跃,品味高雅,对现代文化极简类的需求很高,本案在设计手法上采取点缀类的手法,并且结合理性的特点,用整体的浅色调的基因,采取克莱因蓝的跳色手法,软装硬装的整体结合,既不过分张扬,又把极简和亮点恰到好处的体现。
  • 图片
  • 图片
  • 图片
  • 图片
  • 图片
  • 图片
  • 图片
  • 图片
  • 图片
  • 图片
  • 图片
  • 图片
  • 图片
  • 图片
  • 图片
  • 图片
  • 图片
  • 图片
  • 图片
  • 图片
  • 图片
  • 图片
  • 上一个 下一个
    《金腾奖优秀作品年鉴》 私宅丨地产丨餐饮丨酒店丨办公丨商业丨公共丨产品丨公益丨人气 jintengAWARD(小金_金腾奖组委会) 广州市海珠区琶洲大道68号华新中心21楼
    金腾奖视频号 金腾奖小红书号 监制:闫虹
    统筹:吴佳佳
    运营:朱倩仪 王赫萱 张芷莹 胡岚恩 小金
    新媒体:王贝贝 严洁 侯乐 鹅姐
    经纪:刘译遥 石征 曹凯月
    技术:张桐 黄天佑
    最终解释权归金腾奖主办方所有