平江路酒吧
作品详情
  • Details of the work 标题横线
    头像或者logo
    图片 李翔
    城市:苏州
    公司: 春羽(苏州)室内设计有限公司
    参赛作品: 平江路酒吧
    空间类型:民宿
    个人/公司简介:
    李翔 春羽(苏州)室内设计事务所创始人兼设计总监 The founder of / Design director 曾前往英国、新加坡等多国进修学习,执业以来荣获多项大奖 2018年第六届Hi-Design室内设计大赛优秀奖 CBDA2019年度精英设计师 《苏州府别墅豪宅空间》获2020-2021国际环艺创新设计作品大赛金奖 华鼎奖 2020-2021年度金梁中国设计奖等 环球设计500㎡至简别墅,宁静的精神居所!【环球设计3025期】 最美雅奢空间设计奖红棉设计奖·2022 年度优秀雅奢空间设计奖 法国双面神GPDP AWARD2023
    设计说明 | Design Instruction
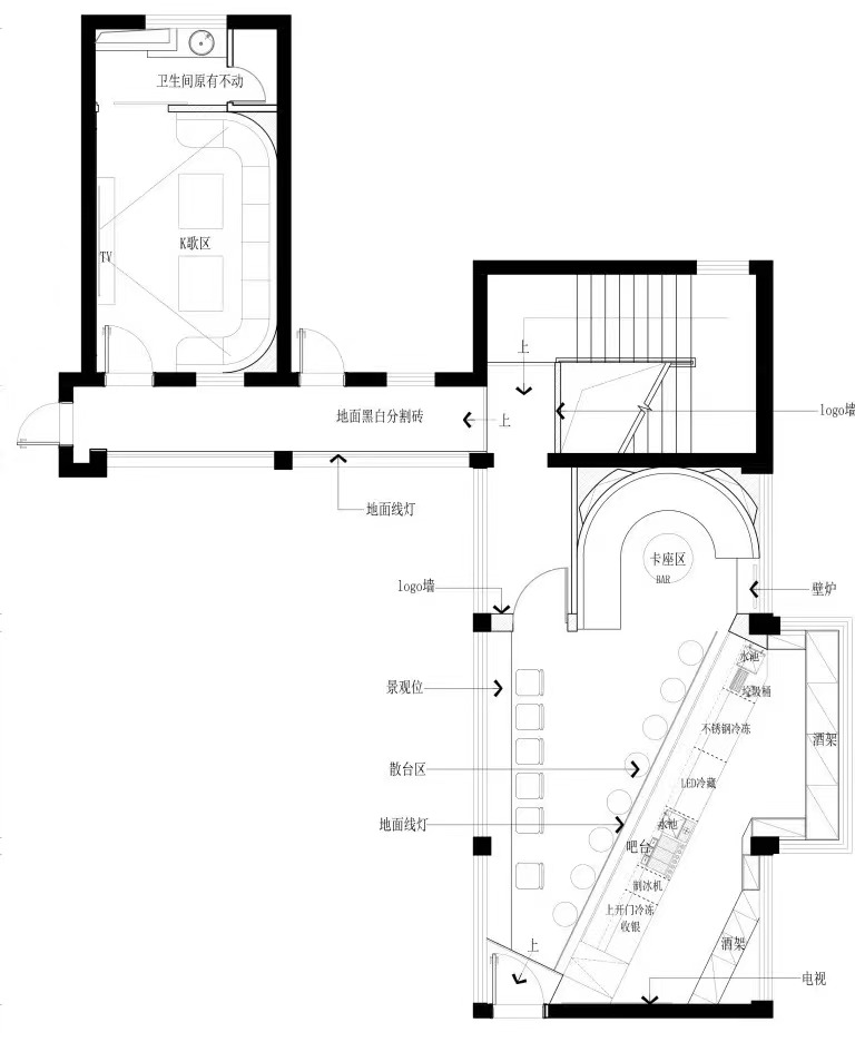
  • 本次设计的Mandysbar酒吧“月亮”灵感来源于俄罗斯艺术家Leonid Tishkov,使用了LED技术制作了巨形的弯月亮Private Moon。它在夜晚中发出明亮温柔的光芒,照亮一个个童话。如果有人爱上了在这亿万颗星星中独一无二的一株花,当他看着这些星星的时候,这就足以使他感到幸福。他可以自言自语地说:“我的那朵花就在其中的一颗星星上……” 而我的月亮,即使她从不言语,浑身冰凉,我也能够感觉到她独一无二的光芒。许多年过去了,月亮仍然和我们在一起,永远的月亮。 本项目分为三个部分:酒吧区、庭院空间和包厢。第一进空间是酒吧区,这里也是最具吸引力的地方。过道处,墙面设计的玻璃砖墙,天花设计的弧形的顶面,在保证空间丰富的同时,能更好的呈现出过道的延续性,整个空间显得纯粹而通透。柔和的琥珀色光芒和各种颜色的威士忌交相辉映,不锈钢的吊柜、胡桃木饰面和定制灯具提升了空间的格调,同时又营造了轻松舒适的氛围。 室内设计与由旧砖墙和梁形成的现有结构融合,任何新元素都不冲突于旧元素。使金属顶等原始元素脱颖而出。为了在冰冷的工业空间中保持舒适温馨的感觉,照明得到精心布置,整个氛围有利于社交,又兼具亲密感。 ▼酒吧散客区 开放的座位区和酒吧吧台让人能有身处户外的轻松感,空间让来的人能仿佛置身在城市街头点了一杯鸡尾酒,随意坐下便能与朋友畅谈。 每个座位上都配有可以自行调节的户外夜灯,忽明忽暗犹如微暗的火。与室外庭院的相结合,望向天空的两轮明月,真亦假来假亦真。在设计细节上,我们使用了大面积的不锈钢材料,让酒能在金属色泽中展现最原始的质感。 在灯光的设计上,为了凸显这家酒吧以鸡尾酒的为特色的卖点,在调酒区使用了较多的线性灯,让整个空间的光源集中在吧台的中心位置。有人在街头举杯畅谈,有人独自在吧台区买醉,也有人在隐秘的卡座里试着了解陌生人。看着摆满琳琅满目的酒的吧台,灯光让一切的氛围都显得暧昧,让生活中不重要的事伴着酒渐渐变得浑浊。 ▼酒吧卡座区 内部的卡座区被设计在入户的左侧,玻璃砖与定制线性灯让卡座区域充满地下酒吧的隐秘格调,做到既开放又神秘。同时在卡座和吧台区域的设计,我们定制了棕黑色皮质坐垫,让整个色调更街头。让人不禁以为酒吧是否也是时尚人士的聚集地。 ▼室内设计与现有结构融合 色彩和植物的使用增加了酒吧的整体趣味性,营造出全新的氛围。 月亮是一种充满浪漫童话感觉的天体,而世界上不同国家的人们,每天都会在同一颗月亮下相聚在一起,无法对她视而不见,也为我们平凡单调的生活增添不少诗情画意。沉浸的环境下,斑驳肌理所包裹的空间,隐秘深邃的尺度, 带来前所未有的冲击感与未知力量。嘈杂与安静的转换,光影与空间的交互,变幻的月球,彰显着它的潮汐力,其自然力量指引着我们探索内部空间。
  • 图片
  • 图片
  • 图片
  • 图片
  • 图片
  • 图片
  • 图片
  • 图片
  • 图片
  • 图片
  • 图片
  • 图片
  • 图片
  • 图片
  • 图片
  • 图片
  • 图片
  • 图片
  • 图片
  • 图片
  • 图片
  • 图片
  • 图片
  • 图片
  • 图片
  • 图片
  • 图片
  • 图片
  • 图片
  • 图片
  • 上一个 下一个
    《金腾奖优秀作品年鉴》 私宅丨地产丨餐饮丨酒店丨办公丨商业丨公共丨产品丨公益丨人气 jintengAWARD(小金_金腾奖组委会) 广州市海珠区琶洲大道68号华新中心21楼
    金腾奖视频号 金腾奖小红书号 监制:闫虹
    统筹:吴佳佳
    运营:朱倩仪 王赫萱 张芷莹 胡岚恩 小金
    新媒体:王贝贝 严洁 侯乐 鹅姐
    经纪:刘译遥 石征 曹凯月
    技术:张桐 黄天佑
    最终解释权归金腾奖主办方所有