jing mi
作品详情
  • Details of the work 标题横线
    头像或者logo
    图片 郑红
    城市:福州
    公司: 独立设计师
    参赛作品: 静谧
    空间类型:公寓(150㎡以下)
    个人/公司简介:
    2002年毕业于福建农林大学室内设计专业 2016年福州市第三届室内设计大赛二等奖 2018年福建省环境及艺术大赛优秀设计师 2022年作品《格调.灰》成功入选2021亚太空间设计年度评选“空间艺术大师” 2022年荣获2022出口中国设计品牌计划--福州设计.十佳青年品牌人物 2022年作品《世荗外滩花园》入选上海国际设计周金梁设计奖
    设计说明 | Design Instruction
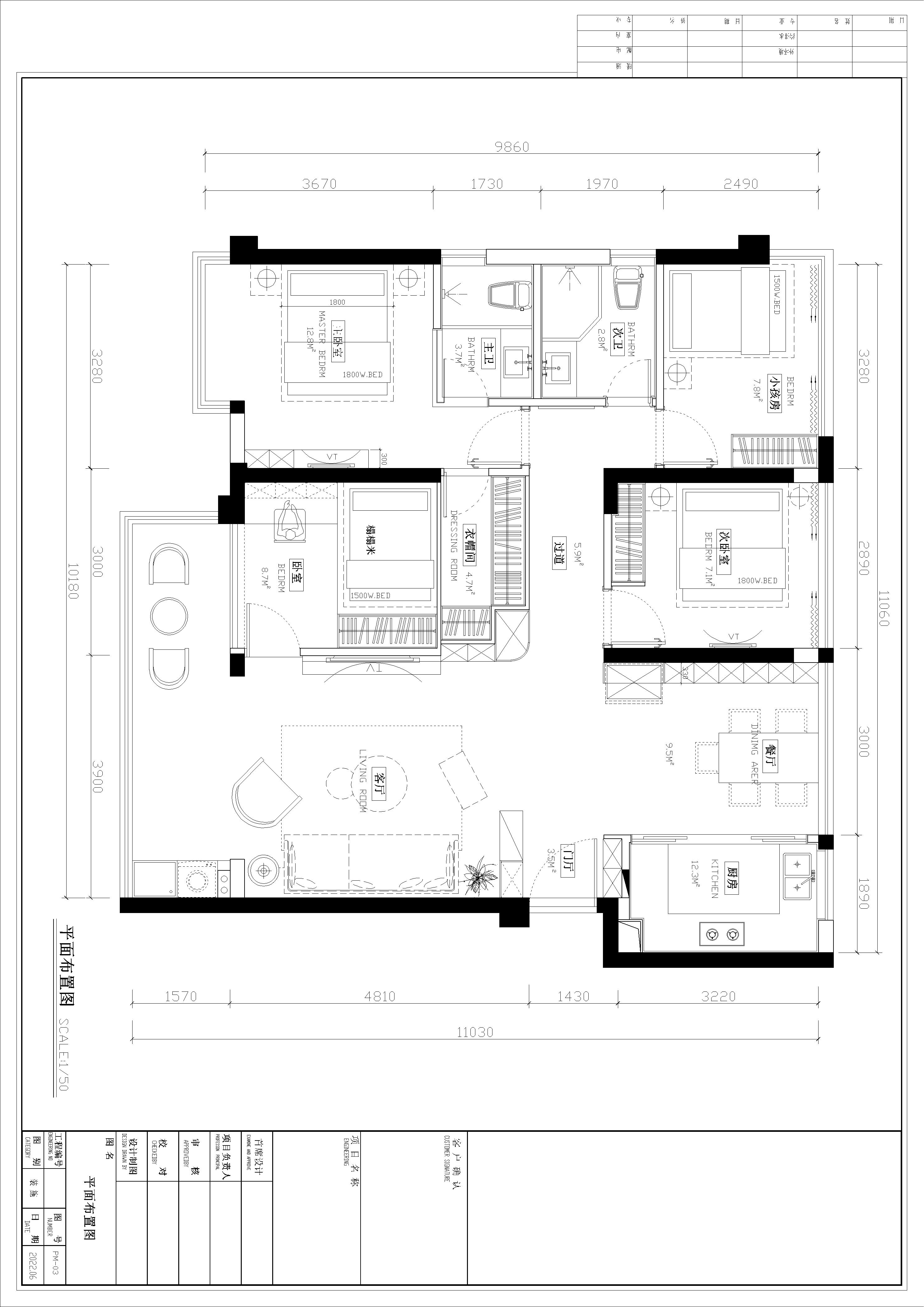
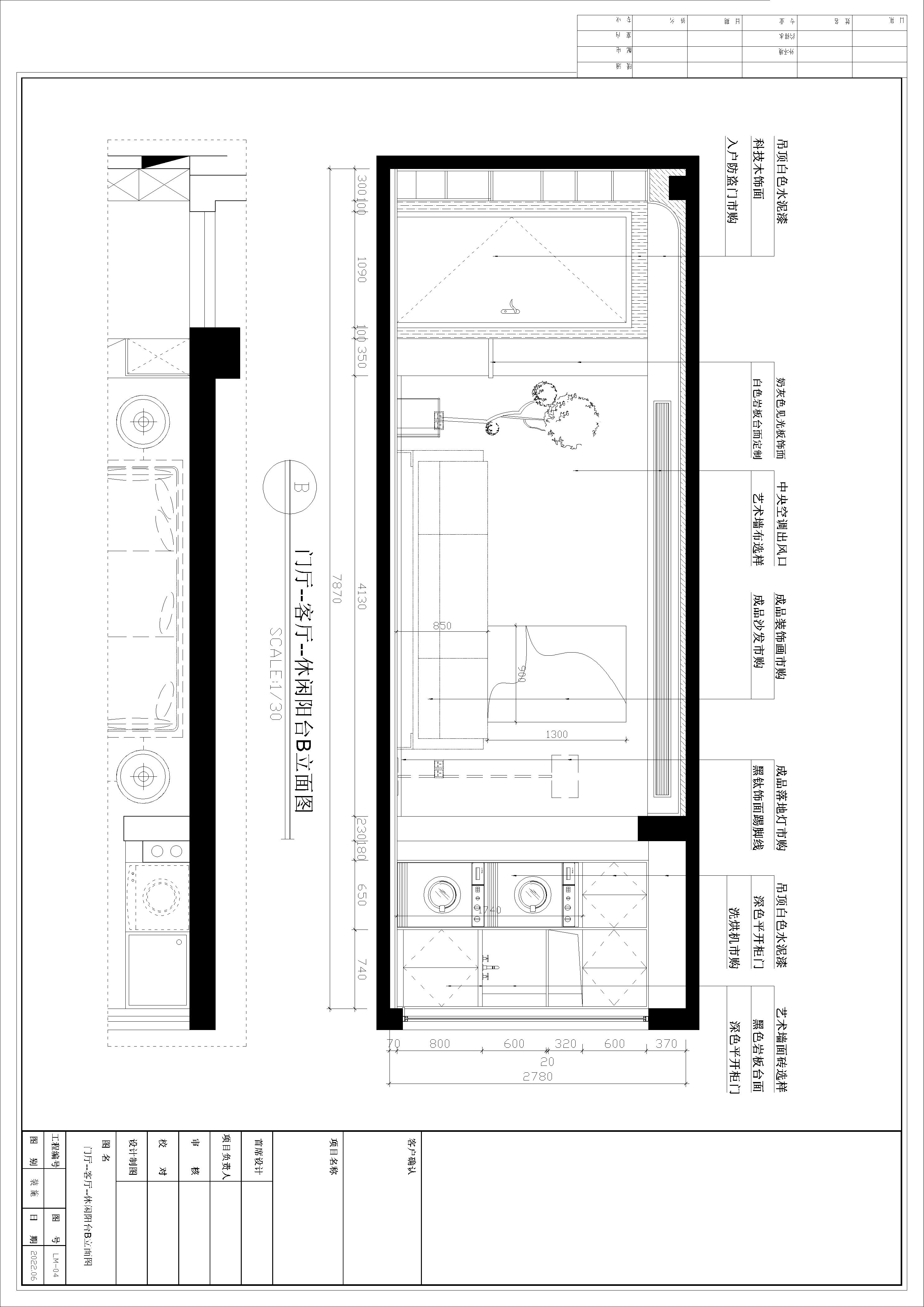
  • 本案设计理念以极简设计为主,充分利用空间,减少非必要元素,同时注重功能与美观的结合,打造出一处自然静谧的居住环境。“少即是多”,不是简单地去除繁杂的元素,而是适当给家居设计做减法,既有去繁从简的从容感,满足日常生活所需的收纳,强化功能与使用,同时也能够体验到居家的舒适与品质。客厅设计主要是从功能出发,减少了很多非必要的元素,电视背景深色木质隐形门结合灰色烤漆柜门满足了收纳同时还可以保留整洁的外观,拐角的弧形灰色烤漆造型过渡了客厅及过道收纳柜的空间,吊顶的弧面处理也做了很好的呼应,让整体空间显得流畅。造型极简的灰色皮质沙发结合跳跃的抱枕及单椅,舒适而有质感!墙上的装饰挂画选用抽像的几何线条,色彩与空间软装呼应,增添了空间的艺术气息而又打破了黑白灰的沉闷!厨房与餐厅位于客厅旁,厨房四推极简推拉门,最大化的开放了餐厨的空间,提高了空间的通透感。深灰的橱柜门配上白色岩板台面及柔光灰色墙砖,营造干净纯萃的空间氛围,十分高级。主卧依旧选用灰色与白色作为空间的主色调,再加入暖咖色进行点缀,营造具有暖意的极简空间。
  • 图片
  • 图片
  • 图片
  • 图片
  • 图片
  • 图片
  • 图片
  • 图片
  • 图片
  • 图片
  • 图片
  • 图片
  • 图片
  • 图片
  • 图片
  • 图片
  • 图片
  • 图片
  • 图片
  • 图片
  • 图片
  • 图片
  • 图片
  • 图片
  • 上一个 下一个
    《金腾奖优秀作品年鉴》 私宅丨地产丨餐饮丨酒店丨办公丨商业丨公共丨产品丨公益丨人气 jintengAWARD(小金_金腾奖组委会) 广州市海珠区琶洲大道68号华新中心21楼
    金腾奖视频号 金腾奖小红书号 监制:闫虹
    统筹:吴佳佳
    运营:朱倩仪 王赫萱 张芷莹 胡岚恩 小金
    新媒体:王贝贝 严洁 侯乐 鹅姐
    经纪:刘译遥 石征 曹凯月
    技术:张桐 黄天佑
    最终解释权归金腾奖主办方所有