Beijing One Three Photography Studio
作品详情
  • Details of the work 标题横线
    头像或者logo
    图片 NOTHING DESIGN
    城市:北京
    公司:NOTHING DESIGN
    参赛作品: 北京一三摄影空间
    空间类型:办公
    个人/公司简介:
    NOTHING DESIGN NOTHING DESIGN设计工作室成立于2021年,由室内设计师刘畅创立,以高质量的全案设计为主要发展方向。项目涉及住宅设计、商业空间设计、建筑设计、家具设计等。 NOTHING DESIGN设计理念是营造极简纯粹,没有任何多余的设计,设计偏好简洁无冗余,在此基础上呈现出高审美的艺术性,同时希望呈现的作品兼具艺术性和持久性。 作品常被顶尖家居杂志和国外知名网站收录发布,团队致力于让每套作品都能带来引领时代的意义。
    设计说明 | Design Instruction
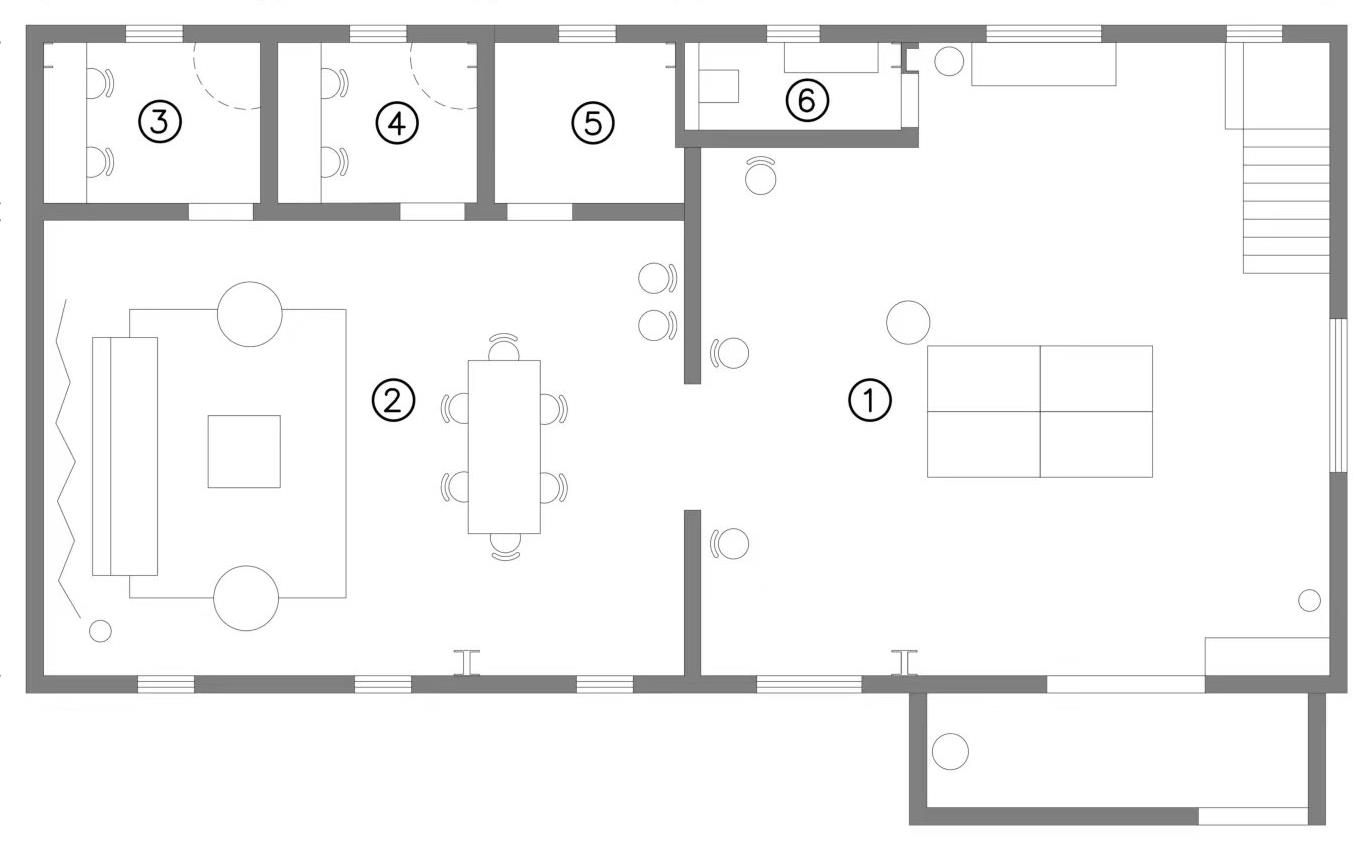
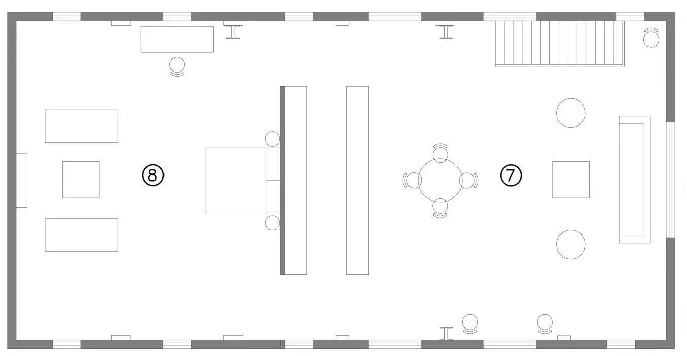
  • 纯净极简的家,北京/NOTHING DESIGN工作室 如碧波划过的白沙滩 “轻装修,重装饰”这个已经过时十年的理论,却在北京113㎡的精装房改造中被完美演绎。十多年前准备装修的人们总喜欢将这句话挂在嘴边,但都市楼盘渐渐饱和,老房改造的需求越来越多,提升住宅的功能性成了核心需求,于是最能大幅度改善使用感受的硬装环节,当仁不让成为重点,“轻装修,重装饰”也随之变成了一个过时的理论。然而,在格局合理、设施完善的新一代精装房中,它卷土重来,重新向我们证明:不需要大拆大改,一样可以拥有精妙绝伦的家。 客厅纯白的基底像一张纯净画布,包容性极强,造型个性的家具在其中也不会显得突兀。 房子位于北京一个新楼盘中,自带精装修,原本的格局、水电的安排都很合理,唯一美中不足的是风格太过传统,对于审美前卫的90后夫妻业主来说不够简约,也缺乏艺术气息。设计师没有对客厅进行任何结构上的改动,只是以白色艺术漆刷墙、浅色木地板铺地,用最干净的色彩为它打底。在此之上,精选每一件家具和陈设,便填充出这样一个画廊般极具艺术感的空间。一侧的墙面上悬挂了边柜,金属材质是它的形态可以更轻盈纤细,吊装制作的悬浮视觉效果也增添了设计感。 客厅中央的不锈钢茶几是为这个家特别定制的,方正的造型支撑起同样方正的客厅空间。 越是纯净的基底,越需要艺术造型的点缀,同时它也能更好地反衬这些家居艺术品。浅木色的地板和白色的艺术墙漆打造出极其简约的硬装基础,在这样的空间中,家具像是一件件雕塑穿插其中,二者的关系是“展馆与展品”或“画布与画作”,彼此成就。 两把来自Knoll的座椅是由上世纪著名的女性设计师Gae Aulenti设计的,管状金属框架拼合在一起,形成细腻又丰富的细节美。 白色墙面、浅木色地板、普拉达绿大理石,以及少量黑色的装饰,一入玄关,便可以感受到空间的基调是简约又富有质感的。 家中的常住者只有夫妻二人,平时很少待客,他们希望房子的格局可以在原有基础上更加开放,能增进彼此的交流,同时放大私密的空间,将生活状态调整得更自我、更舒适。 本着“充分利用已有条件,节省硬装预算”的原则,设计师拆除了厨房门,让原本窄小闭塞的厨房融入餐厅,虽然没有拆除墙体框架,但有同样板材定制柜体内外呼应,墙体两侧的餐厨空间视觉上已经成为了一个整体。黑色橱柜从厨房一直延续到餐厅,虽然原有的墙体还在,但统一的橱柜从视觉上将两个空间连接在一起。 橱柜经过重新定制,纯黑色的柜体加台面浑然一体。但如果这个家中只有黑、白与浅木色的地板,便缺少了一分活力。于是设计师用一整块普拉达绿花大理石定制餐桌,恰到好处地补足了这一点色彩的活跃度。从餐厅一直延伸到玄关处,尽头的开放式收纳格可以储物并兼具展示作用,承载了玄关桌的部分功能。
  • 图片
  • 图片
  • 图片
  • 图片
  • 图片
  • 图片
  • 图片
  • 图片
  • 图片
  • 图片
  • 图片
  • 图片
  • 图片
  • 图片
  • 图片
  • 图片
  • 图片
  • 图片
  • 图片
  • 图片
  • 图片
  • 图片
  • 图片
  • 图片
  • 图片
  • 图片
  • 图片
  • 图片
  • 图片
  • 图片
  • 图片
  • 图片
  • 图片
  • 图片
  • 图片
  • 图片
  • 图片
  • 图片
  • 图片
  • 图片
  • 图片
  • 图片
  • 图片
  • 图片
  • 图片
  • 图片
  • 图片
  • 图片
  • 图片
  • 图片
  • 图片
  • 图片
  • 图片
  • 图片
  • 图片
  • 图片
  • 图片
  • 图片
  • 图片
  • 图片
  • 图片
  • 图片
  • 图片
  • 图片
  • 图片
  • 图片
  • 图片
  • 图片
  • 图片
  • 图片
  • 图片
  • 图片
  • 图片
  • 图片
  • 图片
  • 图片
  • 图片
  • 上一个 下一个
    《金腾奖优秀作品年鉴》 私宅丨地产丨餐饮丨酒店丨办公丨商业丨公共丨产品丨公益丨人气 jintengAWARD(小金_金腾奖组委会) 广州市海珠区琶洲大道68号华新中心21楼
    金腾奖视频号 金腾奖小红书号 监制:闫虹
    统筹:吴佳佳
    运营:朱倩仪 王赫萱 张芷莹 胡岚恩 小金
    新媒体:王贝贝 严洁 侯乐 鹅姐
    经纪:刘译遥 石征 曹凯月
    技术:张桐 黄天佑
    最终解释权归金腾奖主办方所有