TRUEMAN TAPHOUSE & LABEL . LAB
作品详情
  • Details of the work 标题横线
    头像或者logo
    图片 王博 恒洁卫浴特约推荐
    城市:天津
    公司: 安舟设计研究室
    参赛作品: 楚门津酿&LABEL . LAB联合店
    空间类型:办公
    个人/公司简介:
    安舟设计研究室 设计总监 塬筑空间装饰设计有限责任公司 联合创始人 中国室内装饰协会CIDA会员高级室内建筑师:A072510SA110711 设计Slogan:谢绝因循守旧,让“家”拥有属于自己的“符号”。 2015年获得中国国际空间环境艺术设计大赛(筑巢奖)住宅空间优秀奖 2016年获得中国国际空间环境艺术设计大赛(筑巢奖)商业空间优秀奖 2017年获得40UNDER40中国(天津)设计杰出青年 2018年获得国际空间设计大奖(金创意奖)家居空间/十佳创新设计奖 2018年获得40UNDER40中国(天津)设计杰出青年 2018年获得IDS国际先锋榜 住宅空间 优胜奖 2019年获得40UNDER40中国(天津)设计杰出青年 2020年获得40UNDER40中国(天津)设计杰出青年 2020年获得40UNDER40中国(省区)设计杰出青年连续3年上榜人物 2020年获得金堂奖年度杰出住宅公寓设计 2020年获得红棉中国设计奖年度优秀极简空间设计 2021年获得40UNDER40中国(天津)设计杰出青年 2021年获得金住奖-中国百杰空间设计师奖 2021年获得金住奖-中国(城市)十大居住空间设计师奖 2021年获得第十届筑巢奖(大户型住宅空间)公众提名奖
    设计说明 | Design Instruction
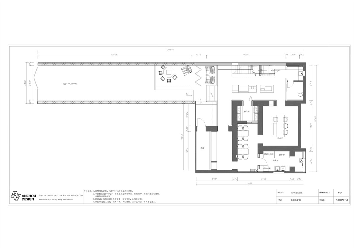
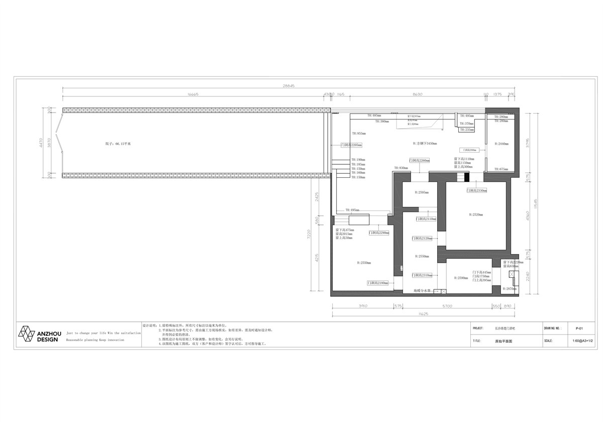
  • 建筑的第一印象在设计前期有重要的意义,即要符合它本身独有的气质还要结合周围建筑的氛围去营造特有的空间。材料选择轻盈的冲孔铝板折成V字型,起到将顶面修饰化整的作用。透光的同时也起到了装饰作用。将灯光置于铝板上方人工营造出丁达尔效果。浅色的主题使室内更加整体,户内与户外的融合,是我们所追求的主题。庭院中的银杏树与海棠花是春与秋最好的礼物。现代的整体氛围没有过多的色彩,与五大道百年建筑的融合相得益彰。日升日落在这间玻璃屋中隐隐约约地变换,等待人们寻寻觅觅去感受巷子里的与世无争。
  • 图片
  • 图片
  • 图片
  • 图片
  • 图片
  • 图片
  • 图片
  • 图片
  • 图片
  • 图片
  • 图片
  • 图片
  • 图片
  • 图片
  • 图片
  • 图片
  • 图片
  • 图片
  • 图片
  • 图片
  • 图片
  • 图片
  • 图片
  • 图片
  • 图片
  • 图片
  • 图片
  • 图片
  • 图片
  • 图片
  • 图片
  • 图片
  • 图片
  • 图片
  • 图片
  • 图片
  • 图片
  • 图片
  • 图片
  • 图片
  • 图片
  • 图片
  • 图片
  • 上一个 下一个
    《金腾奖优秀作品年鉴》 私宅丨地产丨餐饮丨酒店丨办公丨商业丨公共丨产品丨公益丨人气 jintengAWARD(小金_金腾奖组委会) 广州市海珠区琶洲大道68号华新中心21楼
    金腾奖视频号 金腾奖小红书号 监制:闫虹
    统筹:吴佳佳
    运营:朱倩仪 王赫萱 张芷莹 胡岚恩 小金
    新媒体:王贝贝 严洁 侯乐 鹅姐
    经纪:刘译遥 石征 曹凯月
    技术:张桐 黄天佑
    最终解释权归金腾奖主办方所有