The end of the lake
作品详情
  • Details of the work 标题横线
    头像或者logo
    图片 吴国强
    城市:上海
    公司: 仝界空间设计(上海)
    参赛作品: 湖面的尽头
    空间类型:公寓(150㎡以下)
    个人/公司简介:
    吴国强,独立设计师,毕业于四川师范大学环境艺术设计专业,国家注册高级室内建筑设计师 2020年联合创立上海仝界空间设计工作室,担任法定代表人、设计总监 CEIDA中欧国际设计协会认证会员 致力于高端室内环境氛围的研究,为高审美诉求群体量身建造艺术生活空间,涉及到建筑、居住室内、商业空间等。 荣誉奖项: 2022年Ariston Design Award国际室内设计大赛温度设计师;2022年筑梦家人居空间设计大赛杰出设计奖; 2021年美国国际设计师大奖IDA的室内住宅荣誉提名奖; 2021年法国双面神 GPDP AWARD 国际设计大奖银奖; 2021年《居住在中国》样板间设计大赛府系赛道金奖; 2021年《幸福家》设计大赛金奖; 2021年第十四届大金内装设计大赛上海地区美宅设计别墅组金奖; 2021年 金腾奖年度别墅空间设计大奖; 2021年《我要去米兰》青年设计领袖奖Top10; 2021年百度馨居奖全国全国TOP10; 2021年M+中国高端室内设计大赛全国TOP50; 2021年TinTA金邸奖居住空间/复式住宅提名奖; 2019年第九届筑巢奖全国别墅专业类别金奖; 2019年第三届中国室内设计新势力榜华东区上海TOP10; 2018年第十二届大金内装设计大赛全国美宅设计(别墅)银奖; 2018年“设计源·世界观”|年度精英人物
    设计说明 | Design Instruction
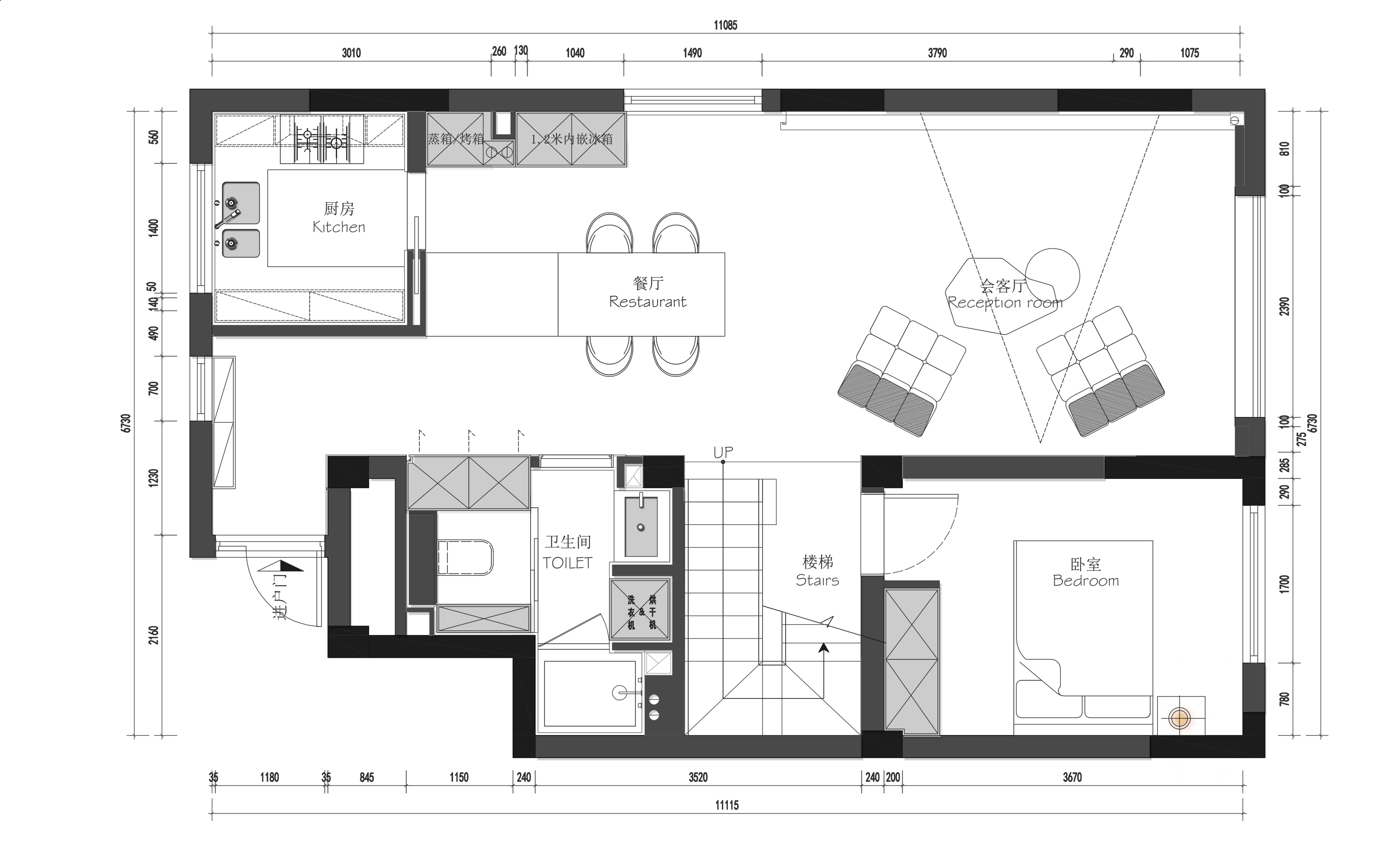
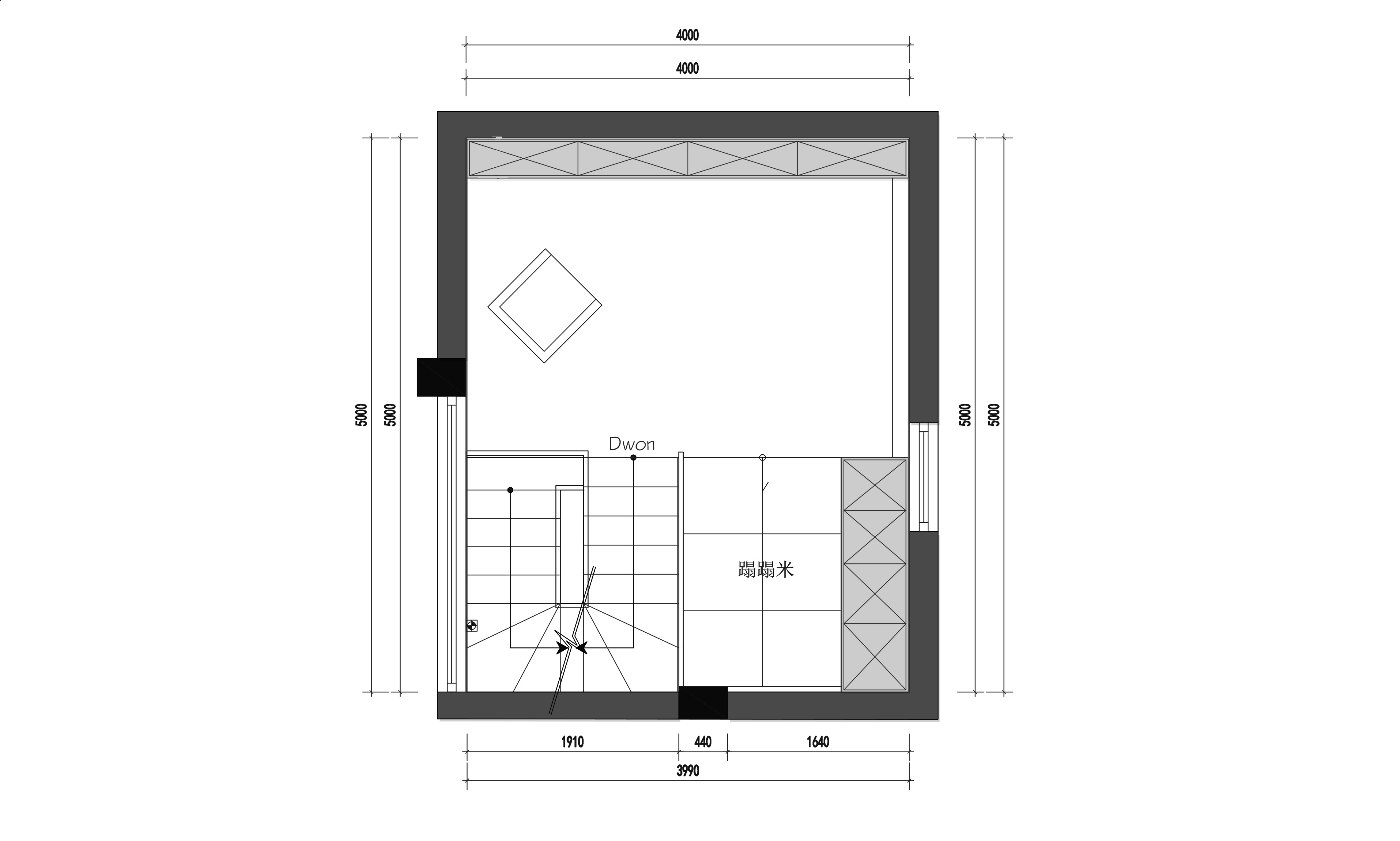
  • 屋主是一对年轻夫妇,始终保持着对美好生活的热爱与向往,“一个可以松弛一整天地方”,是业主的最初诉求,也是我们的设计核心。我们在充满隔墙的平面里重新合理布局,改变原有空间和动线,保证现代生活的功能需求,加入了柔软松弛的氛围,用克制的用材和设计语言使空间晕染于安宁沉寂松弛的氛围之中,用五感去感受空间体现人文和空间的灵魂共存,进而聆听这首平静的空间序曲。 一层空间由于面积的局限性,我们想更多的增加光线的穿透,丰富层次感,保持空间的安静与内敛 空间的核心以餐台为中心向四周扩散,这里不是纯粹用餐的地方,而是懒散的阅读与办公,可以和休闲区、厨房保持对话交流的自由空间。休闲区也在极简的语言和温柔的光线下,富有质感的家具器物,在镜子的投射中为空间体现自然美感,保持茂盛可变的生命力。尽量减少家具数量的堆砌,两个沙发尤为的有秩序仪式感,轻盈舒缓,屋主在这个组合的空间里看电影发呆、听着音乐品酒用餐,可呆上一整天的时间。 二层主卧入口也巧妙的设计在天窗光线投射下来的地方,楼梯墙面的收藏品和自然光线的交错让空间属性转变为微型艺术馆,天窗的设计加持,让屋主在房间和过道穿行的时候,也能感受到外部世界的四季变化:如室外的大雨磅礴衬托着室内的寂静安逸,冬日的阳光会自己在墙面绘画成彩虹,极具趣味性。卧室里很极简,只保留床和衣柜置物台,保证睡眠的纯粹性。
  • 图片
  • 图片
  • 图片
  • 图片
  • 图片
  • 图片
  • 图片
  • 图片
  • 图片
  • 图片
  • 图片
  • 图片
  • 图片
  • 图片
  • 图片
  • 图片
  • 图片
  • 图片
  • 图片
  • 图片
  • 图片
  • 图片
  • 图片
  • 图片
  • 图片
  • 上一个 下一个
    《金腾奖优秀作品年鉴》 私宅丨地产丨餐饮丨酒店丨办公丨商业丨公共丨产品丨公益丨人气 jintengAWARD(小金_金腾奖组委会) 广州市海珠区琶洲大道68号华新中心21楼
    金腾奖视频号 金腾奖小红书号 监制:闫虹
    统筹:吴佳佳
    运营:朱倩仪 王赫萱 张芷莹 胡岚恩 小金
    新媒体:王贝贝 严洁 侯乐 鹅姐
    经纪:刘译遥 石征 曹凯月
    技术:张桐 黄天佑
    最终解释权归金腾奖主办方所有