星河
作品详情
  • Details of the work 标题横线
    头像或者logo
    图片 李成
    城市:重庆
    公司: 力禾营创设计事务所
    参赛作品: 星河
    空间类型:公寓(150㎡以下)
    个人/公司简介:
    1.力禾营创设计事务所主理人 2.中国高级室内设计师 3.重庆青年设计师俱乐部会员 4.2021-2022健康家居计划重庆设计推广大使 5.30 UNDER 30中国(西南)设计年度新秀
    设计说明 | Design Instruction
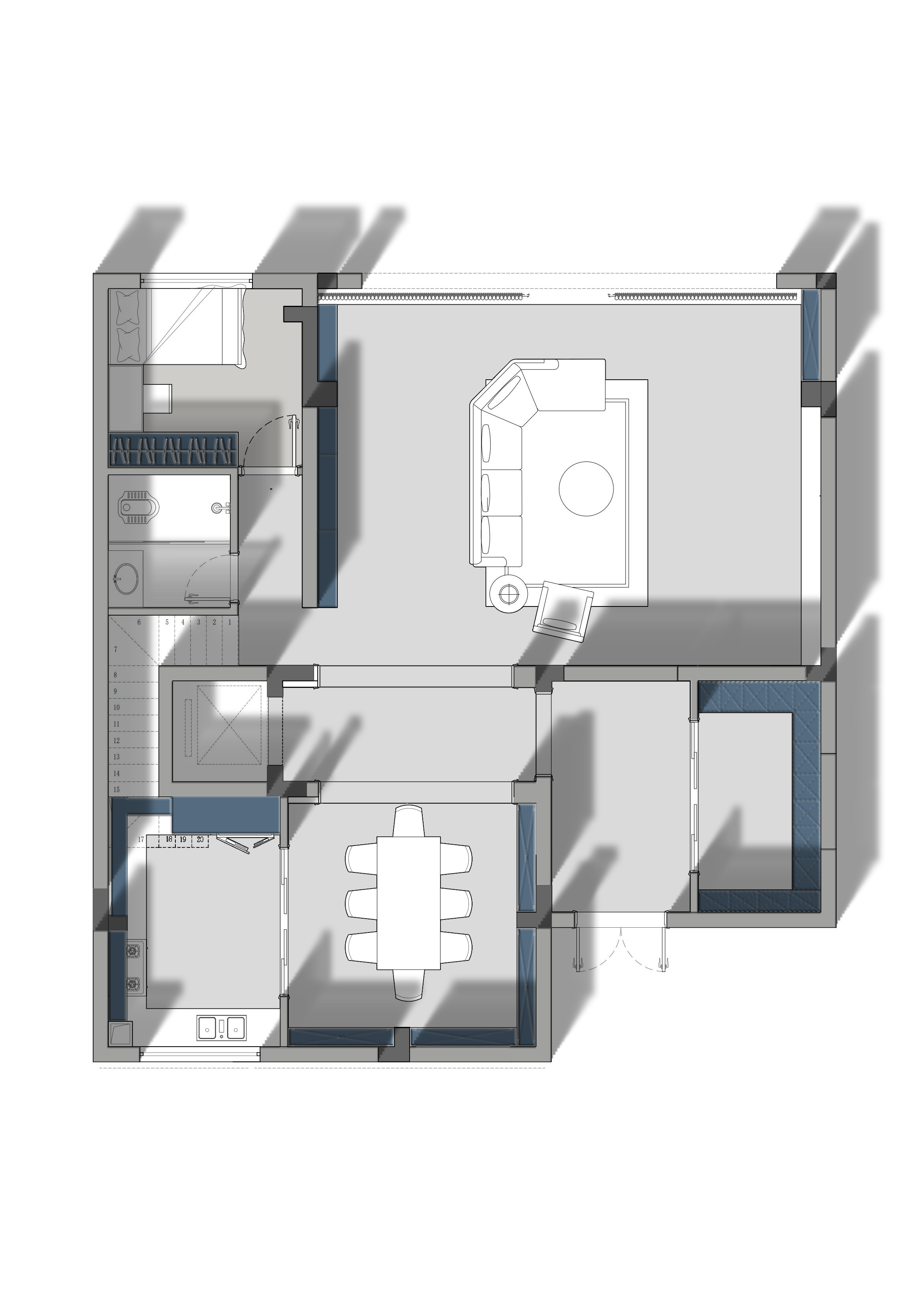
  • 本案位于重庆璧山,面积380m2,整体以意式轻奢风格为主,大面积采用黑白灰咖为主色调。深灰色搭配木纹,总有一种高冷而又简约大气的舒适松弛感。白色的皮质沙发,灰色的地砖,星空灰的岩板,适当的浅色搭配,显得空间宽敞的同时不会压抑,整体感低调沉稳而内敛。入户门厅墙采用嵌入式石膏月球灯和薄板石材,再放上宇航员的摆件,突显出了太空的主题。极窄的黑色钢板柜搭配整面的PU蘑菇石,让整个空间更加的高级。二楼三角钢琴以白色透光水晶砖和银河岩板为背景,让这个空间更具艺术性和情调。整体的居住感觉是自由与贵气,低调与奢华,时尚与传统,以高品质,设计感,舒适、简约为特点。深色与木色微妙结合,时尚又凸显个性,再柔和灯光的照射下,整个空间更有格调和气质,浑然天成,洒满了诗意,充满了温馨愉悦的居家氛围,令人能享受安静的生活气息。
  • 图片
  • 图片
  • 图片
  • 图片
  • 图片
  • 图片
  • 图片
  • 图片
  • 图片
  • 图片
  • 图片
  • 图片
  • 图片
  • 图片
  • 图片
  • 图片
  • 图片
  • 图片
  • 图片
  • 图片
  • 图片
  • 图片
  • 上一个 下一个
    《金腾奖优秀作品年鉴》 私宅丨地产丨餐饮丨酒店丨办公丨商业丨公共丨产品丨公益丨人气 jintengAWARD(小金_金腾奖组委会) 广州市海珠区琶洲大道68号华新中心21楼
    金腾奖视频号 金腾奖小红书号 监制:闫虹
    统筹:吴佳佳
    运营:朱倩仪 王赫萱 张芷莹 胡岚恩 小金
    新媒体:王贝贝 严洁 侯乐 鹅姐
    经纪:刘译遥 石征 曹凯月
    技术:张桐 黄天佑
    最终解释权归金腾奖主办方所有