Soft Home
作品详情
  • Details of the work 标题横线
    头像或者logo
    图片 李成
    城市:重庆
    公司: 力禾营创设计事务所
    参赛作品: 软软的家
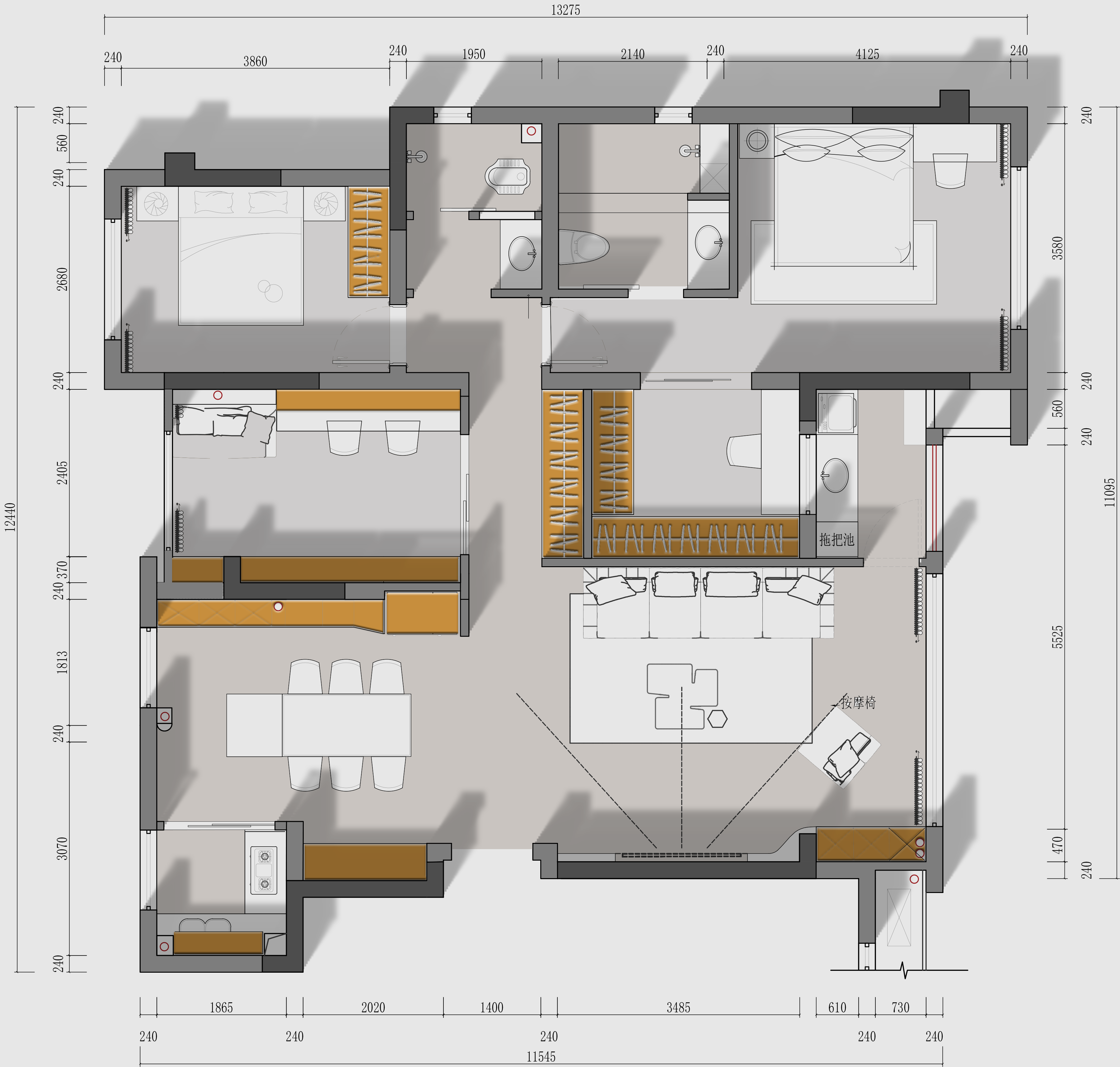
    空间类型:公寓(150㎡以下)
    个人/公司简介:
    1.力禾营创设计事务所主理人 2.中国高级室内设计师 3.重庆青年设计师俱乐部会员 4.2021-2022健康家居计划重庆设计推广大使 5.30 UNDER 30中国(西南)设计年度新秀
    设计说明 | Design Instruction
  • 本案以现代奶油风为主,在空间色彩上墙面采用米白色、奶白色这种饱和度低、明度高的色系,部分柜子使用浅绿色,让整个空间看起来十分的通透、明亮且经久耐看,以及软装上加以绿色为点缀,赋予其鲜活的特性。奶油风配上弧形造型,柔和的色彩加以圆润的造型,减少阳角线条过多的锋利、硬朗感,大面积落地窗和纱帘的搭配,观感上更加温柔细腻,墙面上去掉复杂的造型,运用大面积留白的手法处理,使得整体空间更为灵动、轻柔,且具有呼吸感。全屋无主灯设计以泛光源为主,点光源为辅,高低错落有致的灯光组合,营造出光影层次感和氛围感。在家具材质的选择上,使用羊羔绒、珊瑚绒、棉麻等肌理感较强的材质,触觉上带来软软糯糯的质感,呈现出独特的温柔魅力。
  • 图片
  • 图片
  • 图片
  • 图片
  • 图片
  • 图片
  • 图片
  • 图片
  • 图片
  • 图片
  • 图片
  • 图片
  • 图片
  • 图片
  • 图片
  • 图片
  • 图片
  • 图片
  • 图片
  • 图片
  • 图片
  • 图片
  • 图片
  • 图片
  • 上一个 下一个
    《金腾奖优秀作品年鉴》 私宅丨地产丨餐饮丨酒店丨办公丨商业丨公共丨产品丨公益丨人气 jintengAWARD(小金_金腾奖组委会) 广州市海珠区琶洲大道68号华新中心21楼
    金腾奖视频号 金腾奖小红书号 监制:闫虹
    统筹:吴佳佳
    运营:朱倩仪 王赫萱 张芷莹 胡岚恩 小金
    新媒体:王贝贝 严洁 侯乐 鹅姐
    经纪:刘译遥 石征 曹凯月
    技术:张桐 黄天佑
    最终解释权归金腾奖主办方所有