Aurora
作品详情
  • Details of the work 标题横线
    头像或者logo
    图片 李建红(可心)
    城市:成都
    公司: 成都辰皓设计
    参赛作品: 初霁
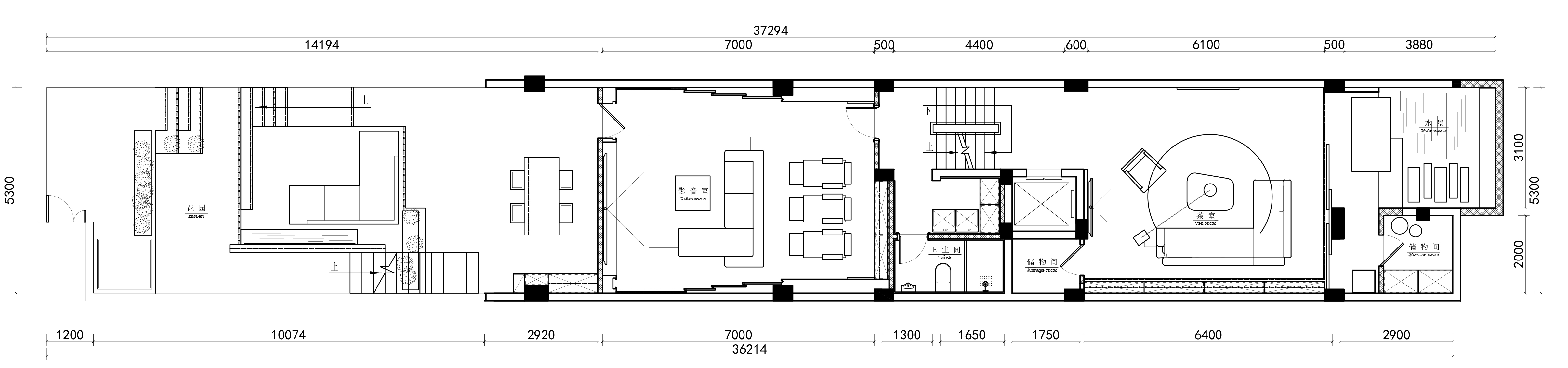
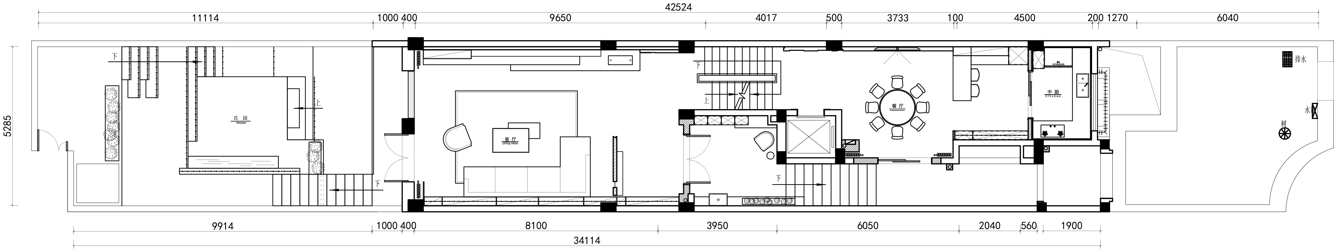
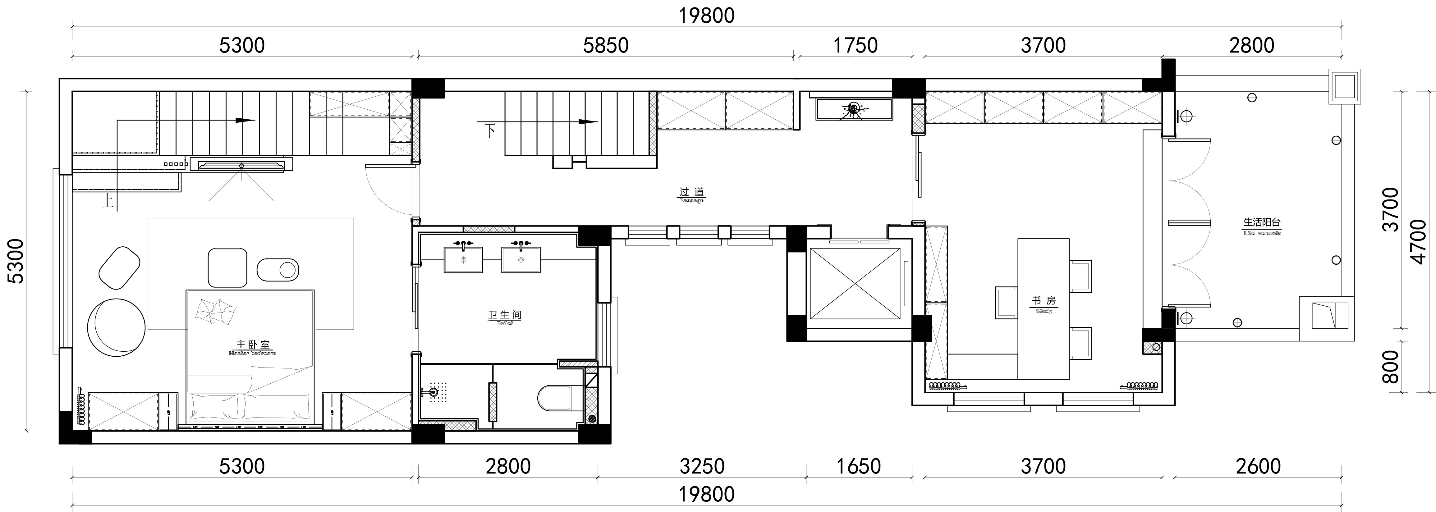
    空间类型:公寓(150㎡以下)
    个人/公司简介:
    成都辰皓设计合伙人 中国注册室内设计师会员 中国建筑学会室内设计分会成员 CIID中室学成都室内建筑师中心会员 2019年腾讯家居金腾奖 2020年85*潮空间设计奖 2021年中国金蝴蝶设计奖 2021百度馨居奖年度最佳色彩设计大奖 2021年中国新青年十佳空间设计 2022年中国17届室内金外滩奖 寻觅生活的温度,从细微末节处开始。
    设计说明 | Design Instruction
  • 一个好的客厅的一个特点是四个方面的开放性,空间连通性。无论是直接的还是视觉的,都会提高空间的质量。与电视造型墙错落的壁炉,在格栅的背景下火光熠熠,流动的姿态增添了时光烟火的温度与惬意。顶面独特创意的S线灯我们给她起名叫做“流星”既是灯光的氛围营造,也是从入户到客厅的一种设计视觉引导,同时与Terminal 1航站楼椅的流线形体相互回应。“形随机能”沙发背后大小不均的墙板其实都是“隐藏的收纳”为了让活动区域有更干净,清爽的展示,我们将生活臭都隐藏在随手可碰的柜子中。灵活可移动的航站楼椅性感的曲线,既可坐至窗边读书赏景,也可三五好友围坐观影玩乐。立体灯光系统配置智能控制,可以满足多元化生活场景。闲适又平静的生活方式使时间都仿若变慢起来,充满诗意的斑驳光影随着时间而流动,柔和了岁月,温暖了家,慵懒躺靠在沙发上,手捧一杯暖茶,细细品味一本诗书,感受生活的最佳状态。 在讲究纯粹的素净之后我们用虚实相生的手法来丰富空间的层次,统一的木质色彩使室内以一种朴实和谐的姿态融入环境,为空间创造宁静的氛围感。
  • 图片
  • 图片
  • 图片
  • 图片
  • 图片
  • 图片
  • 图片
  • 图片
  • 图片
  • 图片
  • 图片
  • 图片
  • 图片
  • 图片
  • 图片
  • 图片
  • 图片
  • 图片
  • 图片
  • 图片
  • 图片
  • 图片
  • 图片
  • 图片
  • 上一个 下一个
    《金腾奖优秀作品年鉴》 私宅丨地产丨餐饮丨酒店丨办公丨商业丨公共丨产品丨公益丨人气 jintengAWARD(小金_金腾奖组委会) 广州市海珠区琶洲大道68号华新中心21楼
    金腾奖视频号 金腾奖小红书号 监制:闫虹
    统筹:吴佳佳
    运营:朱倩仪 王赫萱 张芷莹 胡岚恩 小金
    新媒体:王贝贝 严洁 侯乐 鹅姐
    经纪:刘译遥 石征 曹凯月
    技术:张桐 黄天佑
    最终解释权归金腾奖主办方所有